• Sledovat cenu
  •  

Zasílání upozornění emailem:

Rodinný dům, 209 m2 - Spojenců, Praha 20, Praha

Cena: 16 999 999 Kč
Stav:Volný
209 m2, cihlová, parcela 596 m2
Popis: Cena včetně provize a právního systému. prodej prostorného rodinného domu se dvěma byty (4+1 a 4+kk) v srdci Horních Počernic v ulici Sp...ojenců
Hledáte bydlení, které kombinuje klid předměstí s perfektní dostupností Prahy? Nabízíme vám exkluzivní příležitost ke koupi samostatně stojícího rodinného domu v prestižní části Prahy. Tento dům je díky své dispozici ideální jako vícegenerační bydlení, kombinace vlastního bydlení s podnikáním, nebo jako výhodná investice k pronájmu dvou samostatných jednotek.

Klíčové parametry nemovitosti:
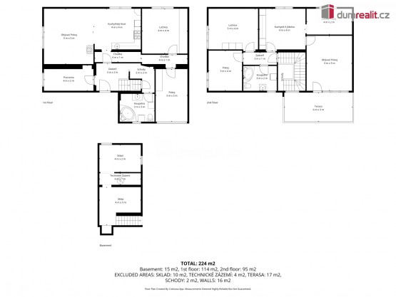
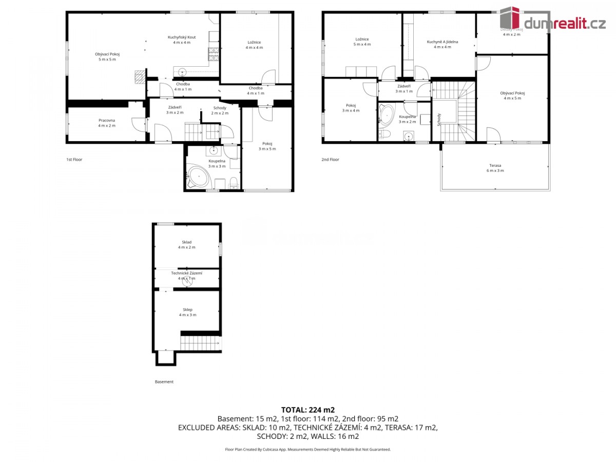
Celková užitná plocha: cca 224 m² (včetně příslušenství).

Dispozice: Dvě plnohodnotné bytové jednotky se samostatnými vstupy z centrálního schodiště.

Garáž a parkování: Velkorysá garáž pro více vozů + možnost parkování na pozemku.
Dispozice domu:
1. patro (114 m²) – Byt 4+1:
Dominantou tohoto patra je prostorný obývací pokoj s krbem, který dodává interiéru útulnou atmosféru. Kuchyně s jídelním koutem je oddělena, což ocení milovníci klasického uspořádání. Patro dále nabízí tři ložnice/pokoje, koupelnu s vanou a samostatné sociální zařízení WC.
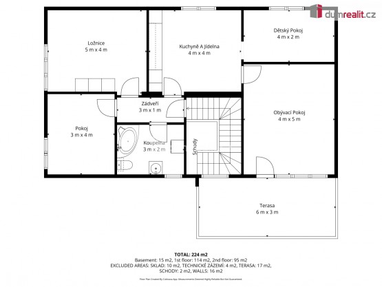
2. patro (95 m²) – Byt 4+kk:
Moderněji koncipované podlaží, kterému vévodí světlý obývací pokoj propojený s kuchyňským koutem a jídelnou. Z obývacího pokoje je přímý vstup na velkou terasu (17 m²) s výhledem do zeleně, ideální pro letní snídaně nebo večerní relaxaci. Nachází se zde další tři samostatné neprůchozí pokoje a stylová koupelna s rohovou vířivou vanou.

Technické zázemí (Suterén/Přízemí):
Dům je částečně podsklepen a nabízí bohaté úložné prostory – sklad (10 m²), technické zázemí (4 m²) a další sklepní prostory.

Technické informace:
Vytápění: Primárně řešeno elektrokotlem, v obývacím pokoji krb na tuhá paliva.

Inženýrské sítě: Dům je napojen na obecní vodovod a kanalizaci. Plyn je zaveden do domu, což umožňuje snadnou změnu typu vytápění dle preferencí nového majitele.

Stav: Dům je udržovaný, v interiéru proběhly dílčí modernizace (kuchyňské linky, podlahy, koupelny).

Lokalita, kterou si zamilujete:
Horní Počernice jsou vyhlášené skvělou občanskou vybaveností. V docházkové vzdálenosti najdete školy, školky, lékaře i restaurace.

Doprava: Skvělé napojení na Pražský okruh a dálnici D11. Autobusem jste za pár minut na metru B – Černý Most. Vlakové spojení (S - linky) vás doveze do centra Prahy (Masarykovo nádraží) za pouhých 20 minut.

Volný čas: Blízkost Chvalského zámku, cyklostezek a přírodního parku Klánovice - Čihadla.

Cena je včetně kompletního právního servisu.

Tento dům musíte vidět osobně, abyste ocenili jeho potenciál a atmosféru. Kontaktujte nás a domluvte si prohlídku ještě dnes! Ev. číslo: 655961. Energetický štítek: G
Lokalita: Spojenců , Praha 20, Praha, Česká republika Spojenců, Praha 20, Praha

Kontakt

Michal Gažo


Podobné nabídky v okolí


Volná pracovní místa ExpertPrace.cz
  • Objednání prohlídky a více informací
  •  
  • Poslat na e-mail
  •  

Zasílání odkazu na realitu emailem: