• Sledovat cenu
  •  

Zasílání upozornění emailem:

Rodinný dům, 207 m2 - Dučice , Přerubenice, okr. Rakovník (již není v nabídce)

Cena: 0 Kč/měsíc
Stav:archiv
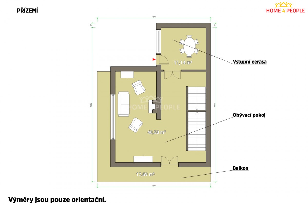
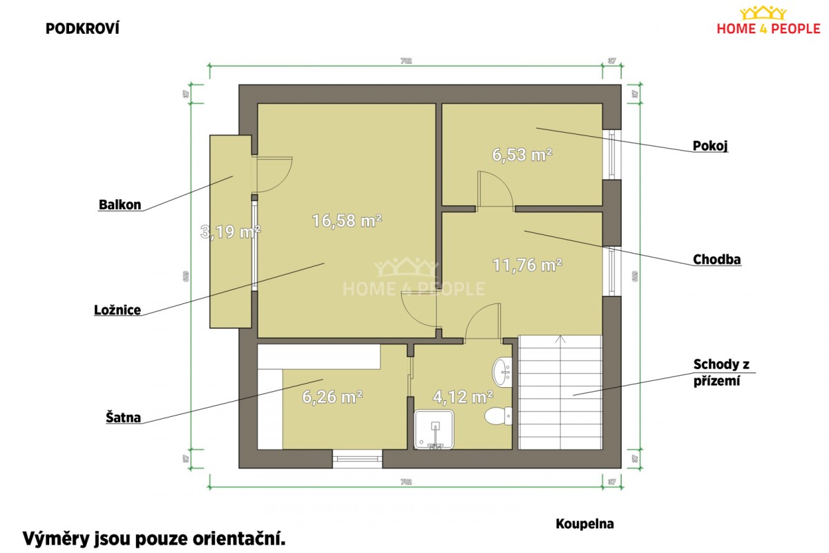
207 m2, cihlová, parcela 753 m2
Popis: včetně právního servisu, včetně advokátní úschovy, včetně RK. Zprostředkujeme Vám exkluzivně prodej bývalého mysliveckého penzionu u Šteklů uprostřed přírody přírodního parku Džbán. Dispozice 6+KK, 2 krát sprcha, 3 krá...t toaleta, velká kuchyně, malá kuchyně s pípou, 2 krát funkční krb, 3 x obývací pokoj pro posezení, 2 krát ložnice, 1 krát šatna, venkovní krb, udírna, bazén. Nájezd na dálnici D6 pouhých 8 minut, v Praze Veleslavín jen za 35 minut. V blízkosti města Rakovník, Řevničov, Slaný, Kladno. Stavba dokončena v roce 1994, nyní z části opravena. Vhodné jak pro klidné bydlení s rodinou, nebo jako podnikatelský záměr provoz menšího penzionu pro vybranou klientelu milovníky přírody a provozování myslivosti. Hypotéční úvěr možný, rádi zdarma pomůžeme vyřídit u všech bankovních institucí, za co nejlepších podmínek. PENB nedodán ze zákonné povinnosti uvádíme G. Na prohlídce Vás rád uvítám po telefonické domluvě. Doporučuji prohlídku této velice hezké a zajímavé nemovitosti ! Ev. číslo: 31226. Energetický štítek: G
  • Vložení inzerátu:
    26.10.2024
  • Kód:
    3875399
  • Typ nemovitosti:
    Rodinný dům
  • Typ budovy:
    Cihlová
  • Zastavěná plocha:
    109 m2
  • Podlahová plocha:
    207 m2
  • Plocha parcely:
    753 m2
  • Balkón:
    Ano
  • Terasa:
    Ano
  • Sklep:
    Ano
  • Stav objektu:
    Dobrý
  • Umístění objektu:
    Polosamota
  • Energetická náročnost:
    G - Mimořádne nehospodárná
  • Nabídky v okolí:

Podobné nabídky v okolí

Lokalita: Dučice , Přerubenice, okres Rakovník, Česká republika Dučice , Přerubenice, okr. Rakovník, Středočeský kraj