• Sledovat cenu
  •  

Zasílání upozornění emailem:

Rodinný dům, 200 m2 - Oradourská 1, Lidice, okr. Kladno (již není v nabídce)

Cena: 8 500 000 Kč
Stav:archiv
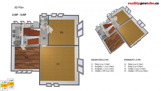
200 m2, parcela 852 m2
Popis: Exkluzivně nabízíme k prodeji prostorný rodinný dům s velkou zastřešenou terasou ve velmi moc hezké a klidné obci Lidice. Rodinný dům o dispozici 7+1 byl projektován pro maximální vyu...žití zastavěného prostoru a disponuje šesti podlažími (mezipatry), čímž poskytuje možnost tvůrčího využití jednotlivých částí domu.

Kolem domu jsou vybudovány terasy k relaxaci a odpočinku, přičemž hlavní zastřešená terasa o ploše 36m2, přístupná francouzskými dveřmi z obývacího pokoje domu, je vybavena venkovním grilem. Uvnitř domu se nachází vyjma pokojů a kuchyně s komorou také tři koupelny (1 krát vana, 2 krát sprchový kout), tři toalety a v nejvyšším mezipatře stylový prosvětlený ateliér kopírující celý prostor podkroví. V hlavní části domu je k dispozici celkem pět pokojů, šestý pokoj je samostatně přístupný ze zaskleného zádveří a z terasy a sedmý pokoj se nachází v suterénu domu. Dům byl v roce 2005 kompletně rekonstruován.

Pozemek je tvořen dvěma úrovněmi terénu, přičemž horní část je zastavěna domem a přilehlými terasami a spodní část tvoří zahrada. Na jihovýchodně orientované prosluněné zahradě se skleníkem naleznete ovocné stromy (jabloň, švestka, broskev, ořech, . . . ), ale také vinnou révu, okrasné květiny a keře. Dům byl postaven s okny směrovanými od východu k západu, což zaručuje celodenní přísun světla a slunečních paprsků a v zimním období tak majitelům dopřává příjemné tepelné zisky.

Obec Lidice je obklopena zelení a vyznačuje se klidnou a příjemnou atmosférou. Umístění obce zaručuje klidné bydlení ve spojitosti s výborným spojením do Prahy a okolních měst (Buštěhrad, Kladno atd. ), příkladem je napojení na dálnici D7 za pouhé 4 minuty, letiště 10 minut, kraj Prahy 11 min, metro Veleslavín 20 minut atd. V obci Lidice, disponující základními službami, naleznete obecní úřad, mateřskou školku, Českou poštu, restauraci, Památník s galerií, Růžový sad a pietní místo s velkým parkem.

Pro více informací a sjednání termínu prohlídky prosím kontaktujte makléře.
  • Vložení inzerátu:
    21.7.2020
  • Kód:
    00161
  • K dispozici od:
    0.0.0
  • Typ nemovitosti:
    Rodinný dům
  • Zastavěná plocha:
    118 m2
  • Podlahová plocha:
    200 m2
  • Plocha parcely:
    852 m2
  • Terasa:
    Ano
  • Stav objektu:
    Dobrý
  • Voda:
    dálkový vodovod
  • Elektřina:
    380 V
  • Topeni:
    ústřední plynové
  • Plyn:
    plynovod
  • Odpad:
    kanalizace
  • Energetická náročnost:
    G - Mimořádne nehospodárná
  • Nabídky v okolí:
  • Informace o obci:
    Obec Lidice má 467 obyvatel, z toho 310 v produktivním věku.
    V obci se nachází pošta.
    V obci je rozvod kanalizace.
    V obci je rozvod městské vody.
    V obci je rozvod plynu.

Podobné nabídky v okolí

Lokalita: Oradourská 1, Lidice, okres Kladno, Česká republika Oradourská 1, Lidice, okr. Kladno