• Sledovat cenu
  •  

Zasílání upozornění emailem:

Rodinný dům, 195 m2 - Pšov , Podbořany, okr. Louny

Cena: 7 245 000 Kč
Stav:Volný
195 m2, cihlová, parcela 1001 m2
Popis: Nabízíme k prodeji moderní rodinný dům na klíč 4+kk, o užitné ploše 194 m², který bude realizován na slunném pozemku o výměře 1 000 m², v klidné části obce Podbořany s moc hez...kým výhledem do zeleně. Projekt je připravován ve vysokém standardu přímo vlastníkem pozemku, s důrazem na kvalitu použitých materiálů, energetickou úspornost a komfortní bydlení. Schválení stavebního povolení očekáváme začátkem roku 2026.

Výstavba a cena:
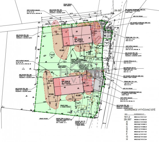
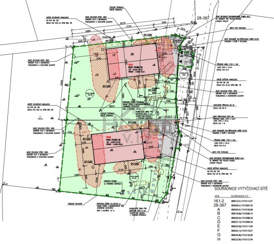
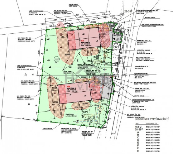
Cena zahrnuje pozemek a realizaci hrubé stavby (základy, nosné konstrukce, střecha, zateplení, dveře, schodiště). Za příplatek je možné dokončit dům přesně dle vizualizace a požadavků kupujícího. Na prodej je také sousední pozemek včetně realizace o stejné výměře 1 000 m² (viz koordinační výkres). Je také možné koupit pozemek ihned s hotovým projektem a stavebním povolením za 2. 49 mln. s možností samostatné realizace.

Financování stavby je možné rozdělit na jednotlivé etapy, takže celou částku nemusíte platit najednou.

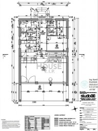
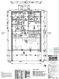
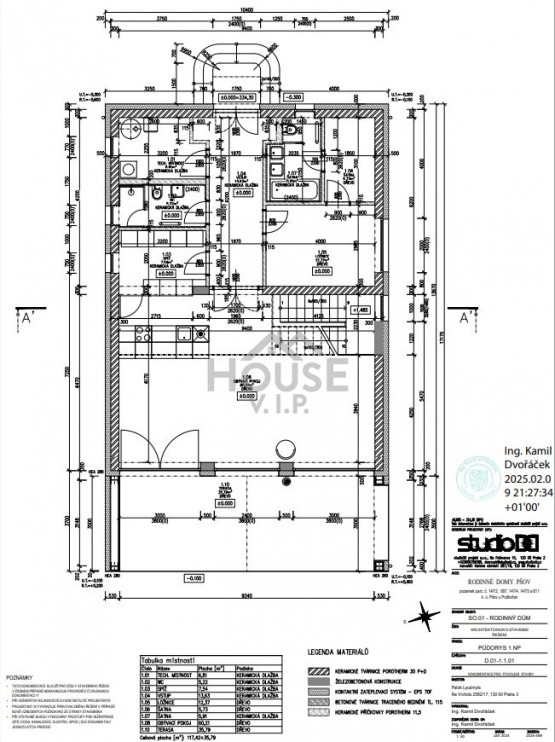
Zastavěná plocha: 178, 57 m².
Podlahová plocha: 194, 25 m².
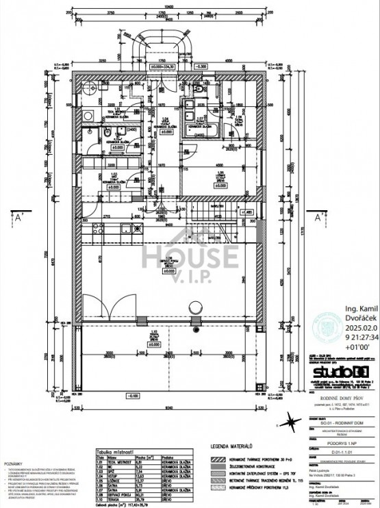
 • 1. NP (první nadzemní patro): 117, 42 m² + terasa 35, 79 m².
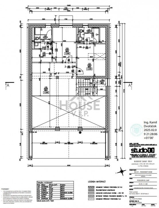
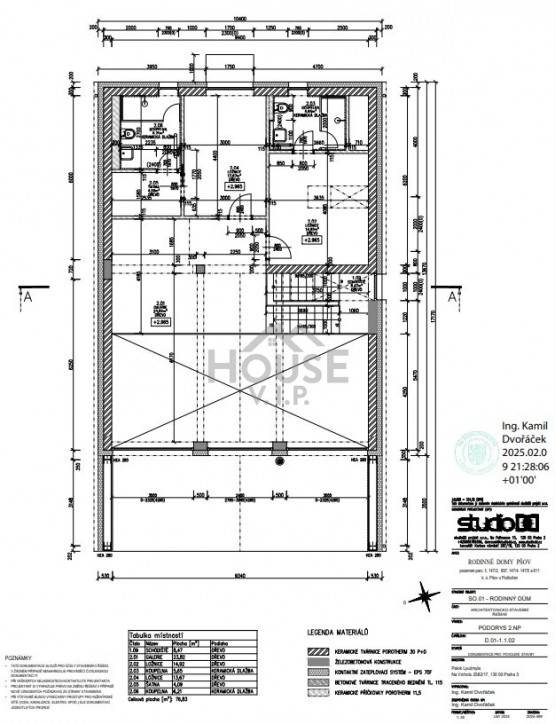
 • 2. NP (druhé nadzemní patro): 76, 83 m².

Výška stavby: 8, 86 m.
Konstrukce: nosné stěny z dutinových keramických tvárnic.
Strop nad 1. NP (první nadzemní patro): železobetonový monolit (tl. 250 mm).
Vytápění: tepelné čerpadlo + krbová vložka.
Další technologie: fotovoltaika, klimatické zatížení řešeno v projektu.
Přípojka vody: ze stávající studny.
Kanalizace: domovní ČOV (osobní vlastnictví).

Dispozice 1. NP (první nadzemní patro) (117, 42 m²):
Technická místnost (6, 81 m²), sociální zařízení WC (5, 22 m²), spíž (7, 54 m²), vstupní hala (13, 63 m²), ložnice (12, 37 m²), šatna (5, 73 m²), druhá šatna (5, 91 m²), obývací pokoj s kuchyňským koutem (60, 21 m²) a terasa (35, 79 m²).

Dispozice 2. NP (druhé nadzemní patro) (76, 83 m²):
Schodiště (8, 47 m²), galerie (23, 82 m²), ložnice (14, 92 m²), koupelna (5, 65 m²), druhá ložnice (13, 67 m²), šatna (4, 09 m²) a koupelna (6, 21 m²).

Lokalita:
Nemovitost se nachází v tiché části obce, pouhých 350 m od autobusové zastávky směr Žatec. Podbořany nabízejí plnou občanskou vybavenost, dobrou dostupnost do větších měst a moc hezké okolí ideální pro rodinné bydlení.

Energetická náročnost:
Budoucí PENB bude odpovídat hodnotám nízkoenergetického až pasivního domu třídy "A", což zaručuje nízké provozní náklady.

Pro více informací o rodinném domě a možnostech individuálních úprav nás kontaktujte.
  • Vložení inzerátu:
    11.8.2025
  • Kód:
    00904
  • K dispozici od:
    0.0.0
  • Typ nemovitosti:
    Rodinný dům
  • Typ budovy:
    Cihlová
  • Zastavěná plocha:
    179 m2
  • Podlahová plocha:
    195 m2
  • Plocha parcely:
    1001 m2
  • Odpad:
    ČOV
  • Energetická náročnost:
    A - Mimoˇrádne úsporná
  • Podle vyhlášky:
    c. 78/2013 Sb.
  • Ukazatel náročnosti:
    41.7 kWh/m2
  • Nabídky v okolí:
Lokalita: Pšov , Podbořany, okres Louny, Česká republika Pšov , Podbořany, okr. Louny, Ústecký kraj

Kontakt

Bc. Artur Kurlikovskyy


Podobné nabídky v okolí


Volná pracovní místa ExpertPrace.cz
  • Objednání prohlídky a více informací
  •  
  • Poslat na e-mail
  •  

Zasílání odkazu na realitu emailem: