• Sledovat cenu
  •  

Zasílání upozornění emailem:

Rodinný dům, 187 m2 - Křemenáčová 1, Praha (již není v nabídce)

Cena: 17 990 000 Kč
Stav:archiv
187 m2, parcela 2160 m2
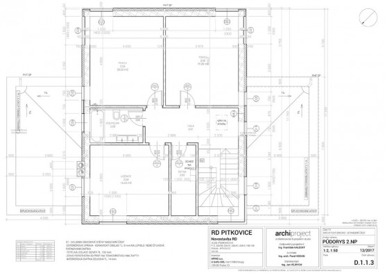
Popis: K prodeji nabízíme novostavbu rodinného domu se souborem pozemků o celkové výměře 2160 m2. Pozemek se nachází v moc hezké částí Praha - Pitkovice, vedle nově vzniklého městského parku a rybníka. Parcelní čísla... pozemku - 226/1, 226/31, 225/59, 225/3. Plánek této nemovitosti slouží pouze orientačně.

Zastavěná plocha domu činí 128 m2, hrubá podlahová plocha 233 m2. Rodinný dům disponuje dvěma nadzemními podlažími. 1. NP (první nadzemní patro) - 102, 15 m2 a 2. NP (druhé nadzemní patro) - 84, 93 m2. Sítě vody, plynu, elektřiny a kanalizace jsou na hranici pozemku v komunikaci.

Realizaci RD (rodinný dům) jsme schopni zařídit.

Pitkovice patři mezi žádanou lokalitu, která splňuje ty nejnáročnější požadavky na bydlení s veškerou občanskou vybaveností a velice dobrou občanskou dostupností do centra. V okolí se nachází veškerá občanská vybavenost, ZŠ, MŠ, knihovna, restaurace, Pitkovické rybníky, petanque hřiště, nákupní centrum Čestlice, Aquapark a další.

Uvedená cena je bez DPH.

http: //www. archiproject. cz/projekt/rodinny - dum - pitkovice/
  • Vložení inzerátu:
    29.7.2020
  • Kód:
    00169
  • K dispozici od:
    0.0.0
  • Typ nemovitosti:
    Rodinný dům
  • Zastavěná plocha:
    128 m2
  • Podlahová plocha:
    187 m2
  • Plocha parcely:
    2160 m2
  • Terasa:
    Ano
  • Stav objektu:
    Novostavba
  • Umístění objektu:
    Okraj
  • Telekomunikace:
    Telefon, Kabelová televize, Kabelové rozvody
  • Elektřina:
    230 V, 380 V
  • Doprava:
    silnice, MHD, autobus, vlak
  • Plyn:
    plynovod
  • Odpad:
    kanalizace
  • Energetická náročnost:
    G - Mimořádne nehospodárná
  • Nabídky v okolí:
  • Informace o obci:
    Obec Praha má 1257158 obyvatel, z toho 889974 v produktivním věku.
    V obci se nachází pošta.
    V obci se nachází škola, popř. školka.
    V obci se nachází zdravotní zařízení.
    V obci je rozvod kanalizace.
    V obci je rozvod městské vody.
    V obci je rozvod plynu.

Podobné nabídky v okolí

Lokalita: Křemenáčová 1, Praha, Česká republika Křemenáčová 1, Praha