• Sledovat cenu
  •  

Zasílání upozornění emailem:

Rodinný dům, 187 m2 - Průběžná, Horoušany, okr. Praha-východ (již není v nabídce)

Cena: 8 900 000 Kč
Stav:archiv
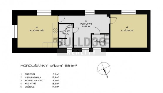
187 m2, parcela 947 m2
Popis: Nabízíme Vám na prodej rodinný dům, který se nachází v původní zástavbě v obci Horoušánky. Dům je od roku 1996 postupně rekonstruován – nová střecha, dřevěná okna, elektroinstalace, omítky, schodiště. V roce 2019 se re...alizovalo zateplení půdního prostoru, koupelna, lina, kuchyňská linka. Na půdě je stavební příprava pro topení, elektřinu, rozvody vody a je zde předpoklad využít prostor pro vestavbu, čímž by vznikly další dvě místnosti a celková obytná plocha by mohla být cca 116 m2. Na pozemku o výměře 947 m2 se nachází další dva samostatné objekty - stodola a bývalý chlév, momentálně využívány jako dílna a sklad zahradní techniky. Velkou výhodou nemovitosti je velká plocha zastavěných pozemků, která do budoucna skýtá potenciál k podnikání nebo rozšíření obytného prostoru. Necelý kilometr vzdušnou čarou se nachází Klánovický les, který je největším souvislým lesním komplexem na území Prahy. V blízkých Jirnech se nachází dobře vybavené zdravotní centrum. V budoucnu by měla vzniknout stanice vysokorychlostní vlaků v blízkých Nehvizdech, které by měla být v dojezdové vzdálenosti okolo 4 minut. Momentálně je možné využít vlakové spojení na Prahu přes Úvaly, pravidelnou autobusovou linkou č. 484 či přímo na Černý Most linku č. 344, které ve špičce jezdí několikrát za hodinu. Více info a termín Vaší osobní Vám rád sdělím po telefonu.
  • Vložení inzerátu:
    21.3.2022
  • Kód:
    00194
  • K dispozici od:
    0.0.0
  • Typ nemovitosti:
    Rodinný dům
  • Podlahová plocha:
    187 m2
  • Plocha parcely:
    947 m2
  • Stav objektu:
    Dobrý
  • Elektřina:
    230 V, 380 V
  • Doprava:
    vlak, silnice, autobus
  • Odpad:
    kanalizace
  • Energetická náročnost:
    G - Mimořádne nehospodárná
  • Nabídky v okolí:
  • Informace o obci:
    Obec Horoušany má 847 obyvatel, z toho 579 v produktivním věku.
    V obci je rozvod kanalizace.
    V obci je rozvod městské vody.

Podobné nabídky v okolí

Lokalita: Průběžná , Horoušany, okres Praha-východ, Česká republika Průběžná, Horoušany, okr. Praha-východ