• Sledovat cenu
  •  

Zasílání upozornění emailem:

Rodinný dům, 184 m2 - Lutínská, Praha 9, Újezd nad Lesy, Praha

Cena: 19 900 000 Kč
Stav:Volný
184 m2, cihlová, parcela 283 m2
Popis: Exkluzivně dvoupodlažní rodinný dům z roku 2009, který se nachází v klidné a bezpečné slepé ulici v rezidenční části Újezdu nad Lesy. Dům o zastavěné ploše 92 m2 a pozemku 283 m2 je ve výborném stavu a... nadstandardně vybaven, což z něj činí ideální místo pro rodinné bydlení.

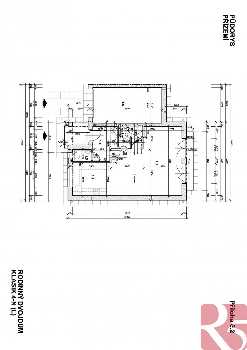
V přízemí se nachází prostorný obývací pokoj s francouzskými okny, které vedou do zimní terasy od společnosti Alukov. Obývací pokoj je propojen s kuchyňským koutem s moderní kuchyní na míru, vybavenou lakovanými dvířky a značkovými spotřebiči.

Ve vstupní chodbě je k dispozici samostatná toaleta a plynový kotel se zásobníkem na vodu. Garáž, aktuálně využívaná jako tělocvična s úložným prostorem, nabízí další možnosti využití. Parkování je zajištěno na pozemku před garáží a také před vraty.

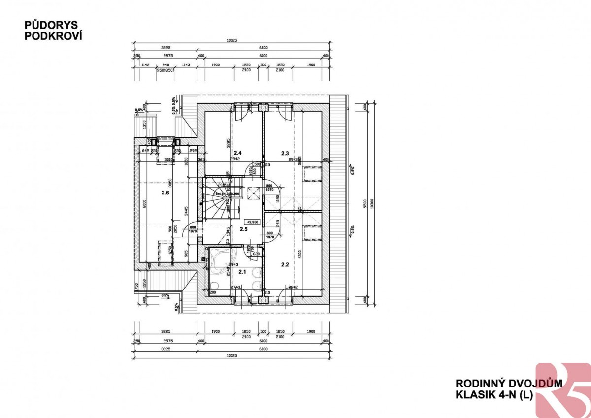
V prvním patře se nachází čtyři pokoje, které jsou nyní využívány jako ložnice, pracovna, dětský pokoj se šatnou a čtvrtý pokoj přestavěný na prostornou šatnu. Okna jsou vybavena venkovními elektrickými žaluziemi, včetně střešních, což zajišťuje soukromí, tepelnou pohodu a bezpečnost.

Za domem se nachází velký dřevěný domek a mnoho herních prvků pro děti, což z něj činí skvělé místo pro rodinné aktivity. Dále je zde vybudovaný zděný nadzemní bazén a zimní zahrada, která je ideální pro odpočinek.

Újezd nad Lesy je vyhledávaná městská část s výbornou dopravní dostupností a kompletní občanskou vybaveností. V okolí najdete školy, školky, obchody a restaurace, přičemž zastávky MHD jsou v docházkové vzdálenosti. Dům se nachází v blízkosti přírody, cyklostezek a parků, což poskytuje kombinaci klidu a soukromí, přičemž veškerá infrastruktura je doslova za rohem.

Je možnost ponechání kompletního vybavení a nábytku dle dohody, což je ideální pro okamžité nastěhování.

Vřele doporučuji, dům je bez investic připraven k bydlení.
Lokalita: Lutínská , Praha 9, Újezd nad Lesy, Praha, Česká republika Lutínská, Praha 9, Újezd nad Lesy, Praha

Kontakt

Miloslav Shejbal


Podobné nabídky v okolí


Volná pracovní místa ExpertPrace.cz
  • Objednání prohlídky a více informací
  •  
  • Poslat na e-mail
  •  

Zasílání odkazu na realitu emailem: