• Sledovat cenu
  •  

Zasílání upozornění emailem:

Rodinný dům, 182 m2 - Závišín , Zádub-Závišín, okr. Cheb (již není v nabídce)

Cena: 4 400 000 Kč
Stav:archiv
182 m2, cihlová, parcela 2501 m2
Popis: Cena včetně právního servisu a provize RK. Prodej rodinného domu ve velmi žádané Lokalitě Zádub - Závišín.

Hledáte ideální rodinný dům v klidné a malebné lokalitě blízko Mariánských Lázní? Máme pro vás skvělou nabídku. ... Tou je dvoupatrový rodinný dům s velkou, pečlivě udržovanou zahradou a rozlehlým pozemkem o celkové výměře 2501 m². Tento dům je ideálním místem pro klidný rodinný život v moc hezké přírodě s čistým vzduchem, a navíc nabízí veškerý komfort a prostor, který potřebujete.
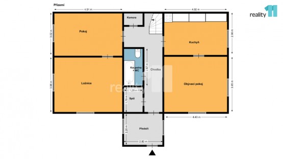
V přízemí se nachází zádveří a předsíň, které poskytují pohodlný vstup a uvítání hostů. Prostorná kuchyně může stát srdcem vašeho domova, zatímco světlý obývací pokoj je ideálním místem pro rodinné chvíle a relaxaci. Další pokoj může sloužit jako pracovna nebo dětský pokoj, a pohodlná ložnice zajišťuje klidný spánek. Komora je ideální pro uložení vašich věcí, a koupelna s sociální zařízení WC a malou technickou místností poskytuje veškerý komfort.

Po schodech se dostanete do patra, kde naleznete prostornou předsíň, samostatné sociální zařízení WC, dva velké pokoje ideální pro děti nebo hosty, jeden menší pokoj, který může sloužit jako pracovna nebo herna, jeden úzký malý pokojík a šatnu pro pohodlné uložení oblečení a dalších věcí.
Dům je vytápěn kotlem na pevná paliva s ústředním topením. Elektrický bojler zajišťuje ohřev vody. Dům je napojen na vlastní studnu a septik, což umožňuje nezávislost na obecních sítích. V současné době se ovšem dokončuje obecní kanalizace a vodovod, přičemž projekt pro napojení je již připravený.
Většina oken v domě je plastových, což zajišťuje dobré izolační vlastnosti a úsporu energie. K dispozici je také sklep pro uložení potravin a dalších věcí. Součástí domu jsou také zděné dílny, dvojgaráž a samostatná garáž, což poskytuje dostatek prostoru pro vaše vozidla a nářadí. Malá venkovní kuchyně je ideální pro letní grilování a posezení.
Opravdu veliká a pečlivě udržovaná zahrada je jedním z největších lákadel tohoto domu. Zde si můžete užít rodinné aktivity, zahradničení nebo jen relaxovat a obdivovat krásu okolní přírody. Zahrada poskytuje dostatek prostoru pro bezpečné hraní vašich dětí, pořádání rodinných oslav nebo jen odpočinek na čerstvém vzduchu.

Zádub - Závišín se nachází v těsné blízkosti Mariánských Lázní, což vám zaručuje snadnou dostupnost městské infrastruktury, kulturních a sportovních aktivit. Blízko je také golfové hřiště pro milovníky golfu. Tato lokalita je velice žádaná díky moc hezké přírodě a čistému vzduchu, což ji činí ideálním místem pro život.
Nepromeškejte tuto jedinečnou příležitost! Pro více informací a prohlídku nás neváhejte kontaktovat. Tento dům může být vaším novým vysněným domovem! Ev. číslo: 26512. Energetický štítek: G
  • Vložení inzerátu:
    18.4.2025
  • Kód:
    3975129
  • Typ nemovitosti:
    Rodinný dům
  • Typ budovy:
    Cihlová
  • Zastavěná plocha:
    92 m2
  • Podlahová plocha:
    182 m2
  • Plocha parcely:
    2501 m2
  • Sklep:
    Ano
  • Stav objektu:
    Dobrý
  • Umístění objektu:
    Klidná část
  • Energetická náročnost:
    G - Mimořádne nehospodárná
  • Nabídky v okolí:

Podobné nabídky v okolí

Lokalita: Závišín , Zádub-Závišín, okres Cheb, Česká republika Závišín , Zádub-Závišín, okr. Cheb, Karlovarský kraj