• Sledovat cenu
  •  

Zasílání upozornění emailem:

Rodinný dům, 178 m2 - Velká Jesenice , okr. Náchod

Cena: 4 950 000 Kč
Stav:Volný
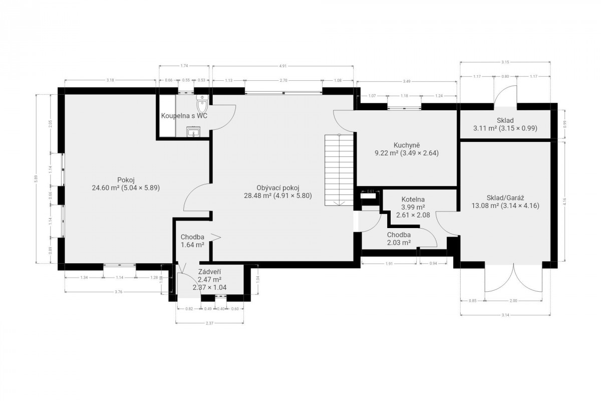
178 m2, cihlová, parcela 778 m2
Popis: Hledáte místo, kde budete mít klid, soukromí a zároveň krásnou přírodu na dosah ruky? Tento rodinný dům ve Velké Jesenici, jen pár minut od přehrady Rozkoš, nabízí ideální kombinaci pohodlného bydlení a venkovské pohody. ...

Dům stojí v srdci malebné obce, která si zachovává příjemnou atmosféru sousedského života, a přitom poskytuje základní občanskou vybavenost – obchod, školku, restauraci i dobré spojení do nedalekého Náchoda či České Skalice. Ať už hledáte trvalé bydlení nebo víkendové útočiště, tahle nemovitost má co nabídnout.

Přízemí domu vás přivítá útulným obývacím pokojem s krbem, který propojuje patro otevřeným prostorem a vytváří tak příjemnou vzdušnost. Dále zde najdete plně vybavenou kuchyni, pokoj vhodný například jako pracovna či ložnice pro hosty, koupelnu a technické zázemí – kotelnu a garáž, kterou majitelé využívají jako sklad paliva.

V podkroví se nacházejí čtyři samostatné pokoje, ideální pro rodinné bydlení nebo pohodlné ubytování více osob. Za domem vás potěší kryté venkovní posezení – ideální pro letní grilování nebo klidné večery s výhledem do zeleně. Součástí zahrady je i menší sklípek a prostor pro pěstování, odpočinek nebo dětské hry.

Dům je napojen na obecní vodovod i kanalizaci. Vytápění zajišťuje kotel na tuhá paliva napojený na ústřední topení, ohřev vody pak elektrický bojler.

Naproti přes cestu je navíc k dispozici řadová garáž s vlastním pozemkem za ní – ideální pro parkování, dílnu nebo jako další úložný prostor.

Zaujala vás tato nabídka? Přijďte se přesvědčit osobně o kouzlu tohoto místa. Kontaktujte nás a domluvte si prohlídku – možná právě tady na vás čeká váš nový domov nebo chalupa snů.
  • Vložení inzerátu:
    19.11.2025
  • Kód:
    2025019
  • K dispozici od:
    0.0.0
  • Typ nemovitosti:
    Rodinný dům
  • Typ budovy:
    Cihlová
  • Podlahová plocha:
    178 m2
  • Plocha parcely:
    778 m2
  • Sklep:
    Ano
  • Stav objektu:
    Dobrý
  • Rok rekonstrukce:
    1980
  • Umístění objektu:
    Klidná část
  • Voda:
    dálkový vodovod
  • Elektřina:
    230 V, 380 V
  • Doprava:
    silnice
  • Odpad:
    kanalizace
  • Komunikace:
    asfaltová
  • Energetická náročnost:
    G - Mimořádne nehospodárná
  • Nabídky v okolí:
  • Informace o obci:
    Obec Velká Jesenice má 761 obyvatel, z toho 521 v produktivním věku.
    V obci se nachází pošta.
    V obci je rozvod kanalizace.
    V obci je rozvod městské vody.
Lokalita: Velká Jesenice , okres Náchod, Česká republika Velká Jesenice , okr. Náchod, Královéhradecký kraj

Kontakt

Ing. Josef Fuchs, MBA
Objednání prohlídky a více informací



Volná pracovní místa ExpertPrace.cz
  • Objednání prohlídky a více informací
  •  
  • Poslat na e-mail
  •  

Zasílání odkazu na realitu emailem: