• Sledovat cenu
  •  

Zasílání upozornění emailem:

Rodinný dům, 177 m2 - Bartovice , Ostrava, okr. Ostrava-město

Cena: 12 490 000 Kč
Stav:Volný
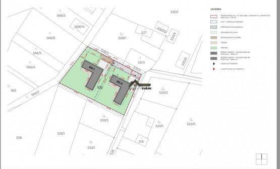
177 m2, cihlová, parcela 739 m2
Popis: Poslední dům v lokalitě.

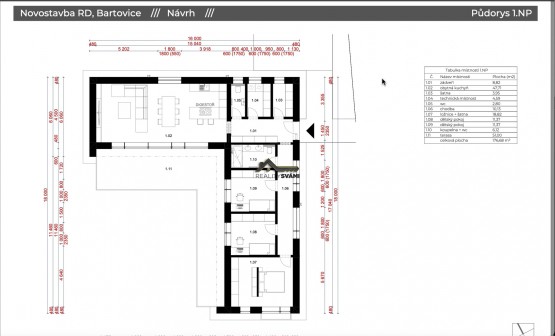
Nabízíme k prodeji novostavbu rodinného domu, ve fázi výstavby, před dokončením, umístěnou v klidné části Ostravy Bartovic. Dům disponuje 177m2 užitné plochy, kdy obytnou část tvoří ...126m2 a 51m2 terasy, která je otočená na jihozápad, což zajišťuje dostatek slunečního svitu i v pozdějších odpoledních hodinách. Zahrada a umístění terasy nabízí možnost k vybudování bazénu, což sice není součástí projektu, ale je možné po dohodě stavbu bazénu realizovat

Samotný dům je zděný, s dispozicí 4+kk, technickou místností, šatnou, koupelnou s sociální zařízení WC a samostatným sociální zařízení WC, spojeným obývacím pokojem s kuchyní, kde je umístěný vstup na terasu. Ten je také možný z obou menších pokojů.

Dům ve fázi výstavby, kdy je hotová střecha, fasáda, příprava pro venkovní žaluzie a mnoho dalšího, ale i tak se zde nabízí možnost ovlivnit použité materiály, či změnit barevnost použitých materiálů, nebo rozložení kuchyňské linky. Nelze zasahovat do rozložení domu. V domě je dále použito vodní podlahové topení s tepelným čerpadlem, klimatizace v každém pokoji. Stavba je napojena na elektřinu, vodu a kanalizace bude řešena pomocí ČOV (osobní vlastnictví). Obec má v plánu rozšíření kanalizace, což bude možné do budoucna použít pro napojení domu.

Stavba je naceněna s kompletním dokončením, včetně terénních úprav. Oplocení je věcí dohody, ale bude komplet mimo přední části pozemku, zde zůstává prostor pro použití okrasných plotů, apod.

Ulice je průjezdná, nicméně zajíždí zde pouze obyvatelé, jelikož se vrací opět na hlavní komunikaci, což zaručuje dostatek klidu a soukromí. Jedná se o 2 stejné stavby vedle sebe, kdy jedna je již prodaná, které jsou ovšem řešeny tak, ať obyvatelům zajistí dostatek soukromí a klidu. Pro více informací nás neváhejte kontaktovat. Projekt je samozřejmě k nahlédnutí, při osobní schůzce.

V okolí nalezneme dopravní spojení do okolních měst a na své si přijdou i rodiny s dětmi, díky otevření nedalekého Kouparku v Radvanicích, dostupného cca 2 zastávky autobusem.
  • Vložení inzerátu:
    19.8.2025
  • Kód:
    00576
  • K dispozici od:
    0.0.0
  • Typ nemovitosti:
    Rodinný dům
  • Typ budovy:
    Cihlová
  • Podlahová plocha:
    177 m2
  • Plocha parcely:
    739 m2
  • Terasa:
    51 m2
  • Stav objektu:
    Ve výstavbě
  • Umístění objektu:
    Klidná část
  • Telekomunikace:
    , Satelit
  • Voda:
    dálkový vodovod
  • Elektřina:
    230 V, 380 V
  • Doprava:
    silnice, MHD, autobus
  • Odpad:
    ČOV
  • Bezbariérový přístup:
    Ano
  • Energetická náročnost:
    A - Mimoˇrádne úsporná
  • Podle vyhlášky:
    c. 78/2013 Sb.
  • Ukazatel náročnosti:
    40 kWh/m2
  • Nabídky v okolí:
Lokalita: Bartovice , Ostrava, okres Ostrava-město, Česká republika Bartovice , Ostrava, okr. Ostrava-město, Moravskoslezský kraj

Kontakt

Jiří Sváček



Volná pracovní místa ExpertPrace.cz
  • Objednání prohlídky a více informací
  •  
  • Poslat na e-mail
  •  

Zasílání odkazu na realitu emailem: