• Sledovat cenu
  •  

Zasílání upozornění emailem:

Rodinný dům, 173 m2 - Dolnice, Brno, okr. Brno-město

Cena: 16 500 000 Kč
Stav:Volný
173 m2, cihlová, parcela 168 m2
Popis: Hledáte domov, který má svůj příběh, prostor pro celou rodinu a zároveň poskytne zázemí i pro vaše podnikání?
Pak vás nadchne tento stylový rodinný dům z období první republiky, který prošel mezi lety 2005–2011 citlivou mo...dernizací. Spojuje tak šarm minulosti s komfortem současnosti.

O teplo domova se stará plynový kondenzační kotel s externím zásobníkem teplé vody o objemu 120 l.
Všechna okna v domě jsou plastová s dvojskly, pouze v ložnici je plastové okno s izolačními trojskly. Prostorná moderní kuchyňská linka zn. Sýkora je vybavena vestavnými spotřebiči, plynovou varnou deskou a důmyslně vymyšleným úložným systémem. Tato kuchyň se stane srdcem vašeho nového domova.

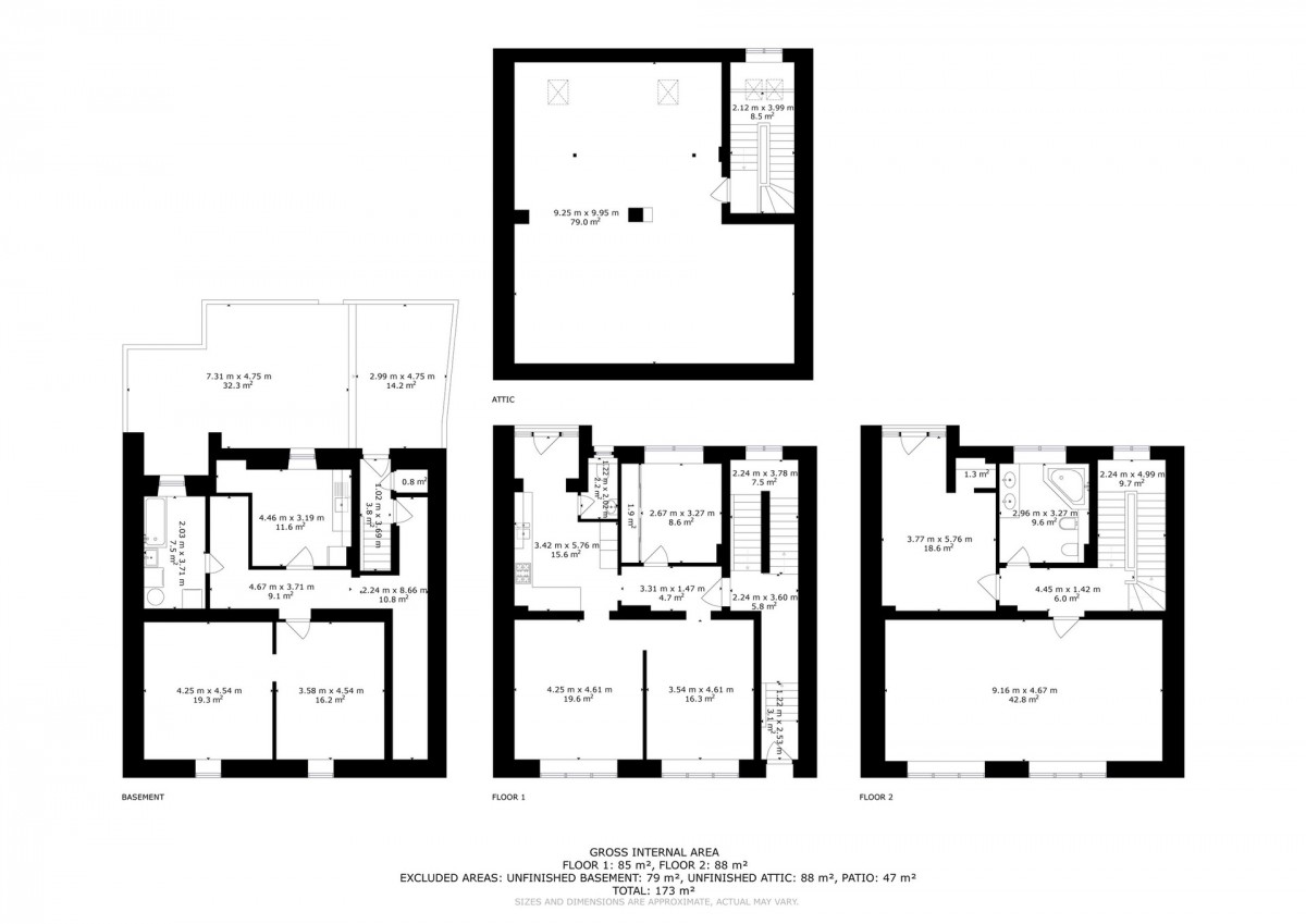
Pokud máte v plánu rozšířit svoji rodinu o dalšího člena, pro tento dům to není žádný problém. Půdní prostor je nachystaný k dokončení dle vašich představ a potřeb. Jsou zde přivedeny stoupačky (vertikální svody) i rozvody.

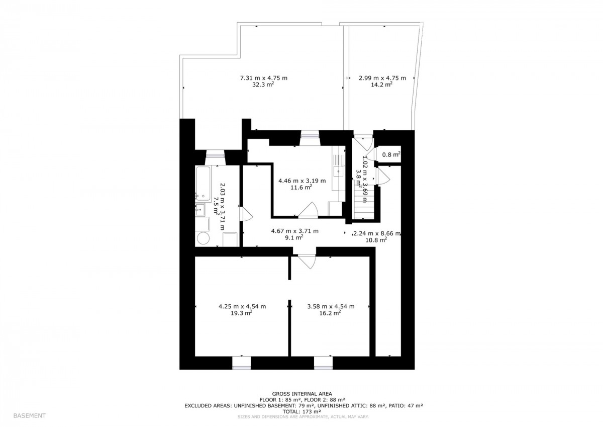
Dům je celý podsklepený, takže nabízí spoustu úložného i užitného prostoru. Najdete zde sklep, technickou místnost, posilovnu i druhou kuchyň – ideální při rodinných oslavách, grilování s přáteli nebo vaření sezónních dobrot.

V roce 2024 byla povolena změna užívání dvou místností na kanceláře, takže část domu můžete využívat k podnikání přímo z domova.

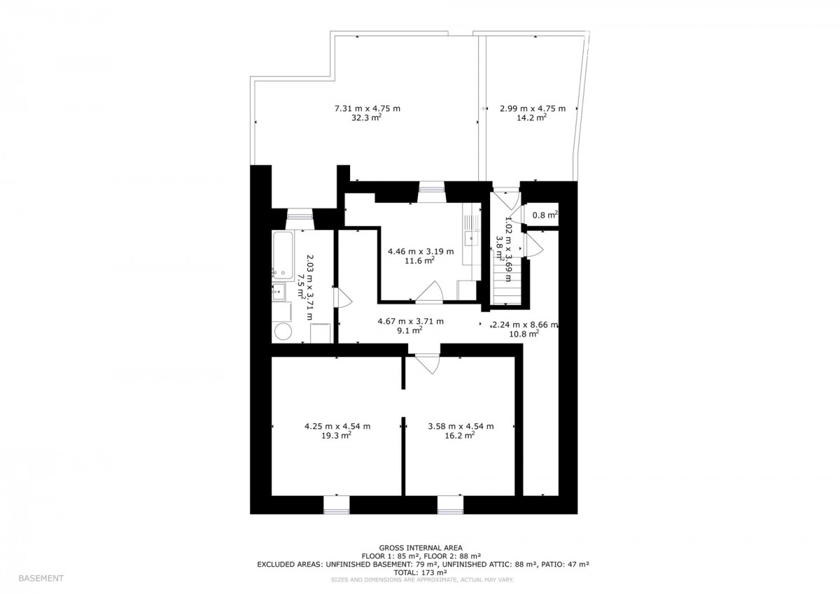
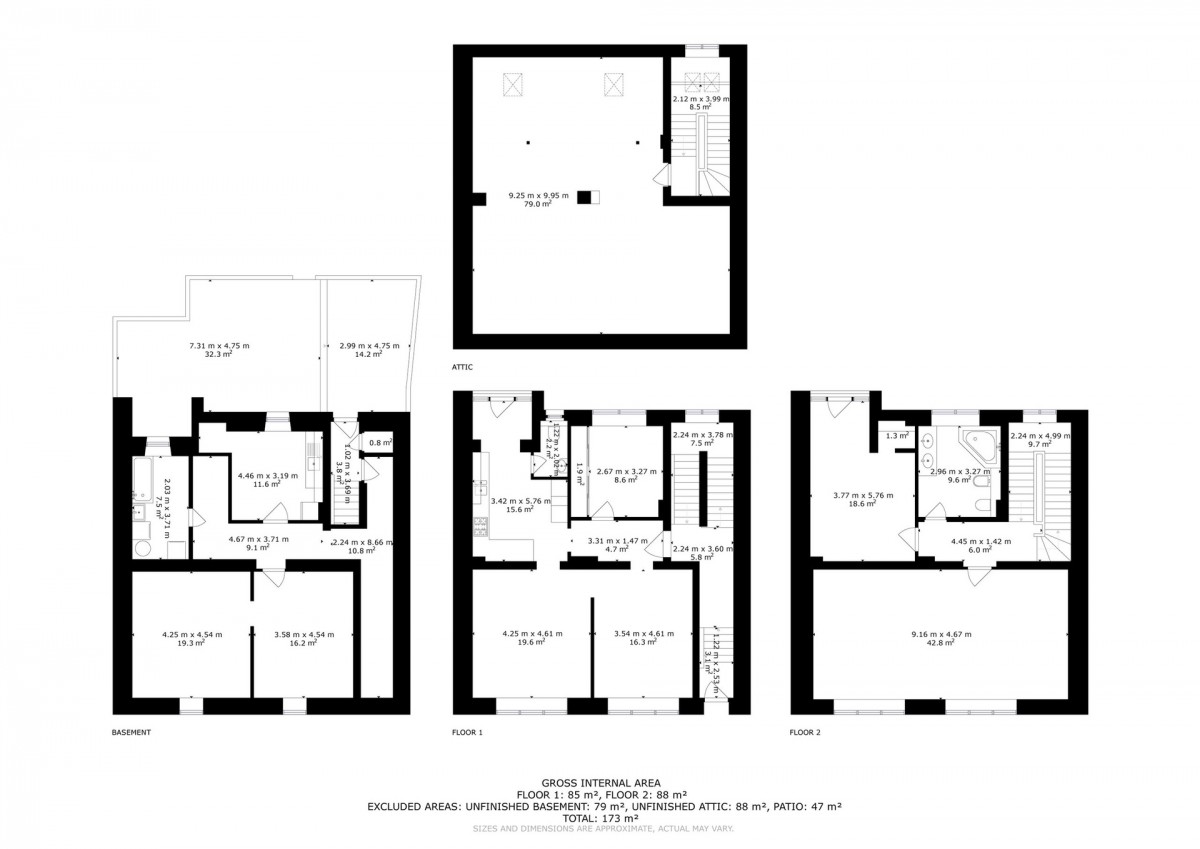
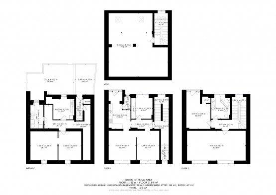
Dispozice domu:
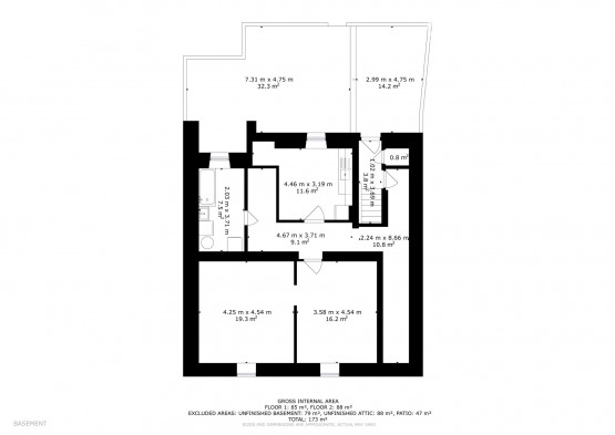
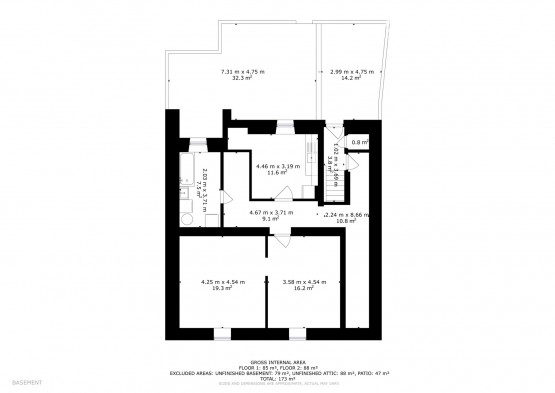
1. PP - 79 m2 - sklepní prostory a suterénní místnosti
1. NP (první nadzemní patro) - 85 m2 - kuchyň, jídelna, obývací pokoj, pracovna, sociální zařízení WC
2. NP (druhé nadzemní patro) - 88 m2 - prostorný pokoj, ložnice, koupelna s sociální zařízení WC a bidetem
3. NP (třetí nadzemní patro) - 88 m2 - půdní prostory
Všechna patra propojuje schodiště z kvalitního dřeva.

Krásná a udržovaná zahrada je připravena na vaše pěstitelské nápady, ale i na radostné setkání s rodinou, přáteli při jakékoli příležitosti.

Dům se nachází v jedné z nejžádanějších částí Brna – v Řečkovicích, v klidné slepé ulici Dolnice. Okolí je ideální pro rodiny s dětmi i pro všechny, kdo si chtějí užívat pohodu městské části s atmosférou menšího města.
V docházkové vzdálenosti se nachází mateřská i základní škola, dětské hřiště, nákupní možnosti (Globus), zastávka MHD i zeleň pro procházky. Na cyklostezku a do přírody pod Medláneckým kopcem je to jen pár minut chůze.
Díky výbornému dopravnímu spojení jste autem i MHD v centru Brna za 15–20 minut, a přesto můžete každý den usínat v tichu ulice, kde děti bezpečně jezdí na kole.

Je tento dům právě ten váš vysněný a potřebujete pomoci a poradit s financováním? I s tímto vám mohu pomoct.

V případě zájmu o prohlídku mi neváhejte zavolat a domluvit si termín.
  • Vložení inzerátu:
    4.11.2025
  • Kód:
    BK412338
  • K dispozici od:
    0.0.0
  • Typ nemovitosti:
    Rodinný dům
  • Typ budovy:
    Cihlová
  • Podlahová plocha:
    173 m2
  • Plocha parcely:
    168 m2
  • Sklep:
    79 m2
  • Stav objektu:
    Velmi dobrý
  • Umístění objektu:
    Klidná část
  • Voda:
    dálkový vodovod
  • Elektřina:
    230 V
  • Doprava:
    silnice, dálnice, MHD, autobus, vlak
  • Topeni:
    ústřední plynové
  • Plyn:
    plynovod
  • Odpad:
    kanalizace
  • Komunikace:
    asfaltová
  • Energetická náročnost:
    G - Mimořádne nehospodárná
  • Nabídky v okolí:
  • Informace o obci:
    Obec Brno má 371371 obyvatel, z toho 256490 v produktivním věku.
    V obci se nachází pošta.
    V obci se nachází škola, popř. školka.
    V obci se nachází zdravotní zařízení.
    V obci je rozvod kanalizace.
    V obci je rozvod městské vody.
    V obci je rozvod plynu.
Lokalita: Dolnice , Brno, okres Brno-město, Česká republika Dolnice, Brno, okr. Brno-město



Volná pracovní místa ExpertPrace.cz
  • Objednání prohlídky a více informací
  •  
  • Poslat na e-mail
  •  

Zasílání odkazu na realitu emailem: