• Sledovat cenu
  •  

Zasílání upozornění emailem:

Rodinný dům, 172 m2 - Mořina , okr. Beroun

Cena: 7 494 310 Kč
Stav:Volný
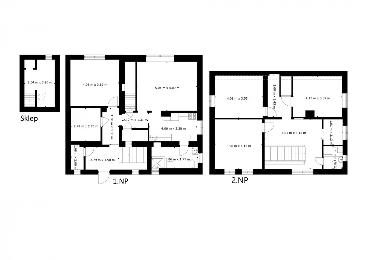
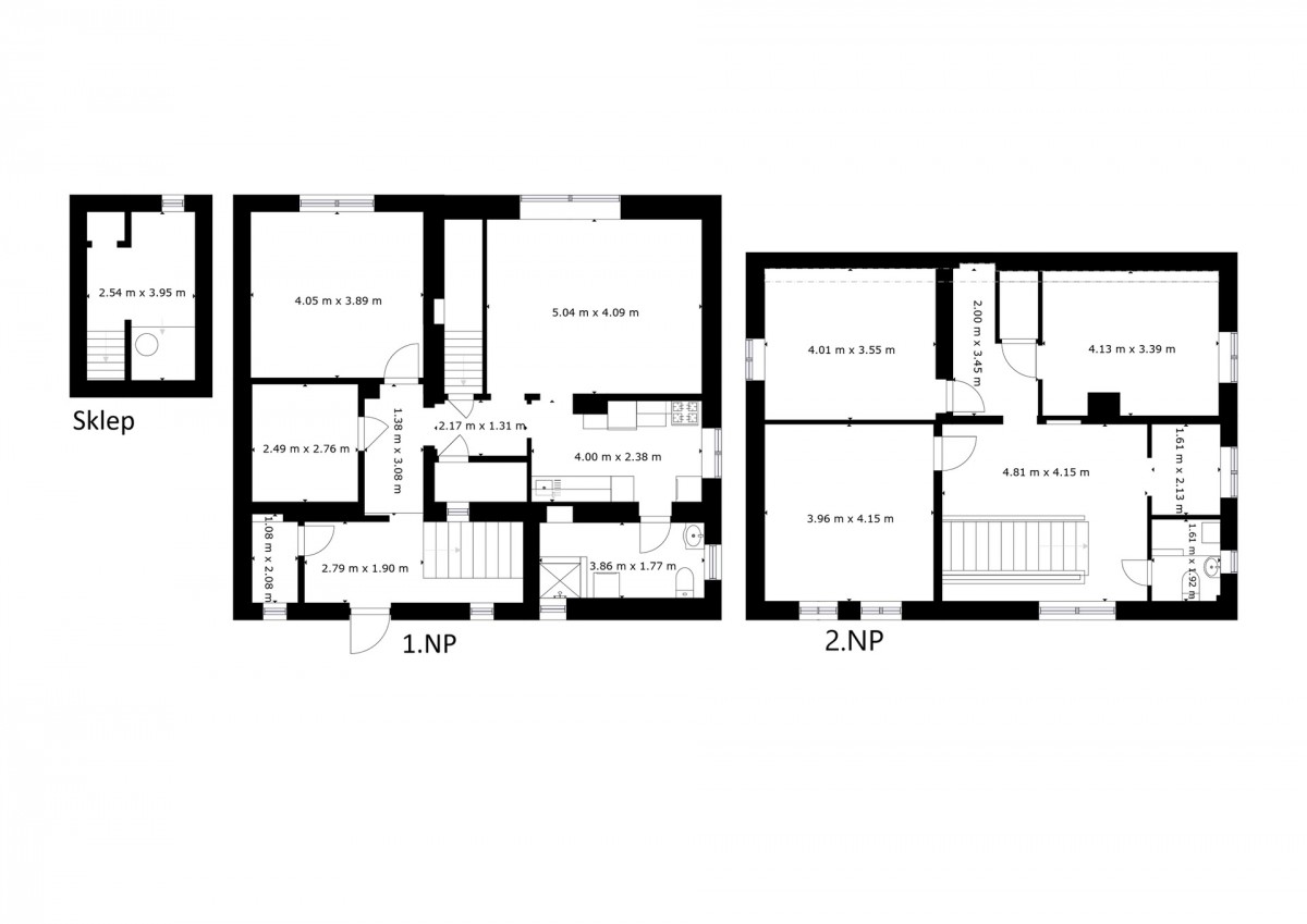
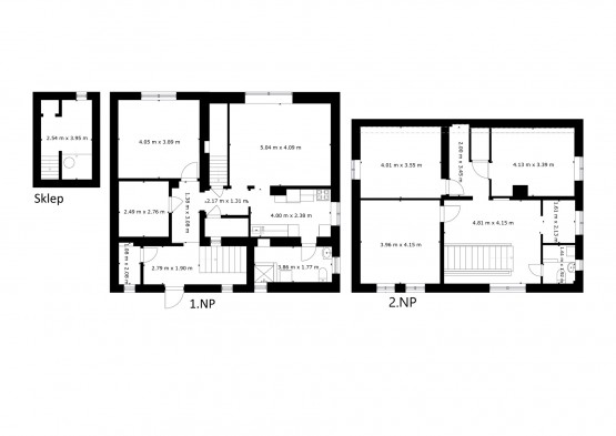
172 m2, cihlová, parcela 1155 m2
Popis: Nabízíme k prodeji dvoupodlažní dům v malebné obci Mořina u Berouna. V přízemí se nachází byt 3+1, v patře jsou tři další pokoje a sociální zařízení. Obec disponuje základní občansk...ou vybaveností: školou, školkou, obchody, doktorem i poštou. Nedaleko jsou turisticky atraktivni místa jako, lom velká i malá amerika , hrad Karlštejn a další. Nesmíme zapomenout na cyklostezky, které jsou opravdovou pastvou pro oči. V blízkých Letech, Dobřichovicích a Řevnicích najdete další služby, restaurace, pivovar, Lidl a možnosti volnočasových aktivit. Díky dobré dostupnosti do Berouna i Prahy je tato lokalita ideální a žádaná pro rodinné bydlení.
Prodávající si vyhrazuje právo výběru kupujícího. Tato nabídka není návrhem na uzavření smlouvy (ve smyslu § 1731 a násl. občanského zákoníku) ani veřejným příslibem (§ 2884 občanského zákoníku). Uvedené informace mají výhradně informativní charakter a mohou se v průběhu prodeje měnit.
Pro více informací popřípadě prohlídku volejte.
  • Vložení inzerátu:
    10.2.2025
  • Kód:
    PL100/65
  • K dispozici od:
    0.0.0
  • Typ nemovitosti:
    Rodinný dům
  • Typ budovy:
    Cihlová
  • Zastavěná plocha:
    599 m2
  • Podlahová plocha:
    172 m2
  • Plocha parcely:
    1155 m2
  • Sklep:
    10 m2
  • Stav objektu:
    Před rekonstrukcí
  • Umístění objektu:
    Klidná část
  • Voda:
    dálkový vodovod
  • Elektřina:
    230 V
  • Doprava:
    MHD, autobus
  • Topeni:
    ústřední plynové
  • Plyn:
    plynovod
  • Odpad:
    kanalizace
  • Komunikace:
    asfaltová
  • Energetická náročnost:
    G - Mimořádne nehospodárná
  • Nabídky v okolí:
  • Informace o obci:
    Obec Mořina má 773 obyvatel, z toho 528 v produktivním věku.
    V obci se nachází pošta.
    V obci se nachází zdravotní zařízení.
    V obci je rozvod kanalizace.
    V obci je rozvod plynu.
Lokalita: Mořina , okres Beroun, Česká republika Mořina , okr. Beroun, Středočeský kraj


Podobné nabídky v okolí


Volná pracovní místa ExpertPrace.cz
  • Objednání prohlídky a více informací
  •  
  • Poslat na e-mail
  •  

Zasílání odkazu na realitu emailem: