• Sledovat cenu
  •  

Zasílání upozornění emailem:

Rodinný dům, 170 m2 - Liteň, okr. Beroun (již není v nabídce)

Cena: 9 650 000 Kč
Stav:archiv
170 m2, cihlová, parcela 919 m2
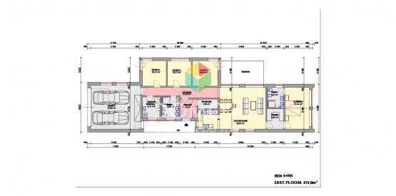
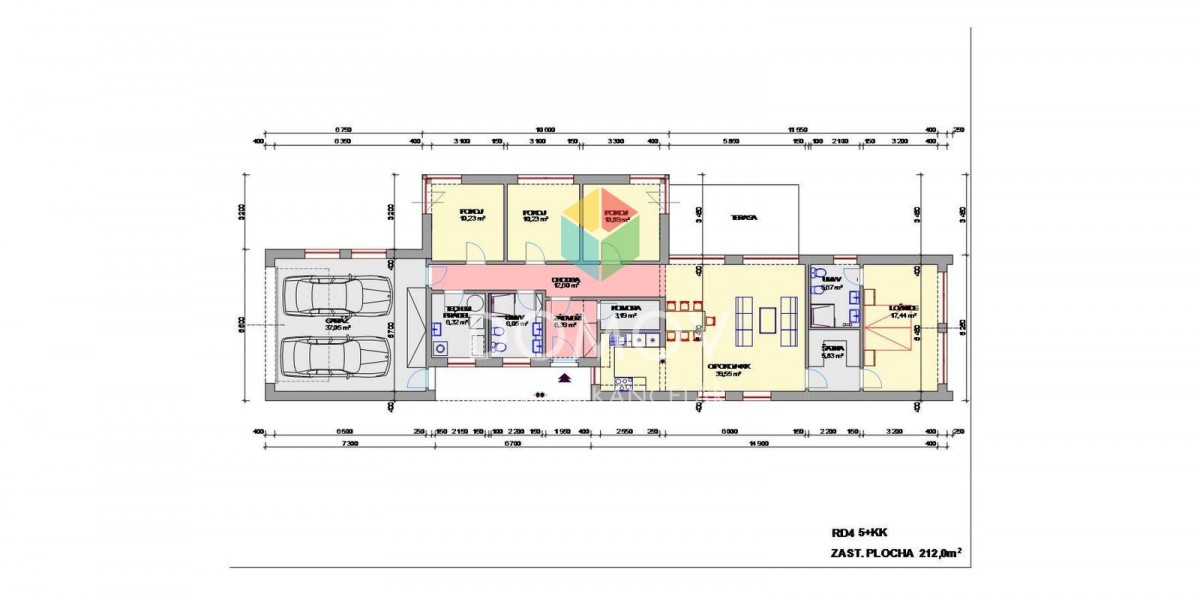
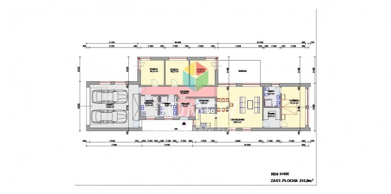
Popis: Nabízíme Vám k prodeji nový dům s podlahovou plochou 170, 45 m2, s pozemkem 919 m2. Jedná se o cihlovou novostavbu na kraji obce Liteň, s moc hezkým výhledem do okolí, blízko chráněné krajinné oblast...i Český kras, s možnostmi dojíždění do Prahy nebo Berouna. Na dohled je golfové hřiště a hrad Karlštejn, Praha 30 km, v obci autobusová i vlaková zastávka. Dům je řešen jako 5+kk, najdeme v něm velký obývací pokoj se vstupem na terasu, ložnici se samostatnou koupelnou a šatnou, další 3 pokoje. Druhá koupelna, technická místnost, komora a garáž pro 2 auta jsou další prvky, zapadající do pohodlného bydlení pro současnou rodinu. Všechny materiály a barvy jsou hezky sladěné, podle posledních trendů. Pokud by měl zájemce jiné představy, může si ještě v této fázi v rámci klientských změn nechat udělat úpravy podle přání. V ceně je dokončený dům, včetně podlah, obkladů, vybavení koupelen, dveří a přípravou na kuchyňskou linku. Dokončení jaro 2021. Už dnes je možné se jet na pozemky podívat - projekt počítá se 17 domy čtyř typů (4kk - 5kk) a zarezervovat si dům, který splňuje Vaše představy. Lokalita je velice výhodná - nedaleko lesy, cyklostezky, v obci škola, školka, lékař. Silnice mezi domy je jen pro rezidenty, je tu klid, domy jsou na pozemcích navrženy tak, aby chránily soukromí majitelů. Bonusem budou moderní prvky navržené architektem, mimo jiné zelená vegetace nad rovnou částí střechy.
  • Vložení inzerátu:
    17.8.2020
  • Kód:
    750/29
  • Typ nemovitosti:
    Rodinný dům
  • Typ budovy:
    Cihlová
  • Podlaží:
    1
  • Zastavěná plocha:
    212 m2
  • Podlahová plocha:
    170 m2
  • Plocha parcely:
    919 m2
  • Terasa:
    Ano
  • Umístění objektu:
    Okraj
  • Telekomunikace:
    Internet, Kabelové rozvody
  • Voda:
    dálkový vodovod
  • Elektřina:
    230 V
  • Doprava:
    vlak, silnice, autobus
  • Topeni:
    ústřední plynové
  • Plyn:
    plynovod
  • Odpad:
    kanalizace
  • Bezbariérový přístup:
    Ano
  • Energetická náročnost:
    B - Velmi úsporná
  • Nabídky v okolí:
  • Informace o obci:
    Obec Liteň má 1078 obyvatel, z toho 759 v produktivním věku.
    V obci se nachází pošta.
    V obci se nachází škola, popř. školka.
    V obci se nachází zdravotní zařízení.
    V obci je rozvod městské vody.
    V obci je rozvod plynu.

Podobné nabídky v okolí

Lokalita: Liteň, okres Beroun, Česká republika Liteň, okr. Beroun, Středočeský kraj