• Sledovat cenu
  •  

Zasílání upozornění emailem:

Rodinný dům, 167 m2 - Český Herálec , Herálec, okr. Žďár nad Sázavou (již není v nabídce)

Cena: 6 750 000 Kč
Stav:archiv
167 m2, cihlová, parcela 905 m2
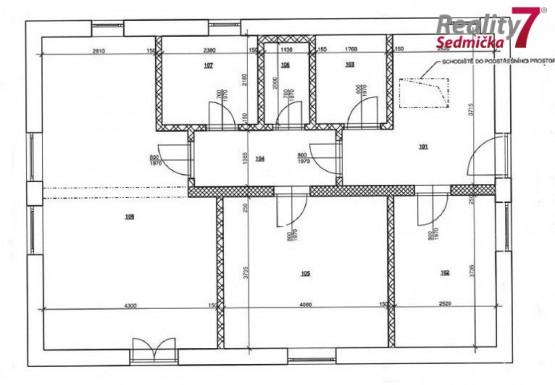
Popis: Nový rodinný dům na Vysočině, Herálec pod Žákovou horou (650 m n. m. ) Uvažujete o stavbě nového domu, jenže vás odrazují ceny stavebních prací a metriálů nebo dluhé vyřizování stavebního povolení? Právě pro vás máme novos...tavbu samostatného RD (rodinný dům) č. p. 565 (zdivo Heluz Family), energ. třídy B o zastavěné ploše 102 m2 (12 krát 8, 5) s dispozicí 3+kk v přízemí (81 m2) a podkroví bez příček (86 m2) umožňuje řešit dispozice dle vlastních představ, s pozemkem o rozměru 905 m2, s parkováním na vlastním pozemku.
V přízemí domu je obývací pokoj s kuchyňským koutem, ložnice, pokoj, koupelna, sociální zařízení WC, chodba, technická místnost, vstupní část. V 1. NP (první nadzemní patro) volný prostor pro vytvoření další obytné části, celé patro je bez příček s kročejovou izolací a podlahou z OSB desek, připravená elektroinstalace a odpady.
Dům je napojen na obecní vodovod, splaškovou a dešťovou kanalizaci, plyn dále je zajištěn zabezpečovací signalizací s přenosem informací o stavu objektu.
Obec Herálec leží v severovýchodní části kraje Vysočina na úpatí nejvyšších vrcholů chráněné krajinné oblasti Žďárské vrchy (Devět skal 836 m, Žákova hora 810 m) obklopena hlubokými lesy. Občanská vybavenost: mateřská škola, základní škola, dětský, praktický a zubní lékaři, veterinární lékař, prodejna potravin. V okolí je možnost procházek, cykloturistiky v lesích CHKO s velkým množstvím značených turistických cest, cyklotras a asfaltových a zpevněných lesních cest. Ve vzdálenosti 200 m od nemovitosti je atletická tartanová dráha, tenisový kurt, fotbalové hřiště. Přes silnici se v zimě upravuje běžecká stopa. Golfová hřiště v okolí: Svratka – 6 km, Hamry – 18 km a dále Kunětická hora. Sjezdovka Hlinsko – 10 km, sjezdovka Nové Město na Moravě a Vysočina Aréna (dějiště světových pohárů, biatlonu) – 20 km.
  • Vložení inzerátu:
    16.8.2023
  • Kód:
    00325
  • K dispozici od:
    0.0.0
  • Typ nemovitosti:
    Rodinný dům
  • Typ budovy:
    Cihlová
  • Zastavěná plocha:
    102 m2
  • Podlahová plocha:
    167 m2
  • Plocha parcely:
    905 m2
  • Stav objektu:
    Velmi dobrý
  • Umístění objektu:
    Klidná část
  • Voda:
    dálkový vodovod
  • Elektřina:
    230 V, 380 V
  • Doprava:
    silnice, autobus
  • Topeni:
    ústřední plynové
  • Plyn:
    plynovod
  • Odpad:
    kanalizace
  • Komunikace:
    asfaltová
  • Energetická náročnost:
    B - Velmi úsporná
  • Podle vyhlášky:
    c. 78/2013 Sb.
  • Ukazatel náročnosti:
    15.3 kWh/m2
  • Nabídky v okolí:

Podobné nabídky v okolí

Lokalita: Český Herálec , Herálec, okres Žďár nad Sázavou, Česká republika Český Herálec , Herálec, okr. Žďár nad Sázavou, Vysočina