Rodinný dům, 164 m2 - Chotěnovská, Praha 21, Praha (již není v nabídce)
Cena:
0 Kč/měsíc
Stav:archiv
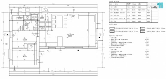
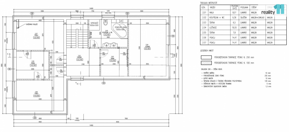
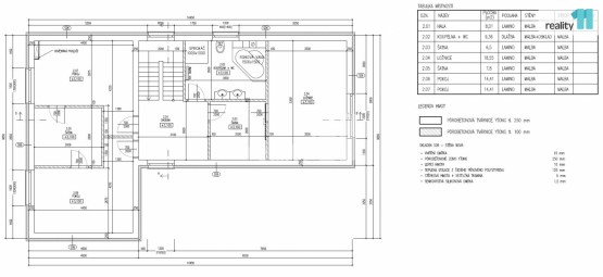
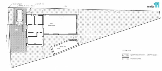
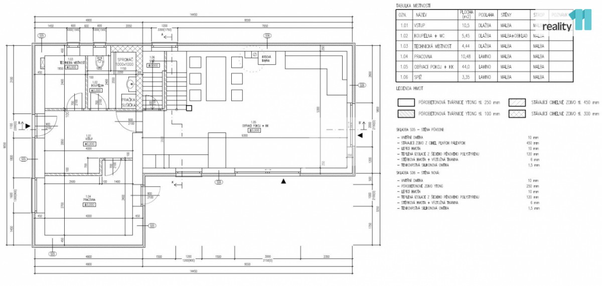
164 m2, cihlová, parcela 413 m2
Popis:
Reality 11 Vám zprostředkují exkluzivní nabídku novostavby velmi promyšleného a pěkného prostorného domu 5+kk s obytnou plochou 164 m², přístavek pro uskladnění kol a pod. 8 m²..., kryté stání pro 1 - 2 auta (cca 45 m²).
Zahrada o velikosti 413 m².
Dům se nachází na velmi hezkém a klidném místě, autobus a obchod jsou v dosahu cca 200m, škola a úřad cca 350m.
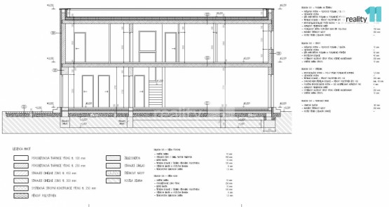
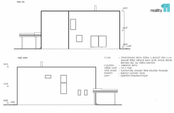
- tepelné čerpadlo nebo kondenzační plyn. kotel + krb
- klimatizace v každé obytné místnosti
- elektrické venkovní rolety
- okna trojskla, tepelná izolace domu v pasivním standardu
- přivedené sítě el, kanalizace, voda, plyn v silnici (v případě potřeby)
- velká výhoda je pouze 1 soused
- možnost parkování až 4 vozidel na pozemku, možnost bazénu atd. . . ¨
- terasa 35 m² s posezením (a grilem) z obývacího pokoje poskytuje úplné soukromí
Na domě se neustále pracuje a je možné stále měnit či upravovat dispozice, ovlivnit výběr keramiky, podlah, dveří, zařizovacích předmětů, barev jak fasády tak interiéru, plotu atd - případně jde cokoli ještě přestavět.
Cena domu je za kompletní provedení, dokončení je plánováno na jaro/léto 2022.
V případě zájmu o prohlídku nemovitosti, kontaktujte makléře na tel. čísle nebo emailem. Ev. číslo: 22904. Energetický štítek: B
- Vložení inzerátu:
5.1.2022
- Kód:
3271818
- Typ nemovitosti:
Rodinný dům
- Typ budovy:
Cihlová
- Zastavěná plocha:
105 m2
- Podlahová plocha:
164 m2
- Plocha parcely:
413 m2
- Terasa:
Ano
- Stav objektu:
Novostavba
- Energetická náročnost:
B - Velmi úsporná
- Nabídky v okolí:
Lokalita:
Chotěnovská , Praha 21, Praha, Česká republika
Chotěnovská, Praha 21, Praha