• Sledovat cenu
  •  

Zasílání upozornění emailem:

Rodinný dům, 162 m2 - Kaunicova, Slavkov u Brna, okr. Vyškov (již není v nabídce)

Cena: 5 500 000 Kč
Stav:archiv
162 m2, cihlová, parcela 608 m2
Popis: Hledáte prostory pro podnikání, dům k investici či pro své bydlení - nabízíme Vám jedinečnou příležitost.

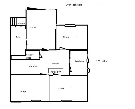
Vše vyřešíte zakoupením samostatně stojícího rodinného dvougeneračního domu + dvůr + zahrádka ve Slavkově u Brna..., Kaunicova 444. Dům je plně podsklepený s garáží a technickým zázemím. Má jedno nadzemní podlaží (4 +1) a druhé podlaží se 2 obývacími pokoji, které se dají předělat na byt 2+kk. Ve zbývající půdní části je možno vybudovat další 2 byty 1+ kk či další obývací pokoje. Dům je široký cca 13m. Šířka parcely je 18 m. Do domu se vstupuje po schodišti v závětří. Pro vjezd do dvora slouží ocelová brána, kde lze vybudovat druhou velkou garáž. Dvůr je zpevněn dlažbou z žulových kostek a částečně betonovou mazaninou. Příslušenství domu tvoří vedlejší hospodářská stavba a studna.

Rodinný dům s dvorem a zahrádkou (pč. 1289/2 + pč. 1288)

Dům je blízko náměstí, naproti domu je kaštanová alej, která přechází ve sportovní stadion. Za sportovním stadionem se nachází golfové hřiště a vyhledávané koupaliště s kurty na volejbal. Pokud budete pokračovat dále, dojdete do místního odpočinkového lesoparku.
Cena k jednání - nejvyšší cenová nabídka nad 5, 5 mil. Kč
  • Vložení inzerátu:
    4.9.2019
  • Kód:
    14156
  • Typ nemovitosti:
    Rodinný dům
  • Typ budovy:
    Cihlová
  • Zastavěná plocha:
    162 m2
  • Podlahová plocha:
    162 m2
  • Plocha parcely:
    608 m2
  • Stav objektu:
    Před rekonstrukcí
  • Bezbariérový přístup:
    Ano
  • Energetická náročnost:
    G - Mimořádne nehospodárná
  • Nabídky v okolí:
  • Informace o obci:
    Obec Slavkov u Brna má 6245 obyvatel, z toho 4396 v produktivním věku.
    V obci se nachází pošta.
    V obci se nachází škola, popř. školka.
    V obci se nachází zdravotní zařízení.
    V obci je rozvod kanalizace.
    V obci je rozvod městské vody.
    V obci je rozvod plynu.

Podobné nabídky v okolí

Lokalita: Kaunicova , Slavkov u Brna, okres Vyškov, Česká republika Kaunicova, Slavkov u Brna, okr. Vyškov