• Sledovat cenu
  •  

Zasílání upozornění emailem:

Rodinný dům, 162 m2 - U zastávky, Roztoky, okr. Praha-západ

Cena: 12 899 000 Kč
Stav:Volný
162 m2, parcela 594 m2
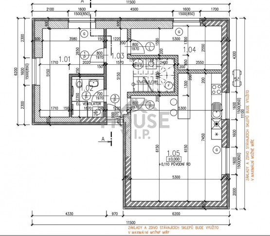
Popis: Exkluzivně nabízíme prodej pozemku s rozestavěným BD v Roztokách.
Dům je nyní ve výstavbě a jsou schváleny 2 bytové jednotky 3+kk s vlastními zahradami a parkovacím stáním.
Kom...pletní projektová dokumentace k výstavbě přestavbě se stavebním povolením.
Byly zahájeny práce na 1NP (první nadzemní patro), všechny sítě realizovány, příjezdová cesta a parkovací plochy vybudovány.
Průběžně budeme dodávat fotodokumentaci.

Zajímavá investiční příležitost ve vyhledávané a dostupné lokalitě na hranici Prahy 6.

Klidná lokalita nabízí mnoho možností sportovního vyžití, blízkost řeky a okraj města jsou pro Vaše sportování ideální. Dostupné cyklostezky, prostor pro vodní i kolektivní sporty i kolektivní sporty pro Vaši dobrou kondici.

Nákupní možnosti jsou dobré, rovněž vzdělávací zařízení i veškeré občanská vybavenost jsou bez dojíždění dostupné přímo Roztokách u Prahy.

Historie obce Roztoky, která je tradiční odpočinkovou lokalitou Pražanů.
Roztoky, nacházející se na břehu Vltavy, má bohatou historii, která se zahrnuje do historie města Praha. První písemná zmínka o Roztokách se nachází v panovnické listině z roku 1233, ve které byl zmiňován i Petr z Roztok. Město bylo osídleno již od mladší doby kamenné a v letech 1945–1948 byla vybudována „Penicilinka“, továrna na výrobu penicilinu. V roce 1960 se Roztoky spojily s obcí Žalov a v roce 1968 byly povýšeny na město. Od roku 2005 vzniká v Roztokách nová čtvrť Solníky.

www. roztoky. cz
  • Vložení inzerátu:
    26.2.2026
  • Kód:
    01299
  • K dispozici od:
    0.0.0
  • Typ nemovitosti:
    Rodinný dům
  • Zastavěná plocha:
    239 m2
  • Podlahová plocha:
    162 m2
  • Plocha parcely:
    594 m2
  • Stav objektu:
    Před rekonstrukcí
  • Rok rekonstrukce:
    2026
  • Umístění objektu:
    Rušná část
  • Voda:
    dálkový vodovod
  • Elektřina:
    230 V
  • Doprava:
    vlak, silnice, MHD
  • Komunikace:
    asfaltová
  • Nabídky v okolí:
  • Informace o obci:
    Obec Roztoky má 7669 obyvatel, z toho 5105 v produktivním věku.
    V obci se nachází pošta.
    V obci se nachází škola, popř. školka.
    V obci se nachází zdravotní zařízení.
    V obci je rozvod kanalizace.
    V obci je rozvod městské vody.
    V obci je rozvod plynu.
Lokalita: U zastávky , Roztoky, okres Praha-západ, Česká republika U zastávky, Roztoky, okr. Praha-západ

Kontakt

Bc. Roman Vagenknecht



Volná pracovní místa ExpertPrace.cz
  • Objednání prohlídky a více informací
  •  
  • Poslat na e-mail
  •  

Zasílání odkazu na realitu emailem: