• Sledovat cenu
  •  

Zasílání upozornění emailem:

Rodinný dům, 162 m2 - Malecká, Chrudim

Cena: 6 699 000 Kč
Stav:Volný
162 m2, cihlová, parcela 528 m2
Popis: Nabízíme k prodeji prostorný a světlý rodinný dům o dispozici 6+kk, který se nachází v klidné části města Chrudim.

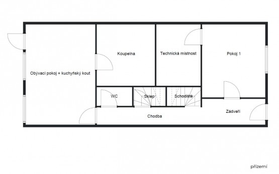
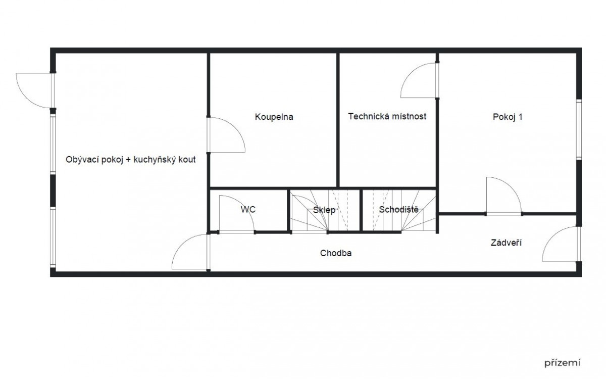
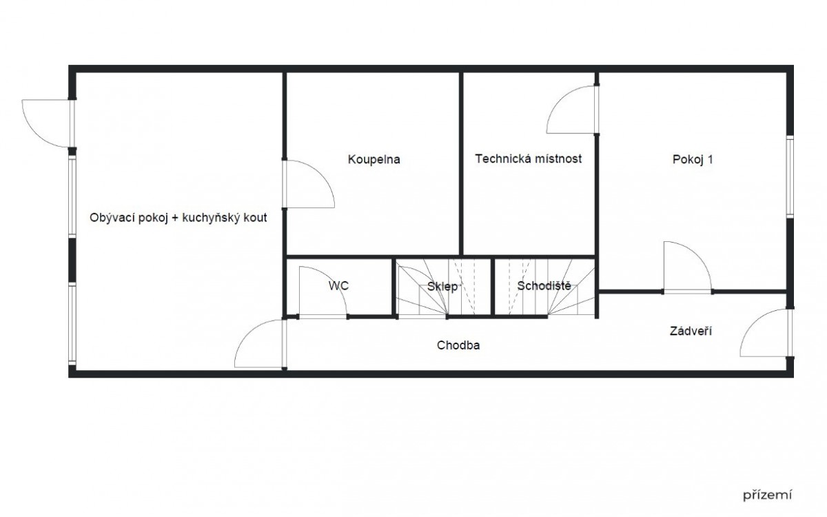
RD (rodinný dům) je situován na východní hranici pozemku o ...celkové velikosti 528 m². Jedná se o částečně podsklepený, řadový dům s jedním nadzemním podlažím a obytným podkrovím. Objekt je připojen na veřejné rozvody – vodovod, kanalizace, plyn. Současně disponuje i studnou. Dům je vytápěn plynovým kotlem, který se nachází v technické místnosti (viz plánek přízemí - fotografie).

Dominantní místností domu je obývací pokoj s kuchyňským koutem, z kterého vedou dveře přímo na slunnou terasu, která nabízí ideální zázemí pro grilování či posezení s přáteli.

Dům je ideální volbou pro ty, kteří hledají prostor pro realizaci domova dle vlastních představ. Inzerát obsahuje i několik vizualizací, které slouží jako inspirace pro možnou proměnu prostorů.

V okolí naleznete veškerou občanskou vybavenost, výborná dostupnost do centra města i nedalekých Pardubic. (20 minut jízdy autem)

Nemovitost lze financovat hypotečním úvěrem, s kterým Vám rádi pomůžeme.
Více info u makléře. Budeme se těšit na osobní setkání.
  • Vložení inzerátu:
    14.7.2025
  • Kód:
    05765
  • K dispozici od:
    0.0.0
  • Typ nemovitosti:
    Rodinný dům
  • Typ budovy:
    Cihlová
  • Podlahová plocha:
    162 m2
  • Plocha parcely:
    528 m2
  • Terasa:
    Ano
  • Sklep:
    11 m2
  • Stav objektu:
    Dobrý
  • Umístění objektu:
    Klidná část
  • Voda:
    dálkový vodovod
  • Energetická náročnost:
    D - Méne úsporná
  • Podle vyhlášky:
    c. 78/2013 Sb.
  • Ukazatel náročnosti:
    89.4 kWh/m2
  • Nabídky v okolí:
  • Informace o obci:
    Obec Chrudim má 23240 obyvatel, z toho 16363 v produktivním věku.
    V obci se nachází pošta.
    V obci se nachází škola, popř. školka.
    V obci se nachází zdravotní zařízení.
    V obci je rozvod kanalizace.
    V obci je rozvod městské vody.
    V obci je rozvod plynu.
Lokalita: Malecká , Chrudim, okres Chrudim, Česká republika Malecká, Chrudim

Kontakt

Ing. Lucie Jakoubková



Volná pracovní místa ExpertPrace.cz
  • Objednání prohlídky a více informací
  •  
  • Poslat na e-mail
  •  

Zasílání odkazu na realitu emailem: