• Sledovat cenu
  •  

Zasílání upozornění emailem:

Rodinný dům, 157 m2 - Veřechov , Horažďovice, okr. Klatovy (již není v nabídce)

Cena: 3 450 000 Kč
Stav:archiv
157 m2, cihlová, parcela 1332 m2
Popis: Exkluzivně nabízíme k prodeji rodinnou usedlost na rozhraní plzeňského a jihočeského kraje, Veřechov č. p. 7.

Nemovitost se nachází ve velice klidné lokalitě s výhledem do Pošumaví. Poloha na konci vesnice zajišťuje dos...tatek soukromí. Neprůjezdná oblast. Cesta vede pouze k jedné zahradní chatce a k rybníku. Na pozemku vzrostlý ovocný sad švestky, jablka, rakytník v páru, vysazeny maliny, ostružiny. Prostorná a rovinatá zahrada nabízí řadu využití k relaxaci a sportu.

Zastavěná plocha domu je cca 128 m2. Celková zastavěná plocha nádvoří tvoří 534 m2. Zahrada tvoří 798 m2 moc hezké rovné plochy. Celková plocha všech nemovitostí činí 1. 332 m2.

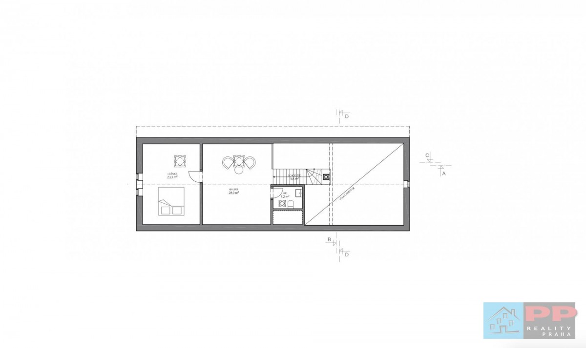
Dům je připraven pro rekonstrukci. Je vyklizen, jsou zlikvidovány podlahy, kompletně osekané staré omítky. Ve spolupráci s architekty byl zpracován architektonický návrh rekonstrukce, kde se nabízí rovněž možnost využití velice prostorného podkroví se 4 - 6 obytnými místnostmi + příslušenství. Rovněž byl vypracován projekt pro stavební povolení.

Možnost vyřízení dotace na rekonstrukci ve výši cca 1. 250. 000 Kč.

Podkrovní prostor je možné využít také jako samostatnou bytovou jednotku o velikosti cca 128 m2 zastavěné plochy. Částečné podsklepení domu je vhodné k uchovávání úrody stálá teplota.

Na pozemku se nachází také hospodářské budovy a garáže o celkové zastavěné ploše 152 m2. Hospodářské budovy a garáže prošly rekonstrukcí, byly obnoveny všechny venkovní povrchy fasád. Z budov tvořící příslušenství se zde nachází letní kuchyně (nutná rekonstrukce), sklady nářadí, prostorná dílna, 2 garáže pro celkem 3 vozidla, sklad dřeva, sklady zahradní techniky. V objektech je možno jak umístit hospodářská zvířata, tak i podnikatelskou aktivitu, jako je dílna, autodílna, nerušící výrobna apod.

Hospodářské budovy s chalupou tvoří uzavřený dvůr elegantně navazující na slunnou zahradu.

Do domu byla zavedena voda z městského vodovodního řadu. Městská kanalizace je nyní ve fázi schváleného projektu a předpokládaný termín realizace je v horizontu 2 let. V současné době je dům napojen na septik. V objektu hospodářských budov se nachází studna, která je vhodná jako užitková voda pro zalévání nebo jinou podobnou činnost. Objekty jsou napojeny na elektrickou energii, do domu je zaveden internetové připojení, wifi vše funkční.
  • Vložení inzerátu:
    22.9.2023
  • Kód:
    2156
  • Typ nemovitosti:
    Rodinný dům
  • Typ budovy:
    Cihlová
  • Zastavěná plocha:
    128 m2
  • Podlahová plocha:
    157 m2
  • Plocha parcely:
    1332 m2
  • Sklep:
    25 m2
  • Telekomunikace:
    Internet
  • Voda:
    dálkový vodovod
  • Elektřina:
    230 V, 380 V
  • Doprava:
    silnice, autobus
  • Komunikace:
    asfaltová
  • Bezbariérový přístup:
    Ano
  • Nabídky v okolí:

Podobné nabídky v okolí

Lokalita: Veřechov , Horažďovice, okres Klatovy, Česká republika Veřechov , Horažďovice, okr. Klatovy, Plzeňský kraj