• Sledovat cenu
  •  

Zasílání upozornění emailem:

Rodinný dům, 157 m2 - Prosenická Lhota , okr. Příbram

Cena: 5 980 000 Kč
Stav:Volný
157 m2, parcela 1998 m2
Popis: Exkluzivně nabízím k prodeji rodinný dům o zastavěné ploše 157 m2, dispozice 5+kk, na pozemku o rozloze 1998 m2, v malebné obci Prosenická Lhota nedaleko... Sedlčan v okrese Příbram.

Elektřina: - přivedena na hranici pozemku
Voda: vrtaná studna
Kanalizace: septik, čistička odpadních vod
Topení: tepelné čerpadlo, podlahové topení, krb

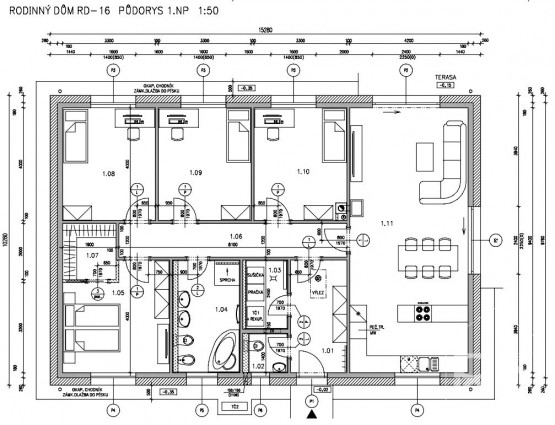
K rodinnému domu náleží vypracovaný projekt.

Hrubá stavba: Liaporbeton
Valbová střecha: krytina Bramac

Rozvržení domu:
obývací pokoj s dvěma posuvnými francouzskými dveřmi pro přístup na terasu, který je propojen s kuchyní, kde lze umístit i ostrůvek, ložnice s šatnou, 3 stejně velké pokoje (dětské, hostinský či pracovna), koupelna s vanou a sprchovým koutem, 2 umyvadla, toaleta a bidet, druhé sociální zařízení WC samostatně, technická místnost – místo pro pračku se sušičkou, tepelné čerpadlo, ventilační jednotka s rekuperací a příprava teplé vody.

Zahrada 1841 m2 – vzhledem k velikosti pozemku lze rozdělit na část okrasnou i užitkovou, vybudování bazénu.

Nemovitost poskytuje naprosté soukromí s moc hezkými výhledy do krajiny.
Noví majitelé mají možnost dokončit dům podle vlastních představ (součástí fotogalerie je vizualizace možného budoucího stavu).

Dojezdové vzdálenosti:
Sedlčany 10 min
Příbram 20 min
Benešov 20 min
Praha za méně než hodinu

Dálnice D3 ( realizace 2026 - 2029), nájezd do 10 min. jízdy - směr Praha, Tábor, České Budějovice budou tedy v dojezdových vzdálenostech rychleji dosažitelné než nyní.

Pro více informací, dokumentů či sjednání prohlídky, neváhejte kontaktovat makléře nemovitosti.
  • Vložení inzerátu:
    13.7.2025
  • Kód:
    00302
  • K dispozici od:
    0.0.0
  • Typ nemovitosti:
    Rodinný dům
  • Zastavěná plocha:
    157 m2
  • Podlahová plocha:
    157 m2
  • Plocha parcely:
    1998 m2
  • Stav objektu:
    Ve výstavbě
  • Umístění objektu:
    Klidná část
  • Elektřina:
    230 V
  • Doprava:
    dálnice, silnice, autobus
  • Odpad:
    ČOV
  • Komunikace:
    asfaltová
  • Energetická náročnost:
    G - Mimořádne nehospodárná
  • Nabídky v okolí:
  • Informace o obci:
    Obec Prosenická Lhota má 461 obyvatel, z toho 325 v produktivním věku.
    V obci se nachází zdravotní zařízení.
    V obci je rozvod městské vody.
Lokalita: Prosenická Lhota , okres Příbram, Česká republika Prosenická Lhota , okr. Příbram, Středočeský kraj



  • Objednání prohlídky a více informací
  •  
  • Poslat na e-mail
  •  

Zasílání odkazu na realitu emailem: