• Sledovat cenu
  •  

Zasílání upozornění emailem:

Rodinný dům, 157 m2 - Prosenická Lhota , okr. Příbram (již není v nabídce)

Cena: 6 980 000 Kč
Stav:archiv
157 m2, parcela 1998 m2
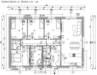
Popis: Nabízím k prodeji rozestavěný rodinný dům o zastavěné ploše 157m2 o disposici 5+kk na pozemku o rozloze 1998m2 v malebné obci Prosenická Lhota, nedaleko Se...dlčan v okrese Příbram. Tento objekt představuje nejen skvělou investici do budoucnosti ale také možnost realizace vašich snů o vlastním domově v harmonii s přírodou.

Elektřina - přivedena na hranici pozemku
Voda - vrtaná studna
Kanalizace - septik, čistička odpadních vod
Topení - tepelné čerpadlo, podlahové topení + krb

Poloha na okraji obce nabízí nejen úžasné výhledy na okolní krajinu ale také klid a soukromí, které jsou často hledané vlastnosti při výběru místa pro nový domov. Navíc, blízkost klíčových měst jako Sedlčany, Příbram a Praha zajišťuje snadnou dostupnost veškerých služeb, kultury a zaměstnání.

- Sedlčany: Pouhých 10 minut jízdy autem (cca 6 km).
- Příbram: Přibližně 20 minut autem (cca 15 km).
- Praha: Díky blízkosti dálnice dosáhnete do Prahy za méně než 1 hodinu (cca 70 km).
- Benešov: Přibližně 20 minut autem (cca 20km).

Pro více informací, zaslání dokumentů či sjednání prohlídky neváhejte kontaktovat makléře nemovitosti.
  • Vložení inzerátu:
    21.3.2025
  • Kód:
    00302
  • K dispozici od:
    0.0.0
  • Typ nemovitosti:
    Rodinný dům
  • Zastavěná plocha:
    157 m2
  • Podlahová plocha:
    157 m2
  • Plocha parcely:
    1998 m2
  • Stav objektu:
    Ve výstavbě
  • Umístění objektu:
    Klidná část
  • Elektřina:
    230 V
  • Doprava:
    dálnice, silnice, autobus
  • Odpad:
    ČOV
  • Komunikace:
    asfaltová
  • Energetická náročnost:
    G - Mimořádne nehospodárná
  • Nabídky v okolí:
  • Informace o obci:
    Obec Prosenická Lhota má 461 obyvatel, z toho 325 v produktivním věku.
    V obci se nachází zdravotní zařízení.
    V obci je rozvod městské vody.

Podobné nabídky v okolí

Lokalita: Prosenická Lhota , okres Příbram, Česká republika Prosenická Lhota , okr. Příbram, Středočeský kraj