• Sledovat cenu
  •  

Zasílání upozornění emailem:

Rodinný dům, 157 m2 - Krátká 128, Lhotka, okr. Beroun (již není v nabídce)

Cena: 3 900 000 Kč
Stav:archiv
157 m2, parcela 767 m2
Popis: Hledáte ideální rodinný dům na moc hezkém místě, kde si můžete vytvořit svůj vlastní domov přesně podle svých představ?
Máme pro Vás báječnou příležitost. Tento rodinný dům s dispozicí 4+1... a užitnou plochou 170 m2 se nachází na úpatí brdského vrcholu Plešivec, v obci Lhotka, nedaleko Berouna.

Lhotka je malá obec v okrese Beroun, Středočeském kraji, asi 7 km od Hořovic. Lokalita je známá svou nádhernou přírodou a klidným prostředím, ideální místo pro bydlení, kde si můžete užít turistiku nebo výlety na kolech na krásná místa v okolí, jako jsou hrady Žebrák a Točník, nebo zámky Zbiroh, Lochovice, Jince a Hořovice anebo vrch Plešivec s Plešiveckým jezírkem a mnoho dalších. Veškerá občanská vybavenost je dostupná v blízkých obcích například v Lochovicích, Hostomicích, Jincích nebo v nedalekém Berouně. Pravidelná autobusová linka 640.

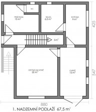
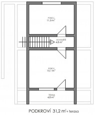
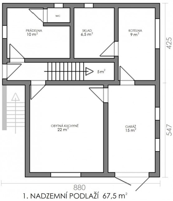
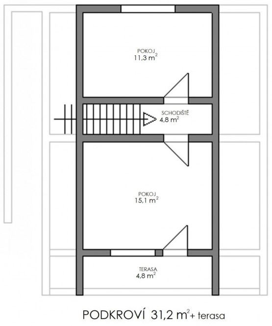
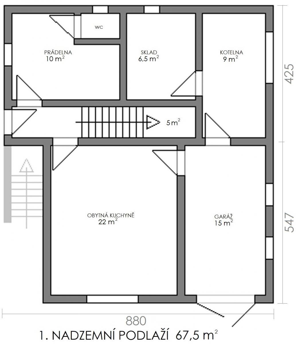
Dům byl postaven v 80. letech. Jedná se o kombinaci zděného 1. nadzemního podlaží a 2. nadzemního podlaží a podkroví, které jsou z ocelové nosné konstrukce a panelů, střecha je sedlová. 1. NP (první nadzemní patro) má dva vstupy a je převážně technické, obsahuje kotelnu, sklad paliva, prádelnu se sprchou a sociální zařízení WC, garáž a větší 22 m2 rozlehlou místnost, kde byla umístěna i kuchyňská linka. 2. NP (druhé nadzemní patro) je přístupné vnitřním i venkovním schodištěm s verandou, kdy z centrální schodišťové chodby jsou přístupné samostatně všechny místnosti, obývací pokoj 28 m2 se vstupem na velkou terasu přes celou šíři domu, pokoj, komora, samostatné sociální zařízení WC a koupelna. V podkroví jsou situovány 2 ložnice, přičemž ta větší má přístup na druhou terasu. (vnitřní rozměry domu jsou přibližné)

K domu a jeho zastavěné ploše 97 m2 náleží zahrada 670 m2, která přímo vybízí k vytvoření vlastního ráje na zemi, místa pro klidnou relaxaci i zahradničení.
V domě je sice vše funkční, ale je předurčen k rekonstrukci a tím poskytuje skvělou příležitost k úpravám dle Vašeho vkusu a potřeb, samozřejmě s využitím kombinace poskytovaných dotačních programů. Tento dům se může stát Vaším novým útulným domovem za rozumné peníze, kde si můžete každý detail přizpůsobit svým snům. Bude dobrou investicí do Vaší budoucnosti.

Nenechte si ujít tuto příležitost a kontaktujte nás pro více informací nebo prohlídku nemovitosti, na kterou Vás tímto zvu.
PENB kategorie G.
  • Vložení inzerátu:
    6.11.2024
  • Kód:
    AR120
  • Typ nemovitosti:
    Rodinný dům
  • Zastavěná plocha:
    97 m2
  • Podlahová plocha:
    157 m2
  • Plocha parcely:
    767 m2
  • Terasa:
    14 m2
  • Sklep:
    Ano
  • Stav objektu:
    Před rekonstrukcí
  • Voda:
    dálkový vodovod
  • Doprava:
    silnice, autobus
  • Odpad:
    kanalizace
  • Komunikace:
    asfaltová
  • Bezbariérový přístup:
    Ano
  • Energetická náročnost:
    G - Mimořádne nehospodárná
  • Nabídky v okolí:
  • Informace o obci:
    Obec Lhotka má 332 obyvatel, z toho 217 v produktivním věku.
    V obci je rozvod městské vody.

Podobné nabídky v okolí

Lokalita: Krátká 128, Lhotka, okres Beroun, Česká republika Krátká 128, Lhotka, okr. Beroun