• Sledovat cenu
  •  

Zasílání upozornění emailem:

Rodinný dům, 156 m2 - Vykmanov , Ostrov, okr. Karlovy Vary (již není v nabídce)

Cena: 9 500 000 Kč
Stav:archiv
156 m2, dřevostavba, parcela 1746 m2
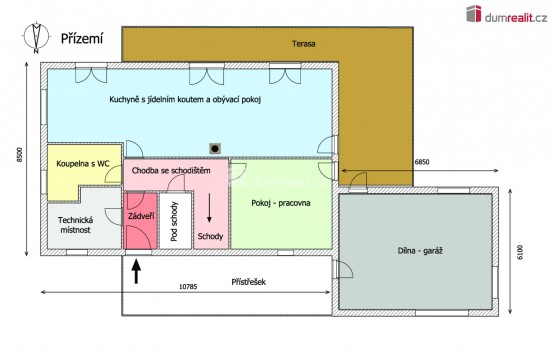
Popis: CENA K JEDNÁNÍ je kompletní včetně právního servisu a úschovy kupní ceny. . Dumrealit. cz Vám nabízí prodej patrového rodinného domu (dřevostavby) o velkosti 5+kk (zast. plocha ...cca 134 m²; orientační podlahová plocha domu cca 156 m²; orientační podlahová plocha dílny cca 42 m²) v Ostrově - místní části Vykmanov u Karlových Var. Součástí stavebního pozemku je přilehlý pozemek o výměře 1 612 m². Dům je postaven na rovinatém pozemku v okrajové části města a orientace domu umožňuje sluneční svit od východu po západ. Hlavní stavba je spojena s dílnou, kterou lze využít také jako garáž. Dílna má samostatné vstupy a vjezd. Kolaudace proběhla v květnu 2013. V přízemí je vstup do domu se zádveřím, chodbou a schodištěm do 1. NP (první nadzemní patro); technická místnost; koupelna s sociální zařízení WC; pokoj - pracovna; kuchyňský kout s jídelnou a obývací pokoj s krbovými kamny a vstupem na venkovní terasu. V prvním NP je chodba se schodištěm; samostatná koupelna; samostatné sociální zařízení WC; komora a tři pokoje, přičemž dva sousední pokoje jsou oddělené dřevěnými posuvnými dveřmi, takže se dají pokoje propojit v jeden velký. Veškerá okna v celém objektu jsou plastová s trojskly, v horním patře mají okna venkovní mechanické žaluzie. Z obývacího pokoje lze vyjít rovnou na venkovní terasu dvěma východy. K jižní a západní straně domu je napojena venkovní dřevěná terasa, která je v západní části zastřešena, ze severní strany je vstup do domu chráněn zastřešenou přístavbou. Součástí vybavení domu je technologické zázemí (tepelné čerpadlo, bojler), kuchyňská linka se spotřebiči (el. varná deska, el. trouba, vestavěná mikrovlnná trouba, myčka, digestoř) a samostatným pultem s úložným prostorem, v přízemí koupelna s sociální zařízení WC (sprchový kout, závěsné sociální zařízení WC, umyvadlo), v 1. NP (první nadzemní patro) samostatné sociální zařízení WC (závěsné sociální zařízení WC, závěsný bidet, umyvadlo se skříňkou), samostatná koupelna (vana, sprchový kout, dvojumyvadlo se skříňkou, zrcadlo, otopný žebřík kombinovaný), připojení k internetové připojeníu apod. Vytápění domu je ústřední teplovodní zajištěno tepelným čerpadlem, kdy v celém přízemí a dílně s garáží je podlahové topení a v 1. NP (první nadzemní patro) je podlahové v koupelně a sociální zařízení WC, v obytných pokojích jsou radiátory. Druhým zdrojem tepla jsou krbová kamna v obývacím pokoji. Dodávka studené vody je z veřejného vodovodního řadu, kanalizace je napojena do domovní čistírny odpadních vod (DČOV (osobní vlastnictví))–v současné době probíhají přípravy k realizaci napojení do obecního veřejného kanalizačního řadu. Na zahradě je vybudovaná vlastní studna pro zalévání zahrady. Dům disponuje dostatečným množstvím parkovacích míst na pozemku nebo před vjezdem k domu a lokalita zaručuje klidné bydlení v blízkosti přírody. V sousedství jsou pouze rodinné domy a zeleň. Veškerá občanská vybavenost je snadno a rychle dostupná. Stavba je nízkoenergetická a dle platné legislativy je pro dům zpracován PENB, kdy stavba je zařazena do energetické třídy B. Cena je včetně právního servisu. Tuto nemovitost lze hradit hypotečním úvěrem, který Vám rádi pomůžeme vyřídit. Ev. číslo: 650263. Energetický štítek: B (58 kWh/m2/rok).
  • Vložení inzerátu:
    27.3.2025
  • Kód:
    3967282
  • Typ nemovitosti:
    Rodinný dům
  • Typ budovy:
    Dřevostavba
  • Zastavěná plocha:
    134 m2
  • Podlahová plocha:
    156 m2
  • Plocha parcely:
    1746 m2
  • Terasa:
    Ano
  • Stav objektu:
    Velmi dobrý
  • Umístění objektu:
    Klidná část
  • Energetická náročnost:
    B - Velmi úsporná
  • Ukazatel náročnosti:
    58 kWh/m2
  • Nabídky v okolí:

Podobné nabídky v okolí

Lokalita: Vykmanov , Ostrov, okres Karlovy Vary, Česká republika Vykmanov , Ostrov, okr. Karlovy Vary, Karlovarský kraj