• Sledovat cenu
  •  

Zasílání upozornění emailem:

Rodinný dům, 155 m2 - Dolní Rokytnice , Rokytnice nad Jizerou, okr. Semily

Cena: 6 290 000 Kč
Stav:Volný
155 m2, dřevostavba, parcela 867 m2
Popis: Jedinečná roubenka v srdci Krkonoš. Historický roubený dům z 19. století s pozemkem a parkovištěm, využitelný jako chata, chalupa či rodinný dům. Užitná plocha 155 m2 (6...+kk).

Krásné místo s panoramatickou vyhlídkou na klidném místě, ale přesto 10 minut pěšky do centra (autobus, obchody, restaurace).
Široké horské louky a hluboký les hned u objektu, stejně jako několik turistických tras, které vás rychle dovedou jak na hřebeny Krkonoš, tak k peřejím řeky Jizery anebo do bučin Jizerských hor.

V zimě je už pouhým pohledem z okna na výběr několik špičkových ski areálů. V bezprostředním okolí se nachází jak horský areál Horní Domky Lysá hora, tak rodinný Studenov, na dosah jsou pak sjezdovky v Harrachově, na Pasekách, či v Jablonci nad Jizerou. V areálu na Lysé hoře se také nachází 2 540 metrů dlouhá červená sjezdovka, která si získala klasifikaci FIS.

Jde o historický dům bez dramatických zásahů do původní roubené konstrukce.

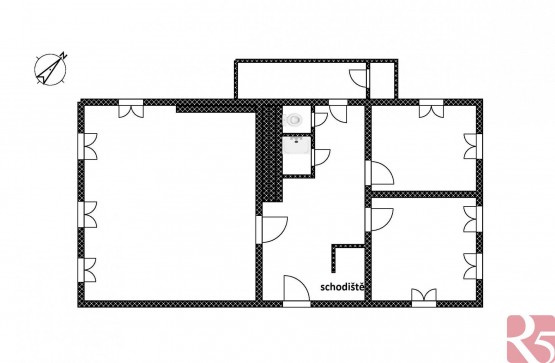
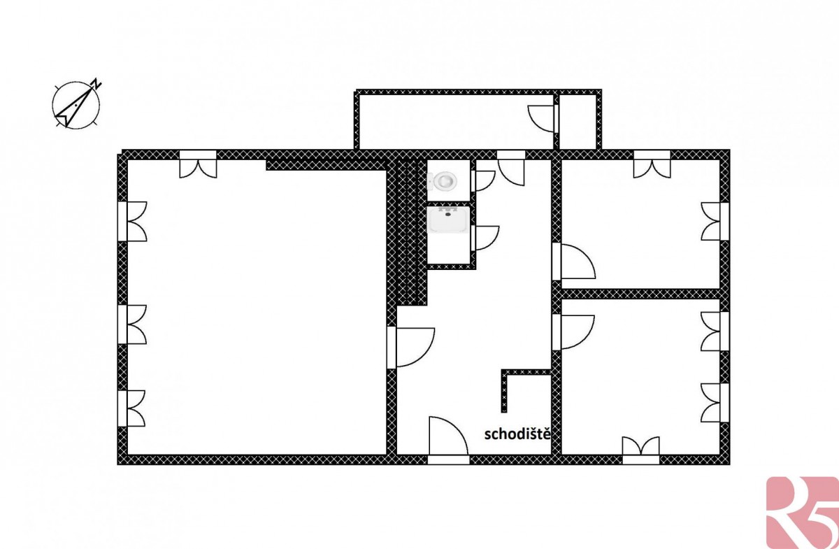
V přízemí velká společenská místnost 33m2 a dva pokoje, 11 a 13m2. V patře jsou pak tři obytné velké místnosti s dřevěnými stěnami. Dům je okamžitě obyvatelný. Napojený je na místní kanalizaci, vodovod a elektřinu. Vytápění moderním plynovým kondenzačním kotlem s dálkovým ovládáním.

Objekt je podsklepený, jeden sklep je přístupný ze zahrady, druhý z předsíně.

Velká slunná zahrada 730 m2 nabízí romantické posezení, protéká jí také malý potůček. Nabízí se dostavět venkovní posezení nebo otevřenou verandu.
U chaty jsou dvě místa na parkování.

Koupě této nemovitosti je skvělá investice, vzhledem ke strategickému umístění kousek od turistického centra a zároveň v oáze klidu.

Pro více informací a domluvení prohlídky kontaktujte makléře.
  • Vložení inzerátu:
    17.3.2026
  • Kód:
    R519560
  • Typ nemovitosti:
    Rodinný dům
  • Typ budovy:
    Dřevostavba
  • Zastavěná plocha:
    136 m2
  • Podlahová plocha:
    155 m2
  • Plocha parcely:
    867 m2
  • Sklep:
    Ano
  • Stav objektu:
    Dobrý
  • Telekomunikace:
    Internet
  • Voda:
    dálkový vodovod
  • Elektřina:
    230 V, 380 V
  • Doprava:
    silnice
  • Topeni:
    ústřední plynové
  • Odpad:
    kanalizace
  • Komunikace:
    asfaltová
  • Bezbariérový přístup:
    Ano
  • Energetická náročnost:
    G - Mimořádne nehospodárná
  • Nabídky v okolí:
Lokalita: Dolní Rokytnice , Rokytnice nad Jizerou, okres Semily, Česká republika Dolní Rokytnice , Rokytnice nad Jizerou, okr. Semily, Liberecký kraj

Kontakt

Miloslav Shejbal



  • Objednání prohlídky a více informací
  •  
  • Poslat na e-mail
  •  

Zasílání odkazu na realitu emailem: