• Sledovat cenu
  •  

Zasílání upozornění emailem:

Rodinný dům, 154 m2 - Nová 122, Čejetice, Mladá Boleslav, okr. Mladá Boleslav

Cena: 6 900 000 Kč
Stav:Volný
154 m2, cihlová, parcela 928 m2
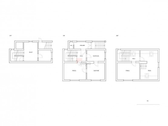
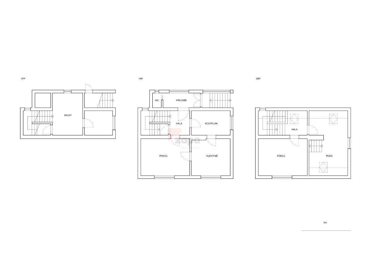
Popis: Exkluzivně nabízíme prodej patrového rodinného domu dispozice 4+kk v žádané lokalitě Čejetice v obci Mladá Boleslav, ulice Nová. Tato příjemná městská část nabízí výjimečnou ko...mbinaci komfortního bydlení v obklopení přírodou a vzdálenosti pouhých pár minut chůze od historického centra města.
Dům a garáž pro 2 auta jsou umístěny na horní hraně pozemku, kde se svažitý terén vyrovnává. Za domem situovaná klidná a slunečná zahrada díky tomu nabízí jak výhledy do okolí, tak dostatek prostoru pro posezení v soukromí, grilování či bazén. Zahrada má 843 m2.
Okolní zástavba je obytná, místo disponuje občanskou vybaveností. Mateřská škola Štěpánka je vzdálena sotva 3 minuty chůze, jazyková škola (2. Základní škola) pak 15 minut chůze od domu. V blízkosti domu se nachází také autobusová zastávka, obchod a tenisové a fotbalové hřiště.
Pokoje domu jsou v současném stavu orientovány na jihovýchod. Dům je podsklepený. Užitná plocha nemovitosti je 154 m2, dále k ní přiléhají kůlny o výměře 20 m2. Plocha samostatně stojící garáže je 45 m2. Do domu jsou zavedeny veškeré ing. sítě - elektřina, plyn, vodovod a kanalizace. Vytápění zajišťuje plynový kotel. Dům cca z roku 1943 je určen k celkové rekonstrukci.
Celková plocha pozemků je 928 m2. Spodní část zahrady nabízí buď přidanou vrstvu soukromí, nebo by po dohodě a za podmínek stanovených městem, bylo možné pozemek použít jako samostatnou stavební parcelu (bydlení, maloobchod, nerušící domácí výroba a služby).
Uvedená cena je včetně provize a advokátní úschovy. Koupi lze financovat prostřednictvím hypotečního úvěru, který Vám pomůžeme vyřídit.


  • Vložení inzerátu:
    4.4.2025
  • Kód:
    ZR1145
  • Typ nemovitosti:
    Rodinný dům
  • Typ budovy:
    Cihlová
  • Zastavěná plocha:
    85 m2
  • Podlahová plocha:
    154 m2
  • Plocha parcely:
    928 m2
  • Sklep:
    31 m2
  • Stav objektu:
    Před rekonstrukcí
  • Voda:
    dálkový vodovod
  • Elektřina:
    380 V
  • Doprava:
    autobus
  • Topeni:
    ústřední plynové
  • Plyn:
    plynovod
  • Odpad:
    kanalizace
  • Komunikace:
    asfaltová
  • Bezbariérový přístup:
    Ano
  • Energetická náročnost:
    G - Mimořádne nehospodárná
  • Nabídky v okolí:
Lokalita: Nová 122, Čejetice, Mladá Boleslav, okres Mladá Boleslav, Česká republika Nová 122, Čejetice, Mladá Boleslav, okr. Mladá Boleslav

Kontakt

Roman Brož


Podobné nabídky v okolí


Volná pracovní místa ExpertPrace.cz
  • Objednání prohlídky a více informací
  •  
  • Poslat na e-mail
  •  

Zasílání odkazu na realitu emailem: