• Sledovat cenu
  •  

Zasílání upozornění emailem:

Rodinný dům, 150 m2 - Nová 122, Čejetice, Mladá Boleslav, okr. Mladá Boleslav (již není v nabídce)

Cena: 14 800 000 Kč
Stav:archiv
150 m2, cihlová, parcela 928 m2
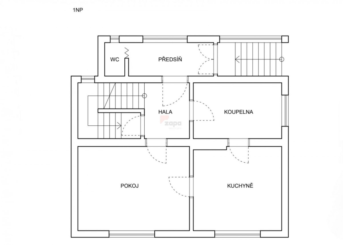
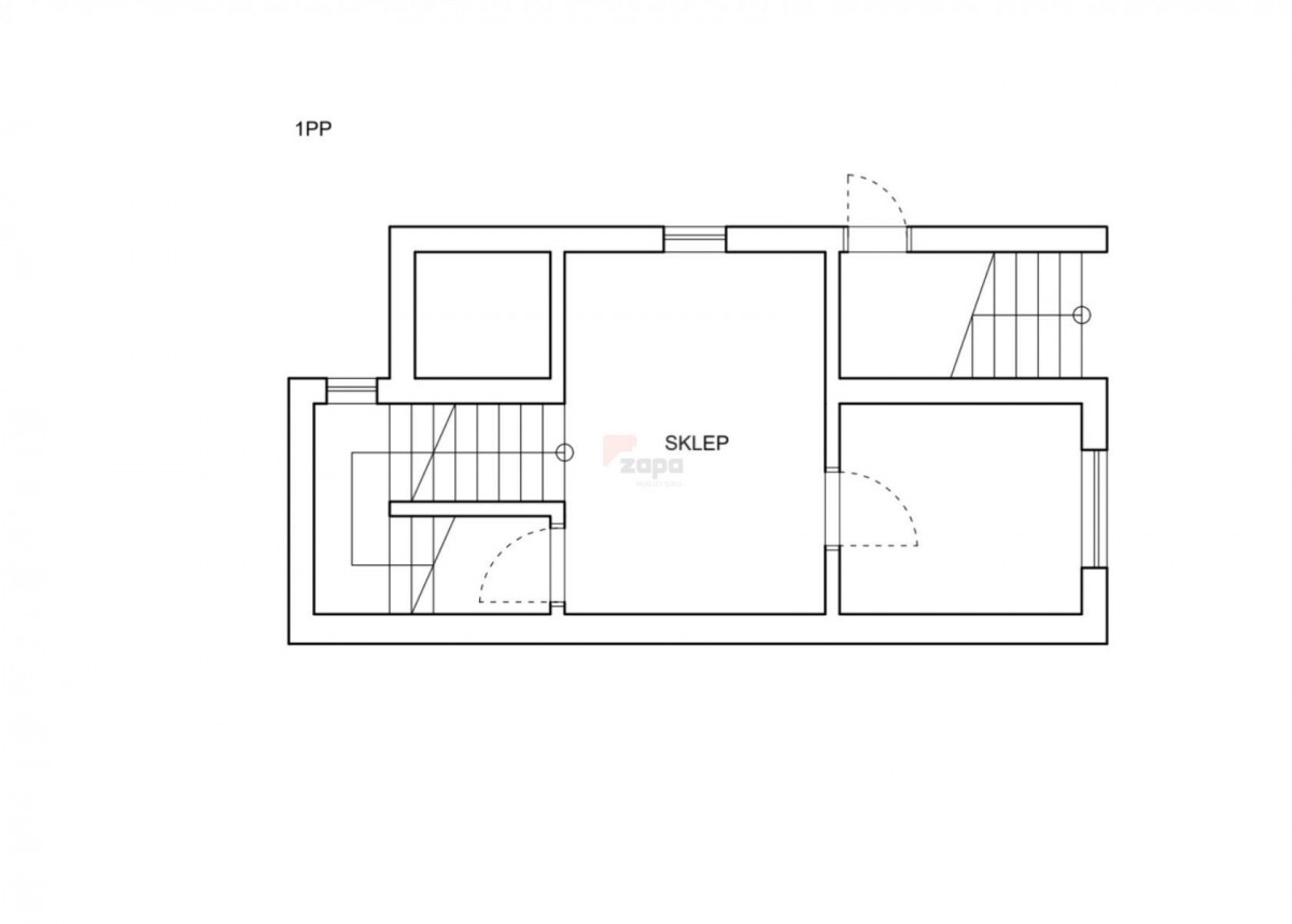
Popis: Exkluzivně nabízíme prodej patrového rodinného domu dispozice 3+kk, obec Mladá Boleslav, část obce Čejetice, ulice Nová. Zastavěná plocha domu je 90 m2, součástí ...domu je i sklep 31 m2, plocha kůlen přímo přiléhajících k domu je 20m2, plocha samostatně stojící garáže je 45 m2. Dům (cca z roku 1943) se nachází na horní hraně pozemku, kde se svažitý terén lehce vyrovnává, a pozemek tak nabízí jak výhledy do okolí, tak klidnou zahradu. Celková plocha pozemků je 928 m2. Jsou zavedeny veškeré ing. sítě - elektřina (400V 3 krát 25A), plyn, vodovod a kanalizace. Vytápění zajišťuje plynový kotel. Spodní část zahrady by, po dohodě a za podmínek stanovených městem, bylo možné buď využít na výstavbu podnikatelské provozovny - maloobchod, nerušící domácí výroba a služby, nebo použít jako samostatnou stavební parcelu. Dle připravovaného územního plánu se okolní pozemky stanou taktéž stavebními parcelami, výřez výkresu je součástí fotodokumentace inzerátu. Okolní zástavba je čistě obytná. Dům je určen k celkové rekonstrukci, stav domu je patrný z přiložených fotografií. Uvedená cena je včetně provize a advokátní úschovy, dům je volný od října. Koupi lze financovat prostřednictvím hypotečního úvěru, který Vám pomůžeme vyřídit.

  • Vložení inzerátu:
    22.8.2022
  • Kód:
    3
  • Typ nemovitosti:
    Rodinný dům
  • Typ budovy:
    Cihlová
  • Zastavěná plocha:
    90 m2
  • Podlahová plocha:
    150 m2
  • Plocha parcely:
    928 m2
  • Sklep:
    31 m2
  • Stav objektu:
    Před rekonstrukcí
  • Voda:
    dálkový vodovod
  • Elektřina:
    380 V
  • Doprava:
    autobus
  • Topeni:
    ústřední plynové
  • Plyn:
    plynovod
  • Odpad:
    kanalizace
  • Komunikace:
    asfaltová
  • Bezbariérový přístup:
    Ano
  • Energetická náročnost:
    G - Mimořádne nehospodárná
  • Nabídky v okolí:

Podobné nabídky v okolí

Lokalita: Nová 122, Čejetice, Mladá Boleslav, okres Mladá Boleslav, Česká republika Nová 122, Čejetice, Mladá Boleslav, okr. Mladá Boleslav