• Sledovat cenu
  •  

Zasílání upozornění emailem:

Rodinný dům, 147 m2 - Hostašovice , okr. Nový Jičín (již není v nabídce)

Cena: 5 600 000 Kč
Stav:archiv
147 m2, cihlová, parcela 341 m2
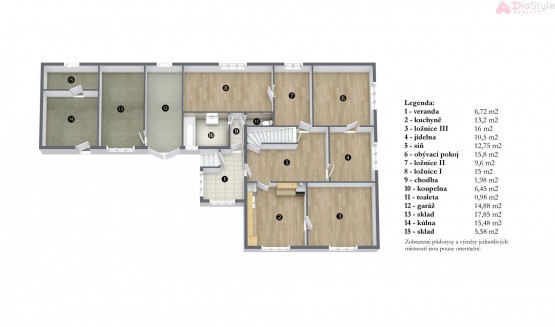
Popis: Ve výhradním zastoupení majitele Vám nabízíme rodinný dům v obci Hostašovice, s přilehlou zahradou o výměře 856 m2. Jedná se o prostorný, částečně podsklepený, jednopodlažní, cihlový dům stojící na pozemku o v...ýměře 341 m2. Celková zastavěná plocha je 185 m2. Střešní krytina je hliníková. Aktuální dispozice je 5+1, koupelna s vanou, samostatná toaleta, dílna, garáž a podkroví, které je možné rozšířit na obytné. Jeden pokoj je tam již k dispozici.
Dům je napojen na plyn, elektřinu, veřejný vodovod. Odpady jsou řešeny septikem. Ohřev vody zajišťuje elektrický bojler. Výhodou je vlastní studna.
Za domem se nachází přístřešek na uskladnění zahrádkářských potřeb.
Příjezd je řešen po obecní komunikaci. Dům se nachází v klidné části obce s výhledem na Kojetínské vrchy. V obci je základní občanská vybavenost - obchod, škola, školka.
Pro více informací a možnost prohlídky kontaktujte makléře. V případě Vašeho zájmu zajistíme financování s nejvýhodnější sazbou na trhu.
  • Vložení inzerátu:
    17.8.2023
  • Kód:
    2386
  • Typ nemovitosti:
    Rodinný dům
  • Typ budovy:
    Cihlová
  • Zastavěná plocha:
    185 m2
  • Podlahová plocha:
    147 m2
  • Plocha parcely:
    341 m2
  • Stav objektu:
    Dobrý
  • Bezbariérový přístup:
    Ano
  • Energetická náročnost:
    D - Méne úsporná
  • Nabídky v okolí:
  • Informace o obci:
    Obec Hostašovice má 751 obyvatel, z toho 521 v produktivním věku.
    V obci je rozvod kanalizace.
    V obci je rozvod městské vody.
    V obci je rozvod plynu.

Podobné nabídky v okolí

Lokalita: Hostašovice , okres Nový Jičín, Česká republika Hostašovice , okr. Nový Jičín, Moravskoslezský kraj