• Sledovat cenu
  •  

Zasílání upozornění emailem:

Rodinný dům, 146 m2 - Husova 3, Libice nad Cidlinou, okr. Nymburk (již není v nabídce)

Cena: 9 900 000 Kč
Stav:archiv
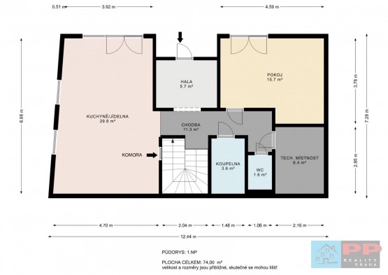
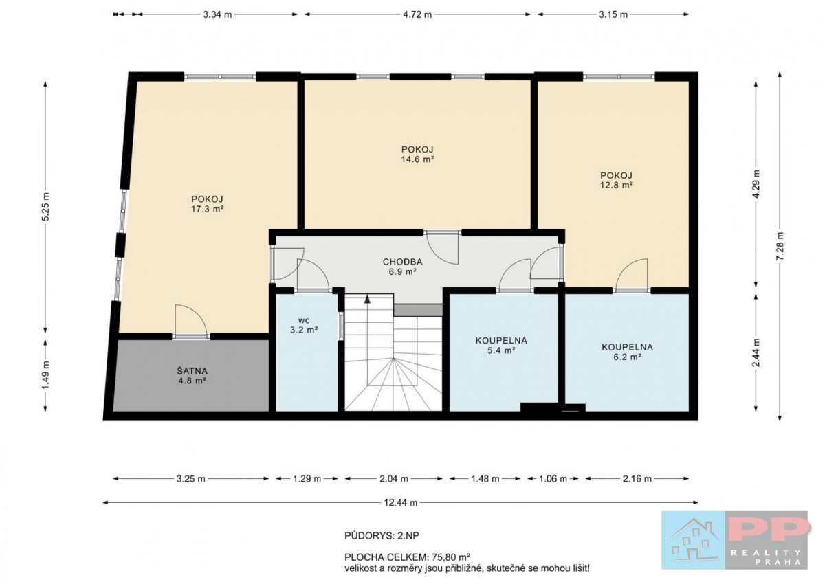
146 m2, cihlová, parcela 254 m2
Popis: ID: P110401.
Ve výhradním zastoupení nabízím k prodeji nízkoenergetickou novostavbu ŘRD (rodinný dům) 5+kk (146m2) v obci Libice nad Cidlinou, jen 5 km od města Po...děbrady a 2, 5km od nájezdu na dálnici D11. Dům se nachází v centru obce a sousedí s obecním úřadem a poštou. Jedná se o okrajovou část zděného trojdomku směřující do ulice Husova. K celé budově patří uzavřený dvůr s parkováním a posezením pro jeho obyvatele. Z původní stavby zůstaly jen tři obvodové zdi včetně dobového tvaru čelního štítu pocházejícího z konce 19. století. Novostavba byla navržena a provedena s citlivým důrazem na zachování prvků historického jádra obce a s využitím moderních technologií a kvalitních materiálů, o čem se můžete přesvědčit sami.

Prostorové parametry:
5 krát obytných místností
3 krát koupelny
4 krát sociální zařízení WC
2 krát šatna/ komora
1 krát technická místnost
1 krát spíž

Technické parametry:
dvouvrstvá hydroizolace
obvodové zdivo 300mm
mezibytová stěna sendvičová 220+60+220mm
zateplení fasády 200mm
podlaha vinyl/ keramika
zásobník teplé vody 168L + 100L
PENB třídy (A)

Vytápění:
teplovodní podlahové
tepelné čerpadlo Vaillant vzduch/voda - 6, 86 kW
pasivní rekuperace se zpětným získáváním tepla

Sítě:
elektřina (třífázový jistič 3 krát 25A)
obecní vodovod a kanalizace

Doprava:
Poděbrady náměstí 7min. autem
Praha Černý Most 30min. autem
Kolín centrum 16min.
Vlakové nádraží Libice n. C. (směry Kolín; Praha) 1km

Obec Libice nad Cidlinou má bohatou historii z doby raného středověku, kdy zde existovalo významné slovanské hradiště obklopené lužními lesy, které tu ještě můžete pozorovat při procházkách nebo projížďkách na kole. V blízkosti obce se nachází populární soutok Cidliny s Labem, který v teplém období roku je vyhledávaným cílem místních a turistů. Můžete si tady dát čepované pivo, ochutnat lokální speciality a někdy si poslechnout živou hudbu. Okolí blízkých Poděbrad je známo svými písečnými jezery a rybníky, kteří potěší jak milovníky koupaní, tak vášnivé rybáře. Hezká příroda, bohatá místní historie a dobrá dopravní dostupnost obce jsou nezanedbatelnými bonusy, pokud se rozhodnete tady bydlet! Budu se těšit na osobní setkání s vámi.
  • Vložení inzerátu:
    12.4.2025
  • Kód:
    2318
  • Typ nemovitosti:
    Rodinný dům
  • Typ budovy:
    Cihlová
  • Zastavěná plocha:
    75 m2
  • Podlahová plocha:
    146 m2
  • Plocha parcely:
    254 m2
  • Stav objektu:
    Novostavba
  • Bezbariérový přístup:
    Ano
  • Energetická náročnost:
    A - Mimoˇrádne úsporná
  • Nabídky v okolí:
  • Informace o obci:
    Obec Libice nad Cidlinou má 1275 obyvatel, z toho 858 v produktivním věku.
    V obci se nachází pošta.
    V obci se nachází škola, popř. školka.
    V obci se nachází zdravotní zařízení.
    V obci je rozvod kanalizace.

Podobné nabídky v okolí

Lokalita: Husova 3, Libice nad Cidlinou, okres Nymburk, Česká republika Husova 3, Libice nad Cidlinou, okr. Nymburk