• Sledovat cenu
  •  

Zasílání upozornění emailem:

Rodinný dům, 145 m2 - U Louže, Přemyšlení, Zdiby, okr. Praha-východ (již není v nabídce)

Cena: 15 600 000 Kč
Stav:archiv
145 m2, cihlová, parcela 713 m2
Popis: REZERVACE V současné situaci nabízíme běžné prohlídky s rouškou a rovněž nabízíme prohlídky přes Facetime a WhatsApp v reálném čase.

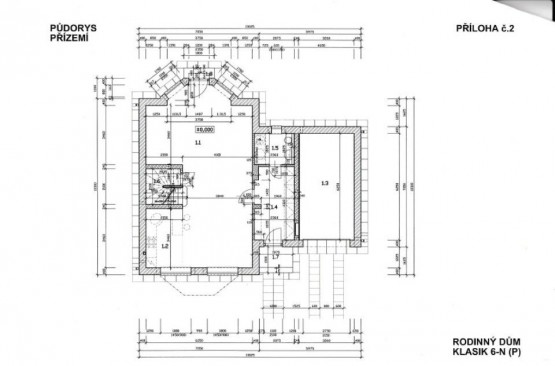
Nabízíme vám prostorný rodinný dům s garáží a zahradou v obci Zdiby - Přemyšlení.
Dům l...eží na pozemku o výměře 713m2, jehož zastavěná plocha je 119m2 s orientací na východ/západ a nabízí oboustranný výhled do zeleně.
Dispozice domu 5kk se skládá ze vstupní haly, technické místnosti + sociální zařízení WC a sprchou, komory a nedílnou součástí je prostorná obývací část, která je spojena s kuchyní a jídelnou. Kuchyň má vestavěné spotřebiče a dvoukřídlou chladničkou.
V obývacím prostoru naleznete krb obložen pískovcem a je zde přímý vstup na zahradní terasu.
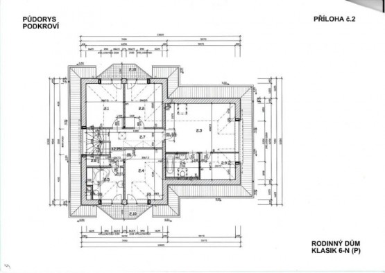
V podkroví jsou 3 pokoje se vstupem na balkon, koupelna s rohovou vanou, samostatným sociální zařízení WC, chodba s vestavěnými skříněmi. V patře je také velká ložnice s vlastní koupelnou, sociální zařízení WC a oddělenou šatnou.
V celém domě je instalován rozvod pro SAT TV, alarm, topení je plynové.

K zahradě o rozloze 594m2 náleží zahradní sauna a bazén o průměru 3m a hloubce 1, 2m.

Rodinný dům se nachází v klidné části obce Zdiby, poblíž je MHD zastávka. Dopravní dostupnost (12min od metra Kobylisy). Je zde nespočet sportovních aktivit, cyklistických i relaxačních. Poblíž najdete vyhlídku na řeku a Drahaňské údolí.
Obec Zdiby má veškeré občanské vybavení, poštu, obchody, restaurace, kavárny, lékaře, základní a mateřskou školu.

PENB kategorie B - velice úsporná
ID nemovitosti LDI0010 - 0001.
  • Vložení inzerátu:
    19.2.2021
  • Kód:
    LDI0010-0001
  • Typ nemovitosti:
    Rodinný dům
  • Typ budovy:
    Cihlová
  • Zastavěná plocha:
    119 m2
  • Podlahová plocha:
    145 m2
  • Plocha parcely:
    713 m2
  • Terasa:
    Ano
  • Stav objektu:
    Velmi dobrý
  • Topeni:
    lokální plynové
  • Bezbariérový přístup:
    Ano
  • Nabídky v okolí:

Podobné nabídky v okolí

Lokalita: U Louže , Přemyšlení, Zdiby, okres Praha-východ, Česká republika U Louže, Přemyšlení, Zdiby, okr. Praha-východ