• Sledovat cenu
  •  

Zasílání upozornění emailem:

Rodinný dům, 142 m2 - Kašperské Hory , okr. Klatovy (již není v nabídce)

Cena: 0 Kč/měsíc
Stav:archiv
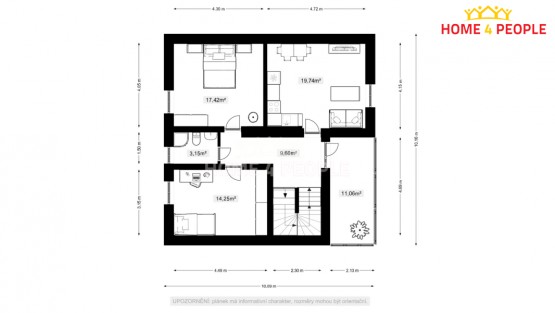
142 m2, cihlová, parcela 720 m2
Popis: Prodej domu v malebném horském městečku Kašperské Hory
Nabízíme k prodeji prostorný dům se dvěma samostatnými bytovými jednotkami typu 2+1 o celkové podlahové ploše 142 m². Každá jedn...otka disponuje dvěma pokoji a kuchyní, což poskytuje ideální podmínky pro vícegenerační bydlení, případně investiční záměr. Dům se nachází v klidné a příjemné lokalitě s nádhernými výhledy na okolní krajinu.

Hlavní výhody této nemovitosti:
Ideální pro rodinu nebo investici: Dvě samostatné bytové jednotky nabízejí skvělé možnosti pro vícegenerační bydlení nebo pro pronájem, čímž můžete zajistit pravidelný příjem.

Krásné horské prostředí: Kašperské Hory jsou oblíbeným místem pro milovníky přírody, turistiky, cyklistiky i zimních sportů. Šumava vás okouzlí svým čistým vzduchem a klidem.

Dobrá dopravní dostupnost: Přestože se nacházíte v srdci přírody, do okolních měst a turistických atrakcí se snadno dostanete autem nebo veřejnou dopravou.

Kompletně zařízený dům: Nemovitost je plně vybavena nábytkem a základními spotřebiči, což umožňuje okamžité nastěhování nebo zahájení pronájmu. Možnost úpravy vybavení je dle dohody.

Příjemné venkovní posezení: K domu náleží dvůr, kde si můžete užít relaxaci, grilování nebo společné chvíle s rodinou. O teplo a ohřev vody se stará úsporné tepelné čerpadlo, což přináší nižší provozní náklady.

Tento dům nabízí skvělou kombinaci bydlení v přírodě a investičního potenciálu. Pokud máte zájem o prohlídku nebo potřebujete další informace, neváhejte nás kontaktovat. Rádi vám poskytneme veškeré potřebné detaily. Ev. číslo: 30865. Energetický štítek: G (1 kWh/m2/rok).
  • Vložení inzerátu:
    28.8.2024
  • Kód:
    3846411
  • Typ nemovitosti:
    Rodinný dům
  • Typ budovy:
    Cihlová
  • Zastavěná plocha:
    94 m2
  • Podlahová plocha:
    142 m2
  • Plocha parcely:
    720 m2
  • Balkón:
    Ano
  • Sklep:
    Ano
  • Stav objektu:
    Dobrý
  • Umístění objektu:
    Klidná část
  • Energetická náročnost:
    G - Mimořádne nehospodárná
  • Ukazatel náročnosti:
    1 kWh/m2
  • Nabídky v okolí:
  • Informace o obci:
    Obec Kašperské Hory má 1544 obyvatel, z toho 1120 v produktivním věku.
    V obci se nachází pošta.
    V obci se nachází škola, popř. školka.
    V obci se nachází zdravotní zařízení.
    V obci je rozvod kanalizace.
    V obci je rozvod městské vody.

Podobné nabídky v okolí

Lokalita: Kašperské Hory , okres Klatovy, Česká republika Kašperské Hory , okr. Klatovy, Plzeňský kraj