• Sledovat cenu
  •  

Zasílání upozornění emailem:

Rodinný dům, 141 m2 - Kratochvilka , okr. Brno-venkov (již není v nabídce)

Cena: 6 250 000 Kč
Stav:archiv
141 m2, cihlová, parcela 521 m2
Popis: Nabízíme prodej rodinného domu na klíč o dispozici 4+kk se zastavěnou plochou 141m2 na samostatném pozemku o velikosti 521m2, v nové zástavbě obce Kratochv...ilka u Brna.
Dům je přízemní (bezbariérový) a nabízí dostatečný prostor pro čtyř - pěti člennou rodinu. Příjemným bonusem jsou venkovní žaluzie, klimatizovaný obývací pokoj s kuchyní a kamery okolo domu.
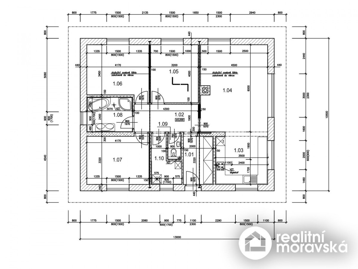
Dispozice: předsíň, chodba, obývací pokoj s kuchyňským koutem, 3 krát pokoj, koupelna se sprchovým koutem a vanou, samostatná toaleta, technická místnost. Obývací pokoj s přímým vstupem do zahrady láká k odpočinku na terase.
Výtápění domu bude zajišťovat podlahové topení a v obývacím pokoji je připraven komín pro krbová kamna. V obývacím pokoji lze topit i klimatizací. Teplou vodu bude ohřívat 200 litrový bojler.
Dům je postaven z kvalitních materiálů a je napojen na veškeré inženýrské sítě kromě plynu a kanalizace (kanalizace se bude budovat během roku 2020 v celé obci) - přípojku na kanalizaci bude financovat developer. Do té doby budou odpady svedeny do septiku před domem.
V současnou chvíli je možnost výběru materiálů dlažba, obklady, vnitřní dveře + obložky, podlaha.
Kolaudace domu proběhne v létě 2020. Energetická třída po kolaudaci B - velmi úsporná.
Jelikož se jedná o novostavbu, daň z nabytí ve výši 4% se platí pouze z pozemku.
V okolí je veškerá občanská vybavenost: Integrovaný dopravní systém, nemocnice, doktoři, zubaři, obchodní domy, škola, školka
V případě zájmu Vám nabízíme právní servis, vyřízení úvěru a úschovu finančních prostředků.
Pro více informací kontaktujte makléře Tomáše Pospíšila
  • Vložení inzerátu:
    12.1.2020
  • Kód:
    60/4506
  • Typ nemovitosti:
    Rodinný dům
  • Typ budovy:
    Cihlová
  • Zastavěná plocha:
    141 m2
  • Podlahová plocha:
    141 m2
  • Plocha parcely:
    521 m2
  • Stav objektu:
    Novostavba
  • Doprava:
    silnice, dálnice, MHD, autobus, vlak
  • Bezbariérový přístup:
    Ano
  • Nabídky v okolí:
  • Informace o obci:
    Obec Kratochvilka má 446 obyvatel, z toho 297 v produktivním věku.
    V obci je rozvod městské vody.
    V obci je rozvod plynu.

Podobné nabídky v okolí

Lokalita: Kratochvilka , okres Brno-venkov, Česká republika Kratochvilka , okr. Brno-venkov, Jihomoravský kraj