• Sledovat cenu
  •  

Zasílání upozornění emailem:

Rodinný dům, 141 m2 - Břehnická, Cheb

Cena: 7 990 000 Kč
Stav:Volný
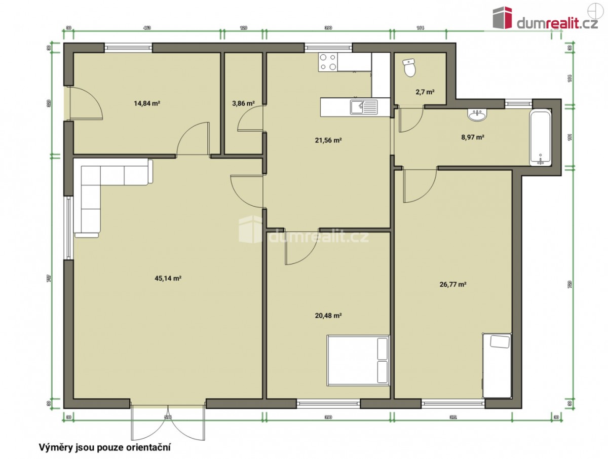
141 m2, cihlová, parcela 424 m2
Popis: Dumrealit. cz Vám nabízí koupi atypického prostorného bytu 3+1 o celkové rozloze 141 m² v přízemí cihlového domu s vlastní zahradou 424 m². Byt je v osobním vlastnictví s tím, že v d...omě jsou pouze 4 bytové jednotky, dále k nemovitosti náleží samostatný pozemek taktéž v osobním vlastnictví o rozloze 424 m², který plynule navazuje na byt. Jednotka má svůj samostatný vstup skrze svou vlastní branku, má vlastní přístup do budovy mimo a společné prostory budovy, tedy chová se téměř jako samostatný rodinný dům a skýtá absolutní soukromí. Vcházíme do prostorné předsíně, dále do velkorysého obývacího pokoje (cca 45 m²) odkud je přístup na terasu a zahradu. Dále je k dispozici kuchyně, špajzka, 2 pokoje , koupelna a samostatná toaleta. Byt prošel kompletní rekonstrukcí včetně elektroinstalace, vodoinstalace, znivelizovaných podlah, který jsou krásně srovnané a připravené na položení podlahy dle vašeho vkusu. Pouze v pokojích jsou vybroušené dřevěné prkenné podlahy. Okna jsou plastová. Vytápění je elektrické provizorní s tím, že je možné instalovat tepelné čerpadlo. Voda jez vodovodního řadu, odpad do kanalizace. Pozemek je kompletně oplocený, k dispozici je zde pergola s posezením, přístavek na dříví, a další dřevěný uzamykatelný přístavek. U domu je bezproblémové parkování. Na nemovitosti neváznou žádná břemena ani zástavy. Dům se nachází na malebném místě vedle minigolfu, tenisových kurtů a navazuje na volnočasový areál Krajinka poblíž areálu chebského hradu. Do deseti minut jízdy autem se nachází OBI, Kaufland, Sportissimo, JYSK, TESCO, Planeo elektro a další obchody. Cheb nabízí kompletně opravené náměstí (5 minut chůze), kde najdete vyhlášené restaurace Hvězdu či U Krále Jiřího, banky, úřady, obchody, městský úřad, občerstvení apod. . V Chebu je několik nádherných kostelů včetně kostelu sv. Mikuláše a Alžběty. Město se nachází 9 km od Německa, kde je jak možnost výhodných nákupů tak finančně zajímavého pracovního uplatnění. Cena zahrnuje provizi RK a veškerý právní servis. Ev. číslo: 652831. Energetický štítek: G (30 kWh/m2/rok).
  • Vložení inzerátu:
    17.10.2025
  • Kód:
    3992365
  • Typ nemovitosti:
    Rodinný dům
  • Typ budovy:
    Cihlová
  • Zastavěná plocha:
    141 m2
  • Podlahová plocha:
    141 m2
  • Plocha parcely:
    424 m2
  • Terasa:
    Ano
  • Sklep:
    Ano
  • Stav objektu:
    Velmi dobrý
  • Energetická náročnost:
    G - Mimořádne nehospodárná
  • Ukazatel náročnosti:
    30 kWh/m2
  • Nabídky v okolí:
  • Informace o obci:
    Obec Cheb má 34530 obyvatel, z toho 24618 v produktivním věku.
    V obci se nachází pošta.
    V obci se nachází škola, popř. školka.
    V obci se nachází zdravotní zařízení.
    V obci je rozvod kanalizace.
    V obci je rozvod městské vody.
    V obci je rozvod plynu.
Lokalita: Břehnická , Cheb, okres Cheb, Česká republika Břehnická, Cheb


Podobné nabídky v okolí


Volná pracovní místa ExpertPrace.cz
  • Objednání prohlídky a více informací
  •  
  • Poslat na e-mail
  •  

Zasílání odkazu na realitu emailem: