• Sledovat cenu
  •  

Zasílání upozornění emailem:

Rodinný dům, 140 m2 - Hořátev , okr. Nymburk

Cena: 0 Kč/měsíc
Stav:Volný
140 m2, cihlová, parcela 1249 m2
Popis: cena včetně provize a právního servisu. Dumrealit. cz Vám nabízí prodej prostorného rodinného domu, se zahradou, garáží a dílnou v obci Hořátev, vzdálené 4 km od Nymburka. Dům se nachází v klidné části obce, na konci sl...epé ulice. V blízkosti se nachází dostatek zeleně. V ulici je fotbalové hřiště k sportovnímu vyžití.
Jedná se o dům z roku 1974, dispozičně řešený jako 4+1. Je částečně podsklepený a kompletně vyklizený. Zastavěná plocha domu je 140 m², garáže a chlívků 51 m², dílny 31 m². Celková výměra pozemku včetně zastavěné plochy je 1249 m². Samotná zahrada má 1027 m².
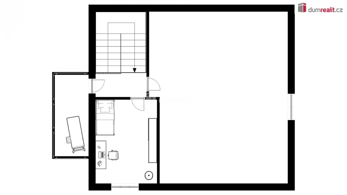
V 1. NP (první nadzemní patro) se nachází: vstupní veranda , samostatné sociální zařízení WC , chodba, 3 pokoje, kuchyň, koupelna se sprchovým koutem, vanou a další toaletou, vstup do sklepa a do patra.
Ve 2. NP (druhé nadzemní patro): schodiště s východem na terasu, jeden pokoj a prostorná půda, kde lze případně vybudovat další pokoj.
Dům je napojený na obecní vodovodní řád, kanalizaci a elektřinu. Na pozemku je k dispozici také studna. Vytápění je zajištěno kotlem na tuhá paliva , se zásobníkem na uhlí nebo dřevěné pelety. K dispozici 2 komíny. Okna jsou dřevěná, pouze v koupelně plastová. Na podlahách jsou v pokojích parketová podlaha, v koupelně a na chodbě dlažba.
Koupi této nemovitosti doporučuji nejen vzhledem k jejímu umístění, ale i možnosti rekonstrukce dle představ nového majitele a dům si tak přizpůsobit vlastním potřebám. V obci se nachází velice dobrá občanská vybavenost - mateřská i základní škola (1. stupeň), obchod s potravinami a obecní úřad .
Výborné dopravní spojení do Prahy - po dálnici D11 (Praha Černý Most - 39 km). V případě zájmu o prohlídku, kontaktujte makléřku nemovitosti. Cena k jednání. Ev. číslo: 653274. Energetický štítek: G
  • Vložení inzerátu:
    16.12.2025
  • Kód:
    4018829
  • Typ nemovitosti:
    Rodinný dům
  • Typ budovy:
    Cihlová
  • Zastavěná plocha:
    140 m2
  • Podlahová plocha:
    140 m2
  • Plocha parcely:
    1249 m2
  • Terasa:
    Ano
  • Sklep:
    Ano
  • Stav objektu:
    Před rekonstrukcí
  • Umístění objektu:
    Klidná část
  • Energetická náročnost:
    G - Mimořádne nehospodárná
  • Nabídky v okolí:
  • Informace o obci:
    Obec Hořátev má 728 obyvatel, z toho 491 v produktivním věku.
    V obci je rozvod kanalizace.
    V obci je rozvod městské vody.
Lokalita: Hořátev , okres Nymburk, Česká republika Hořátev , okr. Nymburk, Středočeský kraj

Kontakt

Zlatica Kožáková


Podobné nabídky v okolí


Volná pracovní místa ExpertPrace.cz
  • Objednání prohlídky a více informací
  •  
  • Poslat na e-mail
  •  

Zasílání odkazu na realitu emailem: