• Sledovat cenu
  •  

Zasílání upozornění emailem:

Rodinný dům, 138 m2 - V Dubovci, Moravany, okr. Pardubice (již není v nabídce)

Cena: 0 Kč/měsíc
Stav:archiv
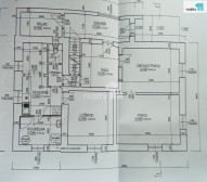
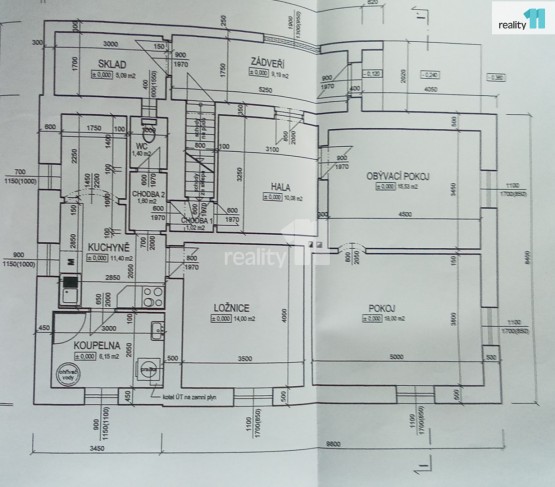
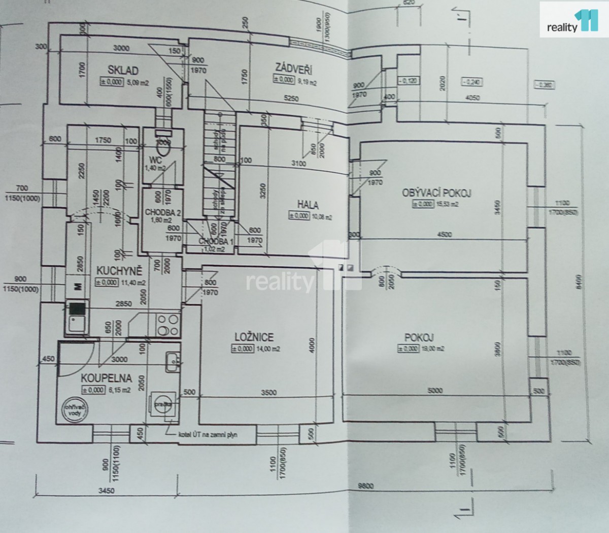
138 m2, cihlová, parcela 736 m2
Popis: Nabízíme k prodeji rodinný dům se zahradou v klidné části Moravan.
Dům prošel částečnou rekonstrukcí - nová střecha, fasáda, nová okna.
Dispozice domu: veranda, chodba, komora, kuchyně, obývací pokoj, dětský pokoj..., koupelna a samostatné sociální zařízení WC.
Další bytové prostory lze vybudovat v podkroví.
U domu je parkovací stání a udržovaná zahrada.
Dům je napojen na veškeré inženýrské sítě.
V blízkosti je veškerá občanská vybavenost: škola, školka, obchody a služby, zdravotnická zařízení. Dobré dopravní spojení do Chrudimi, Pardubic a Holic. Ev. číslo: 27112. Energetický štítek: G
  • Vložení inzerátu:
    1.2.2025
  • Kód:
    3935270
  • Typ nemovitosti:
    Rodinný dům
  • Typ budovy:
    Cihlová
  • Zastavěná plocha:
    98 m2
  • Podlahová plocha:
    138 m2
  • Plocha parcely:
    736 m2
  • Sklep:
    Ano
  • Stav objektu:
    Dobrý
  • Umístění objektu:
    Klidná část
  • Energetická náročnost:
    G - Mimořádne nehospodárná
  • Nabídky v okolí:
  • Informace o obci:
    Obec Moravany má 1807 obyvatel, z toho 1213 v produktivním věku.
    V obci se nachází pošta.
    V obci se nachází škola, popř. školka.
    V obci se nachází zdravotní zařízení.
    V obci je rozvod kanalizace.
    V obci je rozvod městské vody.
    V obci je rozvod plynu.

Podobné nabídky v okolí

Lokalita: V Dubovci , Moravany, okres Pardubice, Česká republika V Dubovci, Moravany, okr. Pardubice