• Sledovat cenu
  •  

Zasílání upozornění emailem:

Rodinný dům, 137 m2 - Babice , okr. Praha-východ (již není v nabídce)

Cena: 7 999 000 Kč
Stav:archiv
137 m2, cihlová, parcela 841 m2
Popis: Exkluzivně, v zastoupení majitele, Vám nabízím ke koupi pěknou a kvalitní novostavbu patrového RD (rodinný dům) 5+1 s oplocenou zahradou ve vyhledávané obci Babice, Praha východ.
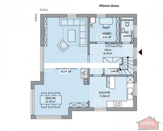
V... přízemí domu je prostorná vstupní hala (8, 16m2) s jednotlivými vstupy do koupelny se sprchovým koutem, sociální zařízení WC a umyvadlem (3, 90m2), hobby místnosti (4, 61m2), kuchyňského koutu (11, 54m) a komory (1, 44m2), obývacího pokoje s krbem s jídelnou (37m2) a schody do patra.
V patře je chodba (3, 31m2) s jednotlivými vstupy do tří pokojů (19, 55m2, 14, 76m2 a 11, 54m2) a koupelny s vanou, umyvadly a sociální zařízení WC (6, 20m2).
Ze všech pokojů na patře je vstup na balkóny (3, 75 a 1, 67 m2). Plyn, voda, elektřina a kanalizace jsou připojeny. Vytápění plynové ústřední. V přízemí a v patře na chodbě a v koupelně na podlahách dlažba, na pokojích v patře plovoucí dřevěná podlaha.
Stavba domu je zděná plus zateplení.
Zahrada je situovaná na jižní stranu!!
Celková plocha pozemku 841 m2, zastavěná plocha 84 m2, podlahová plocha domu 140 m2, oplocená zahrada 757 m2.
Velmi pěkná lokalita v bezprostřední blízkosti lesa, možnosti jízdy na kole, procházky, vybavenost škola, školka, obchod, restaurace.
Cca 500 m od domu gymnázium Opengate.
V blízkém Mukařově Penny Market, cukrárna a další obchody. Nedaleké Říčany nabízejí kompletní občanskou vybavenost včetně plaveckého bazénu, zimního stadionu, lékařů, obchodů, restaurací, služeb.
Spolu s majitelem Vás srdečně zveme na prohlídku.
  • Vložení inzerátu:
    18.2.2019
  • Kód:
    858/2245
  • Typ nemovitosti:
    Rodinný dům
  • Typ budovy:
    Cihlová
  • Zastavěná plocha:
    67 m2
  • Podlahová plocha:
    137 m2
  • Plocha parcely:
    841 m2
  • Terasa:
    Ano
  • Stav objektu:
    Novostavba
  • Voda:
    dálkový vodovod
  • Elektřina:
    230 V, 380 V
  • Doprava:
    silnice, autobus
  • Topeni:
    ústřední plynové
  • Plyn:
    plynovod
  • Odpad:
    kanalizace
  • Komunikace:
    dlážděná
  • Bezbariérový přístup:
    Ano
  • Energetická náročnost:
    B - Velmi úsporná
  • Podle vyhlášky:
    c. 78/2013 Sb.
  • Nabídky v okolí:
  • Informace o obci:
    Obec Babice má 700 obyvatel, z toho 493 v produktivním věku.
    V obci je rozvod kanalizace.
    V obci je rozvod městské vody.
    V obci je rozvod plynu.

Podobné nabídky v okolí

Lokalita: Babice , okres Praha-východ, Česká republika Babice , okr. Praha-východ, Středočeský kraj