• Sledovat cenu
  •  

Zasílání upozornění emailem:

Rodinný dům, 136 m2 - Hrubšice , Ivančice, okr. Brno-venkov (již není v nabídce)

Cena: 8 000 000 Kč
Stav:archiv
136 m2, cihlová, parcela 376 m2
Popis: Nabízíme prodej bytové jednotky v novostavbě rodinného domu o dispozici 4+kk s užitnou plochou 136m2 na pozemku (88m2 zastavěná plocha + 288m2 z...ahrada = 376m2 celková plocha pozemku), v nové zástavbě, v obci Ivančice - Hrubšice. Jedná se o rodinný dům o dvou bytových jednotkách (každá jednotka má svou zahradu a samostatný vstup přímo z ulice). Cena je uvedená za hotový byt včetně parkovacích stání před domem.

Byt. jednotka je patrová, má garáž, dvě koupelny a nabízí dostatečný prostor pro čtyř člennou rodinu (dispozičně je bytová jednotka jako rodinný dům).

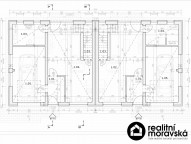
Dispozice 1. NP (první nadzemní patro) (užitná plocha 67, 88m2): Zádveří (4, 9m2), obývací pokoj + kuchyňský kout (30, 36m2), komora (3, 63m2), koupelna s sociální zařízení WC + technické zázemí (7, 94m2), garáž (21, 05m2).
Dispozice 2. NP (druhé nadzemní patro) (užitná plocha 68, 30m2): Chodba (8, 46m2), pokoj č. 1 (13, 45m2), pokoj č. 2 (13, 94m2), sociální zařízení WC (1, 44m2), koupelna (9, 54m2), ložnice (11, 46m2), šatna (6, 25m2), schodiště (3, 76m2).

Vytápění jednotky bude zajišťovat teplovodní podlahové topení - tepelné čerpadlo. RD (rodinný dům) je napojen na vodovod, splaškovou kanalizaci a elektřinu. Zdrojem teplé vody bude el. bojler umístěný v technické části koupelny v 1. NP (první nadzemní patro).

Okna a dveře jsou plastová, zasklená izolačním trojsklem.

Cena za tuto nemovitost je bez kuchyně a jiných zařizovacích předmětů. V ceně je dokončený dům - koupelny (sanita, obklady dlažba), podlahy (vinyl), dveře + obložky dle výběru z naší nabídky.

Nemovitost splňuje energetickou třídu D (PENB).

V okolí je veškerá občanská vybavenost: Integrovaný dopravní systém, nemocnice, doktoři, zubaři, obchodní domy, škola, školka.

V případě zájmu Vám nabízíme právní servis, vyřízení úvěru a úschovu finančních prostředků.

Pro více informací kontaktujte realitního makléře Tomáše Pospíšila.
  • Vložení inzerátu:
    3.7.2022
  • Kód:
    190/4506
  • Typ nemovitosti:
    Rodinný dům
  • Typ budovy:
    Cihlová
  • Zastavěná plocha:
    88 m2
  • Podlahová plocha:
    136 m2
  • Plocha parcely:
    376 m2
  • Stav objektu:
    Novostavba
  • Bezbariérový přístup:
    Ano
  • Energetická náročnost:
    D - Méne úsporná
  • Ukazatel náročnosti:
    130 kWh/m2
  • Nabídky v okolí:

Podobné nabídky v okolí

Lokalita: Hrubšice , Ivančice, okres Brno-venkov, Česká republika Hrubšice , Ivančice, okr. Brno-venkov, Jihomoravský kraj