• Sledovat cenu
  •  

Zasílání upozornění emailem:

Rodinný dům, 135 m2 - Opatovice , Vyškov, okr. Vyškov

Cena: 2 150 000 Kč
Stav:Volný
135 m2, cihlová, parcela 1176 m2
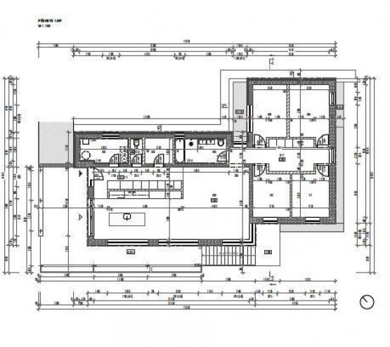
Popis: V jedinečném pověření majitelky, dovolujeme si nabídnout rodinný dům se zahradou a další stavební parcelou v místní části Vyškova, v Opatovicích. Dům ve vyhledávané lokalitě, je dispozice ...>3+1, je v druhé polovině zamýšlených rekonstrukčních prací a již nyní je schopen, po vložení určité míry úprav, použití k bydlení. Neobvyklou zajímavostí nabídky však je, že majitelé měli záměr postavení nového domu nad stávající stavbou, k čemuž však nedošlo, ale již byly zpracovány projektové dokumenty, které přikládáme. Dům stojí pod poměrně prudkým svahem, který tvoří terasovitou zahradu a právě v jedné z teras, mělo vzniknout již vzpomínané nové bydlení, které by svého majitele odměňovalo nádherným výhledem na obec a její okolní přírodu. Stávající dům je v druhé polovině rekonstrukce, je napojen na všechny inženýrské sítě, je lokalizován v klidné ulici obce, dispozice je 3+1, je zde navíc technická místnost, nadzemní klenutý kamenný sklep, avšak co nelze opomenout, je zde navíc možnost, vybudování velkolepé a alternativně i mezonetové půdní vestavby, neboť světlá výška půdy k tomuto přímo vybízí a plocha takové půdy by zvýšila obytnou plochu domu o dalších minimálně 100 m2. Nabídka má opravdu několik alternativ a to od té, kdy se dokončí rekonstrukce stávajícího o objektu, který bude disponovat krásnou, do svahu situovanou terasovitou zahradu s příjezdem i z opačné strany, po nezpevněné cestě, až po možnost mnohogeneračního bydlení, kdy jedna část rodiny bude obývat stávající dům 3+1, další mohou bydlet ve vybudované půdní nástavbě a další část rodiny bude využívat nový dům, postavený na zahradě, na místě, kdy byla stavba domu i stávajícími majiteli, v jejich záměru. Nabízíme dům s mnoha možnostmi využití, je jen na budoucím majiteli, jak s nabízenými možnostmi naloží, každopádně je zde více alternativ, což u podobných nabídek nebývá zvykem, či v technických možnostech, ale je třeba očekávat dům, kde je ještě třeba úprav, čemuž odpovídá i nabízená cenová úroveň. Prohlídky možné po dohodě o termínu, nabízíme účinnou pomoc při optimálním financování nákupu předmětu této nabídky.
  • Vložení inzerátu:
    23.9.2025
  • Kód:
    1058
  • Typ nemovitosti:
    Rodinný dům
  • Typ budovy:
    Cihlová
  • Zastavěná plocha:
    103 m2
  • Podlahová plocha:
    135 m2
  • Plocha parcely:
    1176 m2
  • Sklep:
    15 m2
  • Voda:
    dálkový vodovod
  • Elektřina:
    230 V
  • Doprava:
    silnice, dálnice, MHD, autobus, vlak
  • Topeni:
    ústřední plynové
  • Plyn:
    plynovod
  • Odpad:
    kanalizace
  • Komunikace:
    asfaltová
  • Bezbariérový přístup:
    Ano
  • Energetická náročnost:
    G - Mimořádne nehospodárná
  • Nabídky v okolí:
Lokalita: Opatovice , Vyškov, okres Vyškov, Česká republika Opatovice , Vyškov, okr. Vyškov, Jihomoravský kraj

Kontakt

Karel Rozsypal



Volná pracovní místa ExpertPrace.cz
  • Objednání prohlídky a více informací
  •  
  • Poslat na e-mail
  •  

Zasílání odkazu na realitu emailem: