Rodinný dům, 134 m2 - Dvouletky 2752, Praha 10, Strašnice, Praha (již není v nabídce)
Cena:
12 190 000 Kč
Stav:archiv
134 m2, cihlová, parcela 157 m2
Popis:
ID: P200701. Nabízíme k prodeji řadový rodinný dům se zahradou a předzahrádkou na sídlišti Solidarita v srdci Pražských Strašnic. V této čtvrti najdete hodně zeleně a je zde příjemná atmosféra k bydlení.
Jako realitní ma...kléř vám doporučuji využít všech výhod, které tato lokalita nabízí. Je zde několik škol a školek, tramvajová zastávka (250 m) a metro Strašnická je (950 m). Najdete zde několik parků a zelených ploch, kde si můžete užít volný čas. Pokud hledáte klidné a přitom dobře dostupné místo k životu, toto místo je vhodnou volbou.
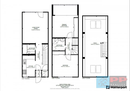
V přízemí se nachází předsíň, kuchyně, obývací pokoj, koupelna s vanou a samostatné sociální zařízení WC. Prostor pod schodištěm je možno využít jako úklidovou komoru nebo šatnu. V prvním patře najdete dvě samostatné ložnice a druhou koupelnu se sprchovým koutem a bidetem. Ve druhém patře domu se nachází prostorný obytný půdní pokoj.
Vytápění a ohřev vody vlastním plynovým kotlem. Plastová okna, venkovní žaluzie, zateplení před 10 lety. V 1. patře jsou parketové podlahy, vestavěné skříně (x2), v přízemí a 2. patře plovoucí podlahy. Dům lze ihned užívat nebo také provést částečnou renovaci. Náklady na provoz činí cca 8. 000 Kč měsíčně.
Předzahrádku tvoří zeleň a malý dvorek před domem (34m2). Oplocená zahrada vzadu má rozlohu kolem (68m2), roste na ní velký lískový ořech.
Pokud se na tuto nemovitost budete chtít nezávazně podívat, neváhejte se se mnou spojit.
- Vložení inzerátu:
30.10.2023
- Kód:
2134
- Typ nemovitosti:
Rodinný dům
- Typ budovy:
Cihlová
- Zastavěná plocha:
55 m2
- Podlahová plocha:
134 m2
- Plocha parcely:
157 m2
- Stav objektu:
Dobrý
- Telekomunikace:
, Kabelové rozvody
- Voda:
dálkový vodovod
- Elektřina:
230 V
- Doprava:
MHD, autobus
- Topeni:
ústřední plynové
- Plyn:
plynovod
- Odpad:
kanalizace
- Komunikace:
dlážděná
- Bezbariérový přístup:
Ano
- Nabídky v okolí: