• Sledovat cenu
  •  

Zasílání upozornění emailem:

Rodinný dům, 132 m2 - Ludkovice , okr. Zlín (již není v nabídce)

Cena: 7 239 000 Kč
Stav:archiv
132 m2, dřevostavba, parcela 1712 m2
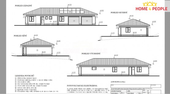
Popis: Cena za dům, pozemek, studnu a DPH. Zprostředkujeme Vám prodej hotového projektu před vydáním stavebního povolení k domu Bára 4+kk s dvojgaráží v Ludkovicích u Luhačovic s poz...emkem o velikosti 1712m². Součástí ceny je jednak dům dle vyobrazení, pozemek, garážové vrata na dálkové ovládání, studna napojena do domu, projekt, vyřízení stavebního povolení a přípojné místo na elektřinu. Jedná se o dřevostavbu, ale můžeme změnit na zděnou stavbu a to bez doplatku. Uvedená cena je za kompletní výstavbu domu na klíč, včetně DPH, projektové dokumentace, vyřízení stavebního povolení, základové desky až po kolaudaci. V uvedené ceně můžete počítat s finálními povrchovými úpravami exteriéru i interiéru, a to včetně elektroinstalací, sanitárního vybavení s bateriemi, interiérovými dveřmi včetně obložek, kompletním nízko nákladovým podlahovým topením, rekuperací a fotovoltaickými panely a baterií, splňující energetickou náročnost "A" dle nové normy udávané ČR. Ohřev vody zajišťuje el. bojler o objemu 180l. Doba výstavby cca 8 - 10 měsíců od vydání stavebního povolení a stavbu zahájíme do 10 dnů od jeho vydání. Tento typový dům Vám rádi ukážeme v rozpracovaném nebo hotovém stavu, kde se seznámíte se skladbou materiálů a můžete si tak projít dispozice domu. Stavba je od počátku řešena ve variantě na klíč až po kolaudaci. Doporučuji prohlídku pozemku a našich staveb. Podobný dům Bára 4+kk s garáží vám rádi ukážeme. Financování zajišťujeme a můžete také využití našich služeb, při prodeji Vaší nemovitosti, kterou tento nákup popřípadě výstavbu zafinancujete. Ev. číslo: 30439. Energetický štítek: A (34 kWh/m2/rok).
  • Vložení inzerátu:
    2.4.2023
  • Kód:
    3515398
  • Typ nemovitosti:
    Rodinný dům
  • Typ budovy:
    Dřevostavba
  • Zastavěná plocha:
    132 m2
  • Podlahová plocha:
    132 m2
  • Plocha parcely:
    1712 m2
  • Stav objektu:
    Ve výstavbě
  • Umístění objektu:
    Okraj
  • Energetická náročnost:
    A - Mimoˇrádne úsporná
  • Ukazatel náročnosti:
    34 kWh/m2
  • Nabídky v okolí:
  • Informace o obci:
    Obec Ludkovice má 709 obyvatel, z toho 490 v produktivním věku.
    V obci je rozvod městské vody.
    V obci je rozvod plynu.

Podobné nabídky v okolí

Lokalita: Ludkovice , okres Zlín, Česká republika Ludkovice , okr. Zlín, Zlínský kraj