• Sledovat cenu
  •  

Zasílání upozornění emailem:

Rodinný dům, 130 m2 - Zábřeh, okr. Šumperk (již není v nabídce)

Cena: 0 Kč
Stav:archiv
130 m2, cihlová, OV, parcela 802 m2
Popis: Hledáte možnost bydlení v Zábřehu ve vlastním domě na nádherném místě a nemůžete nic najít? Máme pro Vás řešení. V zastoupení majitele nabízíme k prodeji rozestavěný rodinný dům z kvalitních materiálů na úžasném místě v Zábř...ehu. Jedná se o klidnou rodinnou zástavbu v ulici Pod Račicí, kde můžete nalézt svůj nový domov i Vy.
Dům je rozestavěn z kvalitních cihel HELUZ Family, které zajistí dobré vlastnosti domu.
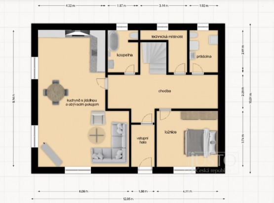
Dispozičně je dům nyní řešen jako 5+kk 130 m² se samostatnou garáží o velikosti 35 m², ale dům lze přestavět, dle vlastních potřeb.
Uvítá Vás útulná předsíň, kde si budoucí majitel může odkládat věci.
Z předsíně projdeme chodbou a uvítá nás velký obývací pokoj, který je propojen s kuchyňským koutem.
V přízemí domu se nachází také prostorná ložnice, pracovna, technická místnost a rodinná koupelna.
V patře domu se nachází dva velké pokoje, které lze upravit, dle potřeb budoucího majitele.
V prvním patře domu jsou pokoje, které je možné upravit, dle potřeb budoucího kupujícího.
Za domem je prostor pro velkou terasu s výhledem do okolní přírody. Je zde úžasný klid a pohoda.
Vedle domu se nachází samostatná garáž s možností vybudování dílny.
Zahrada u domu nabízí možnosti realizace podle představ budoucího majitele.
Pozemek disponuje celkovou výměrou 802 m².
V případě zájmu jsme schopni zajistit financování koupi domu a případně i dostavby celého domu, naším finančním poradcem. Konzultace ohledně financování je zdarma.
Pokud Vás dům zaujal, kontaktujte makléře nabídky, který Vám dům rád představí a poskytne další podrobnosti.
Prodávající si vyhrazuje právo vybrat kupujícího na základě prodávajícím zvolených kritérií.
  • Vložení inzerátu:
    20.6.2022
  • Kód:
    3337218
  • K dispozici od:
    1.7.2022
  • Typ nemovitosti:
    Rodinný dům
  • Typ budovy:
    Cihlová
  • Vlastnictví:
    OV
  • Podlaží:
    2
  • Zastavěná plocha:
    165 m2
  • Podlahová plocha:
    130 m2
  • Plocha parcely:
    802 m2
  • Stav objektu:
    Ve výstavbě
  • Umístění objektu:
    Klidná část
  • Elektřina:
    230 V, 380 V
  • Komunikace:
    asfaltová
  • Energetická náročnost:
    G - Mimořádne nehospodárná
  • Nabídky v okolí:
  • Informace o obci:
    Obec Zábřeh má 14004 obyvatel, z toho 9850 v produktivním věku.
    V obci se nachází pošta.
    V obci se nachází škola, popř. školka.
    V obci se nachází zdravotní zařízení.
    V obci je rozvod kanalizace.
    V obci je rozvod městské vody.
    V obci je rozvod plynu.

Podobné nabídky v okolí

Lokalita: Zábřeh, okres Šumperk, Česká republika Zábřeh, okr. Šumperk, Olomoucký kraj