• Sledovat cenu
  •  

Zasílání upozornění emailem:

Rodinný dům, 130 m2 - Pražská, Bor, okr. Tachov (již není v nabídce)

Cena: 0 Kč/měsíc
Stav:archiv
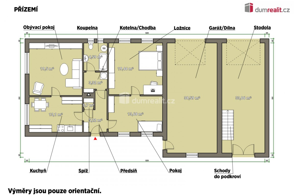
130 m2, cihlová, parcela 872 m2
Popis: prodej rodinného domu 3+1 130 m² s velkou půdou a možností rozšíření o další místnosti, s velkou garáží s průjezdem na zahradu a stodolou v centru Boru u Tachova. U domu se nachází k...rásná rovinná zahrada se vzrostlými ovocnými stromy a založenými záhony na pěstování ovoce a zeleniny. V přízemí domu se nachází vstupní chodba, spíž, kuchyň se vstupem do obývacího pokoje, dvě ložnice, koupelna s toaletou, kotelna. Pod malou částí domu se nachází sklep. Na domě je nyní nová střecha s betonovými taškami se zárukou více než - li 30 let. Topení zajištuje novější kotel na tuhá paliva, který splňuje nynější emisní normu. Do domu je zavedená obecní voda a kanalizace u domu je již optické vedení internetové připojeníu. K nemovitosti vede asfaltová příjezdová cesta. Bor u Tachova je velice dobře občansky vybavené město s velkou možností zaměstnání přímo v okolí. Této nemovitosti vám z cela zdarma vyřídíme hypoteční úvěr, právní servis. V případě dotazů nebo zájmu o prohlídku nás neváhejte kontaktovat. Doporučujeme Ev. číslo: 648811. Energetický štítek: G
  • Vložení inzerátu:
    21.12.2024
  • Kód:
    3900987
  • Typ nemovitosti:
    Rodinný dům
  • Typ budovy:
    Cihlová
  • Zastavěná plocha:
    100 m2
  • Podlahová plocha:
    130 m2
  • Plocha parcely:
    872 m2
  • Sklep:
    Ano
  • Stav objektu:
    Dobrý
  • Umístění objektu:
    Klidná část
  • Energetická náročnost:
    G - Mimořádne nehospodárná
  • Nabídky v okolí:
  • Informace o obci:
    Obec Bor má 4334 obyvatel, z toho 3150 v produktivním věku.
    V obci se nachází pošta.
    V obci se nachází škola, popř. školka.
    V obci se nachází zdravotní zařízení.
    V obci je rozvod kanalizace.
    V obci je rozvod městské vody.
    V obci je rozvod plynu.

Podobné nabídky v okolí

Lokalita: Pražská , Bor, okres Tachov, Česká republika Pražská, Bor, okr. Tachov