Rodinný dům, 130 m2 - Pražská, Bor, okr. Tachov (již není v nabídce)
            
            
                
        Cena:
                        4 340 000 Kč
        
              Stav:archiv
        
         
          
          
                130 m2, cihlová, parcela 872 m2          
        
        Popis:
        
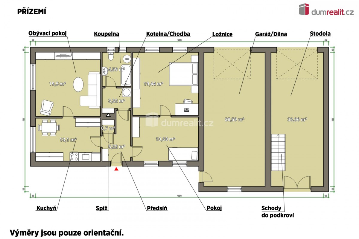
                                prodej rodinného domu 3+1 130 m² s velkou půdou a možností rozšíření o další místnosti,  s velkou garáží s průjezdem na zahradu a stodolou v centru Boru u Tachova.  U domu se nachází k...rásná rovinná zahrada se vzrostlými ovocnými stromy a založenými záhony na pěstování ovoce a zeleniny.  V přízemí domu se nachází vstupní chodba,  spíž,  kuchyň se vstupem do obývacího pokoje,  dvě ložnice,  koupelna s toaletou,  kotelna.  Pod malou částí domu se nachází sklep.  Na domě je nyní nová střecha s betonovými taškami se zárukou více než - li 30 let.  Topení zajištuje novější kotel na tuhá paliva,  který splňuje nynější emisní normu.  Do domu je zavedená obecní voda a kanalizace u domu je již optické vedení internetové připojeníu.  K nemovitosti vede asfaltová příjezdová cesta.  Bor u Tachova je velice dobře občansky vybavené město s velkou možností zaměstnání přímo v okolí.  Této nemovitosti vám z cela zdarma vyřídíme hypoteční úvěr,  právní servis.  V případě dotazů nebo zájmu o prohlídku nás neváhejte kontaktovat.  Doporučujeme Ev.  číslo:  648811.  Energetický štítek:  G
            
            
    - Vložení inzerátu:24.11.2024  
- Kód:3888947  
- Typ nemovitosti:Rodinný dům  
- Typ budovy:Cihlová  
- Zastavěná plocha:100 m2 
- Podlahová plocha:130 m2 
- Plocha parcely:872 m2 
- Sklep:Ano 
- Stav objektu:Dobrý  
- Umístění objektu:Klidná část  
- Energetická náročnost:G - Mimořádne nehospodárná  
- Nabídky v okolí:
- Informace o obci:Obec Bor má 4334 obyvatel, z toho 3150 v produktivním věku.
 V obci se nachází pošta.
 V obci se nachází škola, popř. školka.
 V obci se nachází zdravotní zařízení.
 V obci je rozvod kanalizace.
 V obci je rozvod městské vody.
 V obci je rozvod plynu.
 
 
 
     
        
            Lokalita:
            
                Pražská , Bor, okres Tachov, Česká republika
                
                                                                
                                                                                                                                                                                                                                                                                    Pražská, Bor, okr. Tachov