• Sledovat cenu
  •  

Zasílání upozornění emailem:

Rodinný dům, 125 m2 - Rosnice , Karlovy Vary, okr. Karlovy Vary (již není v nabídce)

Cena: 3 990 000 Kč
Stav:archiv
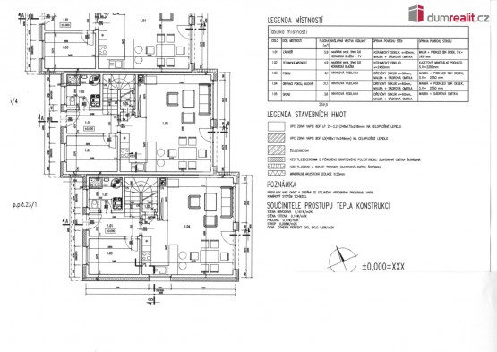
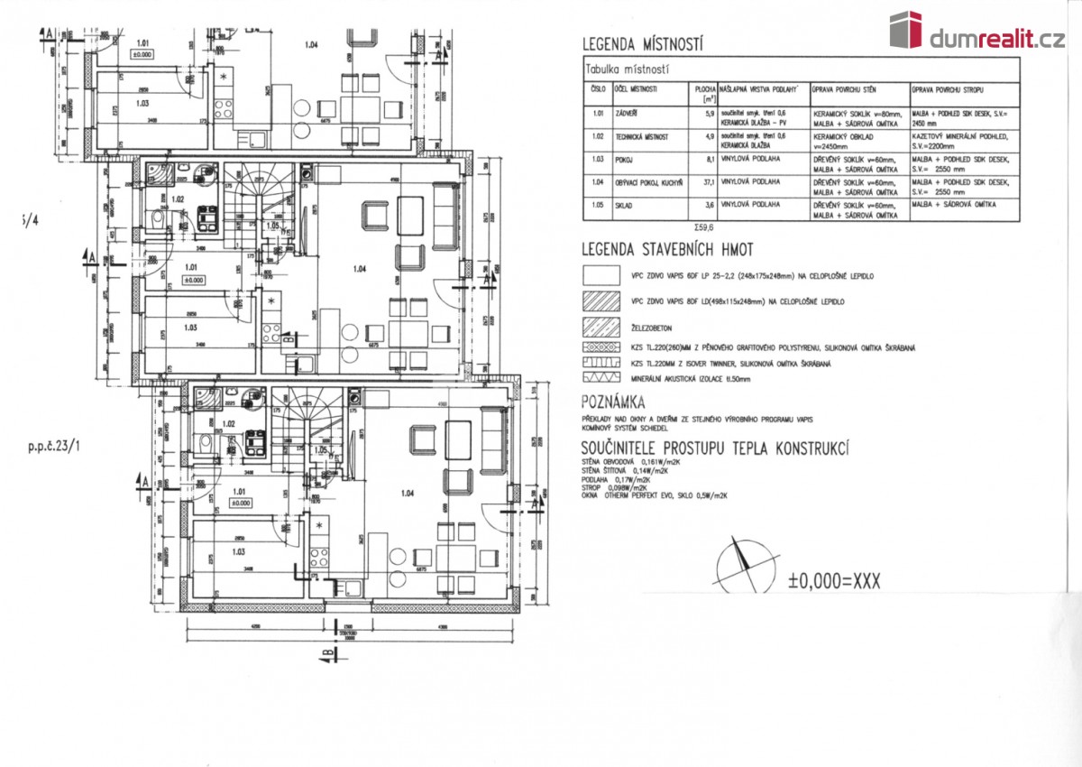
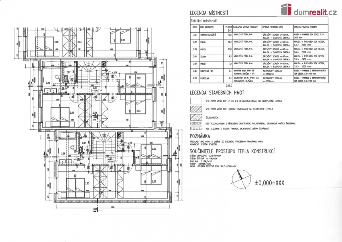
125 m2, cihlová, parcela 226 m2
Popis: včetně právního servisu a provize RK. Dumrealit. cz Vám nabízí prodej řadového rodinného domu v Karlových Varech - Rosnicích. Dvoupodlažní domy, každý na vlastním pozemku o celkové velikosti 226 - 528 m² včetně dvou pa...rkovacích míst, májí dispozici 5+kk s podlahovou plochou 125 m². Tyto pasivní domy budou postaveny nejnovějšími trendy z vápenopískových cihel s kontaktním zateplovacím systémem. Uvedená cena je za uzavřenou hrubou stavbu s pozemkem 226 m². Samozřejmostí je možnost úpravy domu a vybavení dle vašeho přání, i kompletní stavba na klíč. Podrobné informace vám rádi poskytneme při osobním setkání, neváhejte nás kontaktovat. Tuto nemovitost lze hradit hypotečním úvěrem, který Vám rádi pomůžeme vyřídit v našem hypotečním centru. Ev. číslo: 643673. Energetický štítek: B (123 kWh/m2/rok).
  • Vložení inzerátu:
    17.4.2025
  • Kód:
    3974924
  • Typ nemovitosti:
    Rodinný dům
  • Typ budovy:
    Cihlová
  • Zastavěná plocha:
    130 m2
  • Podlahová plocha:
    125 m2
  • Plocha parcely:
    226 m2
  • Terasa:
    Ano
  • Stav objektu:
    Ve výstavbě
  • Umístění objektu:
    Klidná část
  • Energetická náročnost:
    B - Velmi úsporná
  • Ukazatel náročnosti:
    123 kWh/m2
  • Nabídky v okolí:

Podobné nabídky v okolí

Lokalita: Rosnice , Karlovy Vary, okres Karlovy Vary, Česká republika Rosnice , Karlovy Vary, okr. Karlovy Vary, Karlovarský kraj