• Sledovat cenu
  •  

Zasílání upozornění emailem:

Rodinný dům, 123 m2 - Tečovice , okr. Zlín

Cena: 10 299 500 Kč
Stav:Volný
123 m2, cihlová, parcela 682 m2
Popis: Cena včetně pozemku, projektu, stavebního povolení, výstavby domu na klíč, kolaudace a celkové DPH. . Moderní rodinné sídlo v srdci Tečovic: Prostor, úspora a komfort na klíč
Hledáte dokonalé místo pro život své rodiny..., kde se potkává moderní architektura s velkorysým prostorem?
Objevte projekt nízkoenergetického domu 4+kk v oblíbené lokalitě Těčovice u Zlína.
Na slunném, rovinatém pozemku o rozloze 682 m² pro vás postavíme dům, který není jen stavbou, ale promyšleným domovem pro 21. století.

Čím vás tento dům nadchne?
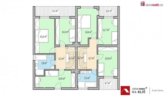
Dispozice 4+kk s užitnou plochou 123 m² poskytne dostatek soukromí i pro velkou rodinu nebo domácí pracovnu.
Chytrá úspora: Díky špičkovým materiálům (Porfix) a tepelnému čerpadlu jsou měsíční náklady až 3 krát nižší než v běžném bytě. Šetřete tam, kde to dává smysl.
Bezstarostná realizace: Dům předáváme kompletně dokončený "na klíč" – včetně podlah, sanity, dveří a kolaudace. Stačí si vybrat kuchyni, svítidla a můžete bydlet.
Zahrada snů: Šířka pozemku 12 metrů a délkou 57 metrů nabízí nekonečné možnosti pro bazén, terasu nebo dětské království.

Projekt dvojdomu TWIX poskytuje ekonomicky výhodnou alternativu luxusního bydlení za výbornou cenu. Dům představuje kombinaci hezkých tvarů a racionální půdorysné dispozice.
Každá část dvojdomu je plně samostatná s důrazem na zachování soukromí jak u vchodové části, tak u části terasové.
Dvojdům TWIX také poskytuje ke každé části užitkovou místnost s přístupem z venku na odkládání kol, kočárků, zahradní techniky, atp.
V případě zájmu lze tento prostor snadnou úpravou využít ke zvětšení kuchyně a obývacího pokoje.

Lokalita, kterou si zamilujete
Tečovice nabízejí veškerý komfort na dosah ruky. Do Zlína dorazíte za pouhých 15 minut, přesto si doma užijete naprostý klid.
Mateřská a základní škola v docházkové vzdálenosti. Sportovní vyžití: bazén, fotbalové hřiště, dětská hřiště. Kompletní vybavenost: obchod, restaurace, pošta.

Technické standardy & Možnosti
Vytápění: Teplovodní podlahové topení a tepelné čerpadlo se zásobníkem na vodu.
Flexibilita: Chcete krb, rekuperaci, fotovoltaiku nebo venkovní žaluzie? Žádný problém. Dispozici domu rádi upravíme podle vašich přání.
Rychlost: Bydlíte do 12–13 měsíců od vydání stavebního povolení.
Cena obsahuje: Pozemek, projektovou dokumentaci, základovou desku, výstavbu na klíč, finální povrchy v interiéru i exteriéru a DPH.

Přijďte se přesvědčit na vlastní oči! Máme pro vás připravený detailní projekt a rádi vás provedeme našimi již hotovými domy, abyste si mohli sáhnout na kvalitu naší práce.
Kontaktujte našeho makléře ještě dnes a udělejte první krok ke svému novému domovu. Ev. číslo: 653952. Energetický štítek: A (49 kWh/m2/rok).
  • Vložení inzerátu:
    2.2.2026
  • Kód:
    4094435
  • Typ nemovitosti:
    Rodinný dům
  • Typ budovy:
    Cihlová
  • Zastavěná plocha:
    83 m2
  • Podlahová plocha:
    123 m2
  • Plocha parcely:
    682 m2
  • Lodžie:
    Ano
  • Terasa:
    Ano
  • Stav objektu:
    Ve výstavbě
  • Energetická náročnost:
    A - Mimoˇrádne úsporná
  • Ukazatel náročnosti:
    49 kWh/m2
  • Nabídky v okolí:
  • Informace o obci:
    Obec Tečovice má 1324 obyvatel, z toho 950 v produktivním věku.
    V obci je rozvod kanalizace.
    V obci je rozvod městské vody.
    V obci je rozvod plynu.
Lokalita: Tečovice , okres Zlín, Česká republika Tečovice , okr. Zlín, Zlínský kraj

Kontakt

Radim Vacula


Podobné nabídky v okolí


Volná pracovní místa ExpertPrace.cz
  • Objednání prohlídky a více informací
  •  
  • Poslat na e-mail
  •  

Zasílání odkazu na realitu emailem: