• Sledovat cenu
  •  

Zasílání upozornění emailem:

Rodinný dům, 122 m2 - V Hlinkách 1, Vysoký Újezd, okr. Beroun

Cena: 9 990 000 Kč
Stav:Volný
122 m2, cihlová, parcela 452 m2
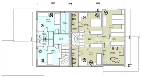
Popis: Nabízíme Vám moderní energeticky velice úsporný dům, který je součástí objektu dvojdomu s užitnou plochou 122 a pozemkem 452m2. Již dokončeno! Každý z domů nabízí přízemí se zázemím, obývacím pokojem, který se ...spojený s kuchyní, ložnicí a garážovým stáním pro dvě auta. V horním patře se pak nacházejí až tři ložnice s vlastním sociálním zázemím. Projekt se nachází v lokalitě Vysoký Újezd je pouhých 15 minut od Prahy, městská část Zličín, velmi dobrá dostupnost na pražský okruh a do dalších částí Prahy. V nabídce poslední moderní dvojdům RD (rodinný dům)2, byt 1A. Developerská společnost, která se zabývá výstavbou se již řadu let zabývá výstavbou kvalitních nadčasových rodinných domů, které vynikají moderním a bezkonkurenčním dispozičním řešením zajišťující nadstandardní velikost vnitřního prostoru. Projekt se nachází nedaleko nově rozšiřujícího se centra ve Vysokém Újezdu, kde vzniká nové náměstí s moderními byty a s občanskou vybaveností. Jedná se o velice žádanou lokalitu obce Vysoký Újezd u Berouna. Kromě standardní vybavenosti obce, kde je úřad, pošta, škola, školka a obchod nabízí tato lokalita i výborné sportovní vyžití. V obci se nachází vyhledávaný golfový resort ALBATROS. V blízkosti Vysokého Újezdu se nachází jeden z nejkrásnějších českých hradů Karlštejn, dále Žebrák, lom Amerika a další vyhledávaná místa. V případě zájmu nás neváhejte kontaktovat a rádi Vám předvedeme vzorový dům, který je k dispozici na prohlídky. Budete jednat přímo s majitelem projektu. Partnerem projektu je Česká spořitelna, která Vám nabízí hypotéku s těmito výhodami: zvýhodněnou úrokovou sazbu – aktuálně od 2, 49 % p. a. pro fixace 5, 8 a 10 let, odhad nemovitosti a aktualizaci zdarma, expresní čerpání zdarma, jednoduché a rychlé vyřízení. Zveme Vás na prohlídku a to po dohodě denně i o víkendech.
  • Vložení inzerátu:
    10.6.2020
  • Kód:
    06914
  • K dispozici od:
    0.0.0
  • Typ nemovitosti:
    Rodinný dům
  • Typ budovy:
    Cihlová
  • Podlahová plocha:
    122 m2
  • Plocha parcely:
    452 m2
  • Terasa:
    Ano
  • Stav objektu:
    Novostavba
  • Rok výstavby:
    2020
  • Rok kolaudace:
    2020
  • Voda:
    dálkový vodovod
  • Elektřina:
    230 V
  • Doprava:
    silnice, dálnice, MHD, autobus
  • Komunikace:
    asfaltová
  • Energetická náročnost:
    G - Mimořádne nehospodárná
  • Nabídky v okolí:
  • Informace o obci:
    Obec Vysoký Újezd má 198 obyvatel, z toho 119 v produktivním věku.
    V obci je rozvod městské vody.
Lokalita: V Hlinkách 1, Vysoký Újezd, okres Beroun, Česká republika V Hlinkách 1, Vysoký Újezd, okr. Beroun

Kontakt

Iveta Vašková
Objednání prohlídky a více informací


Podobné nabídky v okolí


Volná pracovní místa ExpertPrace.cz
  • Objednání prohlídky a více informací
  •  
  • Poslat na e-mail
  •  

Zasílání odkazu na realitu emailem: