• Sledovat cenu
  •  

Zasílání upozornění emailem:

Rodinný dům, 121 m2 - Rudice , okr. Uherské Hradiště

Cena: 8 211 000 Kč
Stav:Volný
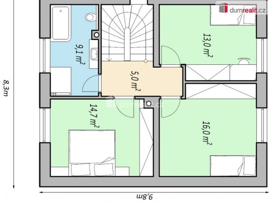
121 m2, cihlová, parcela 1250 m2
Popis: Cena včetně domu na klíč, pozemku, připojení na IS a DPH. . Dumrealit. cz Vám nabízí k prodeji výstavbu rodinného domu na klíč 4+kk o celkové podlahové ploše 121 m² v obci Rud...ice, okres Uherské Hradiště, se zahradou s ovocnými stromy o celkové výměře 1250m².

Základní informace:
- Lokalita: Rudice, okres Uherské Hradiště
- Typ domu: samostatný, patrový - Konstrukce: cihlová
- Dispozice: 4+kk / 5+kk
- Užitná plocha: 121 m²
- Zastavěná plocha: 81 m²
- Plocha pozemku: 1 250 m²
- Počet bytů v domě: 1
- Stav objektu: nový, dům předán “na klíč”

Vybavení a technické parametry:
- Vytápění: Nízkonákladové teplovodní podlahové topení, tepelné čerpadlo se zásobníkem na teplou vodu 180l.
- Napojení na vodovod - Elektřina: 230 V / 400 V
- Plyn: přípojka na hranici pozemku
- Odpad: ČOV (osobní vlastnictví) (čistírna odpadních vod) pro celý objekt

Přednosti nabídky:
- Moderní, energeticky úsporná novostavba
- Velký, soukromý pozemek 1 250 m² poskytující možnost rozšíření zahradních úprav nebo volnočasových aktivit
- Klidná lokalita s dobrou občanskou dostupností do Uherského Brodu či Bojkovic
- Kompletní technické napojení (voda, elektřina 230/400 V, ČOV (osobní vlastnictví)), plyn dostupný na hranici pozemku

Díky svému kompaktnímu tvaru dosahuje projekt patrového rodinného domu Benefit125 výraznou energetickou a výstavbovou úsporu. Z boční strany lze jednoduchým způsobem přistavět garáž, nebo přístřešek . Také lze upravit rozložení oken a ostatních stavebních otvorů . Projekt je dostupný také v 5 + kk alternativě a také v alternativě.
Dům moderního vzhledu je typ rodinného domu vhodný do rovinatého, ale i mírně svažitého terénu.

Žádné starosti.
Stavíme na klíč.
Od základové desky až po kolaudaci. Uvedená cena obsahuje základovou desku, projekt, DPH a stavba bude provedena na klíč a předána po kolaudaci k okamžitému užívání. (Součástí ceny není kuchyňská linka a světla – dokážeme za zvýhodněných podmínek zajistit přes naše dodavatele).
Délka výstavby od vydání stavebního povolení 12 měsíců u zděné varianty.
Zaujala vás tato nabídka?
Napište mi zprávu nebo zavolejte a probereme detaily vašeho budoucího domova. Ev. číslo: 655025. Energetický štítek: A (49 kWh/m2/rok).
  • Vložení inzerátu:
    15.3.2026
  • Kód:
    4159461
  • Typ nemovitosti:
    Rodinný dům
  • Typ budovy:
    Cihlová
  • Zastavěná plocha:
    81 m2
  • Podlahová plocha:
    121 m2
  • Plocha parcely:
    1250 m2
  • Stav objektu:
    Ve výstavbě
  • Energetická náročnost:
    A - Mimoˇrádne úsporná
  • Ukazatel náročnosti:
    49 kWh/m2
  • Nabídky v okolí:
  • Informace o obci:
    Obec Rudice má 909 obyvatel, z toho 581 v produktivním věku.
    V obci je rozvod kanalizace.
    V obci je rozvod městské vody.
    V obci je rozvod plynu.
Lokalita: Rudice , okres Uherské Hradiště, Česká republika Rudice , okr. Uherské Hradiště, Zlínský kraj

Kontakt

Pavel Vrána - Člen Realitní komory ČR
Objednání prohlídky a více informací


Podobné nabídky v okolí


Volná pracovní místa ExpertPrace.cz
  • Objednání prohlídky a více informací
  •  
  • Poslat na e-mail
  •  

Zasílání odkazu na realitu emailem: