• Sledovat cenu
  •  

Zasílání upozornění emailem:

Rodinný dům, 121 m2 - Mlýnská, Luhačovice, okr. Zlín

Cena: 10 699 000 Kč
Stav:Volný
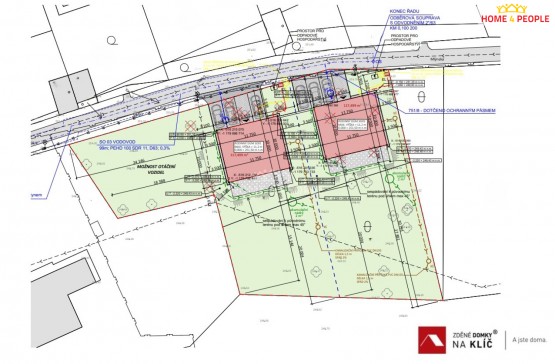
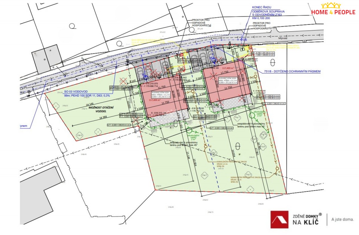
121 m2, cihlová, parcela 895 m2
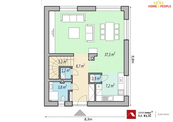
Popis: Cena včetně výstavby domu, kolaudace, pozemku, terasy, parkování a zahrady. Dům č. 1. Zprostředkujeme Vám výstavbu novostavby rodinného domu 4+kk o celkové podlahové výměře... 121 m² s terasou, zahradou a parkovacím místem přímo v srdci Luhačovic.

Představujeme vám jedinečnou příležitost vlastnit moderní a flexibilní dvoupodlažní rodinný dům na klíč, situovaný v samém centru prestižních Luhačovic.
Tato luxusní novostavba splňuje ty nejvyšší nároky na komfortní bydlení a zároveň otevírá neomezené možnosti pro investici a podnikání.

Bydlení, kde se potkává luxus s flexibilitou.
Bydlete v pěší dostupnosti centra města, lázeňské kolonády a veškeré občanské vybavenosti. Život v centru Luhačovic nikdy nebyl pohodlnější.

Dům o dispozici 5+kk s promyšleným dvoupodlažním uspořádáním poskytuje dostatek soukromí a prostoru pro velkou rodinu.
Každé podlaží je navrženo pro maximální pohodlí, včetně samostatné koupelny s sociální zařízení WC.
Vychutnejte si ranní kávu nebo večerní posezení na prostorné terase s výhledem do privátní zahrady, která tvoří klidnou oázu uprostřed města.
Zajištěno je parkovací stání pro 2 automobily přímo u domu.

Nenechte si ujít tuto exkluzivní šanci vlastnit luxusní rodinnou vilu v jedné z nejvyhledávanějších lázeňských lokalit v Česku.
Ať už hledáte ideální rodinné sídlo, nebo chytrou investiční příležitost, tento dům je připraven splnit vaše sny.

Projekt domu nakreslený a schválený. Stavební povolení vydané, můžeme zahájit stavbu do 14 dnů od podpisu smlouvy.
Pro kompletní specifikace, vizualizace a sjednání osobní schůzky nás neváhejte kontaktovat. Ev. číslo: 32009. Energetický štítek: A (49 kWh/m2/rok).
  • Vložení inzerátu:
    20.11.2025
  • Kód:
    3993795
  • Typ nemovitosti:
    Rodinný dům
  • Typ budovy:
    Cihlová
  • Zastavěná plocha:
    81 m2
  • Podlahová plocha:
    121 m2
  • Plocha parcely:
    895 m2
  • Lodžie:
    Ano
  • Terasa:
    Ano
  • Stav objektu:
    Ve výstavbě
  • Umístění objektu:
    Centrum
  • Energetická náročnost:
    A - Mimoˇrádne úsporná
  • Ukazatel náročnosti:
    49 kWh/m2
  • Nabídky v okolí:
  • Informace o obci:
    Obec Luhačovice má 5247 obyvatel, z toho 3660 v produktivním věku.
    V obci se nachází pošta.
    V obci se nachází škola, popř. školka.
    V obci se nachází zdravotní zařízení.
    V obci je rozvod kanalizace.
    V obci je rozvod městské vody.
    V obci je rozvod plynu.
Lokalita: Mlýnská , Luhačovice, okres Zlín, Česká republika Mlýnská, Luhačovice, okr. Zlín

Kontakt

Radim Vacula - Člen Realitní Komory ČR
Objednání prohlídky a více informací


Podobné nabídky v okolí


Volná pracovní místa ExpertPrace.cz
  • Objednání prohlídky a více informací
  •  
  • Poslat na e-mail
  •  

Zasílání odkazu na realitu emailem: