• Sledovat cenu
  •  

Zasílání upozornění emailem:

Rodinný dům, 120 m2 - Hrabůvky, Zlín

Cena: 10 182 000 Kč
Stav:Volný
120 m2, cihlová, parcela 1005 m2
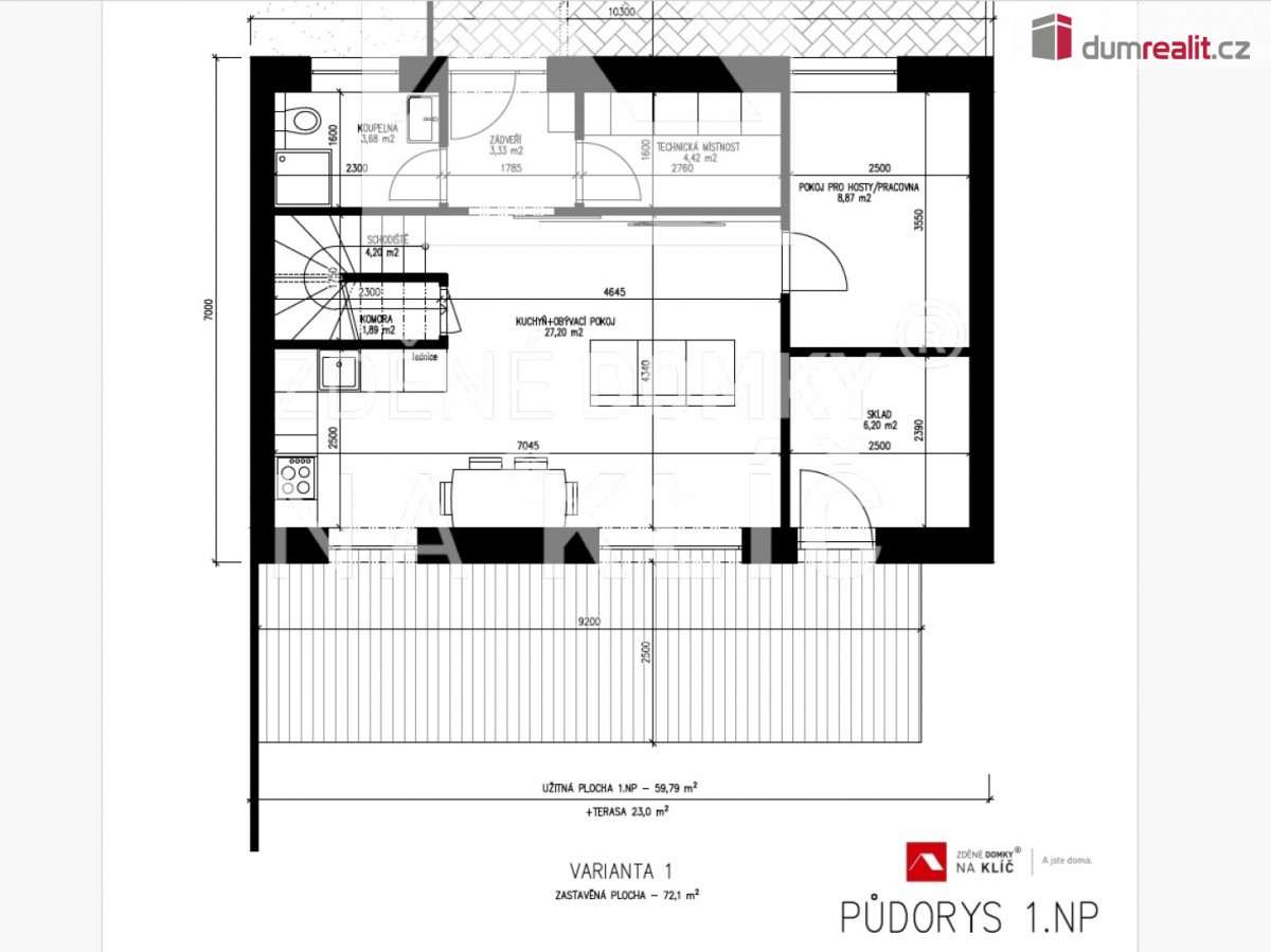
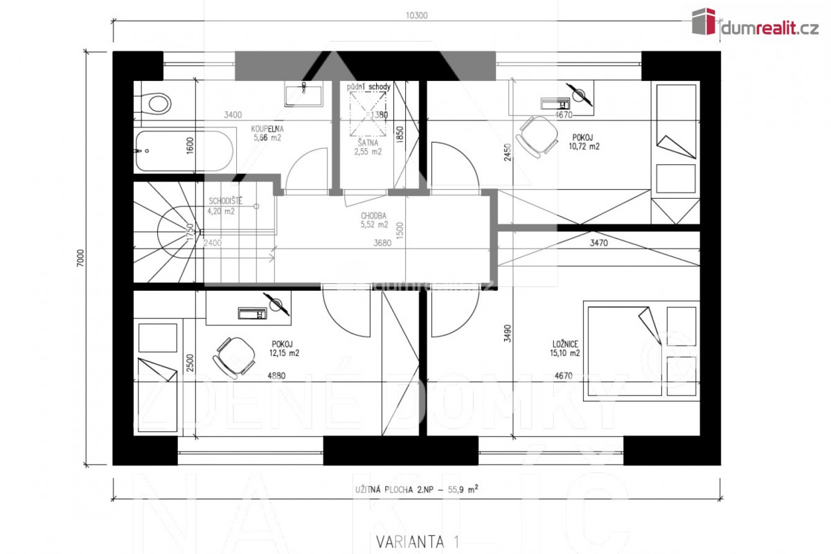
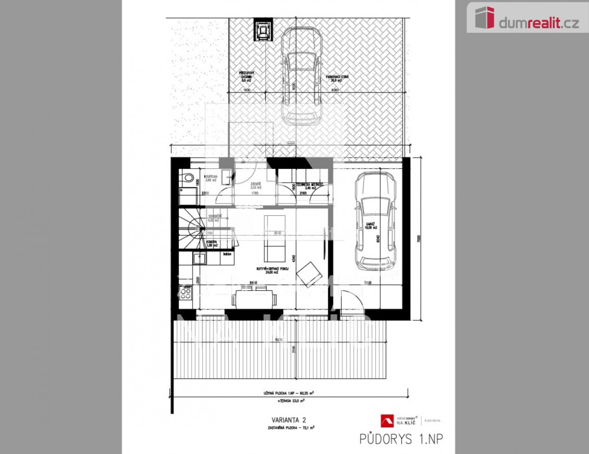
Popis: Dům v provedení na klíč, pozemek a DPH. Dumrealit. cz Vám nabízí prodej výstavby domu ROW 5+kk s obytnou plochou 120m² ve Zlíně části Prštné na pozemku 1005m². Cena zahrnuje p...atrový zděný rodinný dům v provedení na klíč, nově zprovozněna a zlegalizována studna včetně technologií a napojení, domácí čistírna odpadních vod včetně odvodu přečištěné vody, veškeré sítě napojeny na rodinný dům, revize, kolaudace a pozemku. Na pozemku nyní stojí malý domek využívaný jako chatka, která je podsklepena, dále studna a přívod elektřiny. Výhodou pozemku je jeho oplocení. V projektu jsou možné variabilní úpravy dispozice, posuny příček, oken nebo dispozici upravit na 4+kk + garáž viz vizualizace a půdorys. Můžete měnit jeho velikost a tvar a nebo si nechat naprojektovat dům dle vlastních představ a požadavků. Patrový dům je ideální pro 5 člennou rodinu s nízkými provozními náklady. Uvedená cena je za pozemek, kompletní stavbu domu v provedení na klíč, projektové dokumentace, vyřízení stavebního povolení, základové desky až po kolaudaci. V uvedené ceně můžete počítat také s finálními povrchovými úpravami exteriéru i interiéru, a to včetně elektroinstalací, sanitárního vybavení s bateriemi, interiérovými dveřmi včetně obložek. Vytápění bude řešeno teplovodním podlahovým topením v kombinaci tepelného čerpadla se 180L zásobníkem na teplou vodu. Dle dohody změníme systém vytápění nebo vystavíme komín pro krbové kamna nebo pro využití krbové vložky. Kryté garážové stání nebo venkovní krytou či nekrytou terasu za příplatek. Pro náročnější klienty máme nabídku nadstandardního vybavení chytré domácnosti, klimatizaci, externí žaluzie, rolety, rekuperaci nebo fotovoltaiku. V ceně není kuchyňská linka. Doba výstavby cca 12 - 14 měsíců od vydání stavebního povolení a stavbu zahájíme do 10 dnů od jeho vydání. Neváhejte mě kontaktovat ohledně prohlídky pozemku a popřípadě našich hotových či probíhajících staveb. Doporučuji Ev. číslo: 654648. Energetický štítek: A (45 kWh/m2/rok).
  • Vložení inzerátu:
    16.2.2026
  • Kód:
    4116856
  • Typ nemovitosti:
    Rodinný dům
  • Typ budovy:
    Cihlová
  • Zastavěná plocha:
    72 m2
  • Podlahová plocha:
    120 m2
  • Plocha parcely:
    1005 m2
  • Umístění objektu:
    Klidná část
  • Energetická náročnost:
    A - Mimoˇrádne úsporná
  • Ukazatel náročnosti:
    45 kWh/m2
  • Nabídky v okolí:
  • Informace o obci:
    Obec Zlín má 75469 obyvatel, z toho 51734 v produktivním věku.
    V obci se nachází pošta.
    V obci se nachází škola, popř. školka.
    V obci se nachází zdravotní zařízení.
    V obci je rozvod kanalizace.
    V obci je rozvod městské vody.
    V obci je rozvod plynu.
Lokalita: Hrabůvky , Zlín, okres Zlín, Česká republika Hrabůvky, Zlín

Kontakt

Petr Sedlařík


Podobné nabídky v okolí


Volná pracovní místa ExpertPrace.cz
  • Objednání prohlídky a více informací
  •  
  • Poslat na e-mail
  •  

Zasílání odkazu na realitu emailem: