• Sledovat cenu
  •  

Zasílání upozornění emailem:

Rodinný dům, 120 m2 - Ratíškovice , okr. Hodonín (již není v nabídce)

Cena: 7 250 000 Kč
Stav:archiv
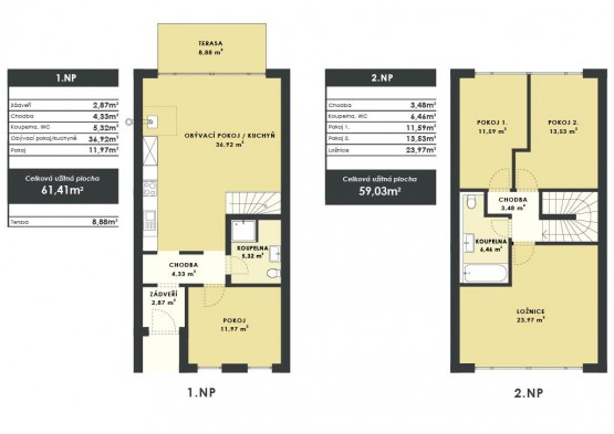
120 m2, cihlová, parcela 116 m2
Popis: Hledáte komfortní a moderní bydlení pro svou rodinu? Nabízíme k prodeji novostavbu rodinného domu o dispozici 5kk v obci Ratíškovice. Dům bude postaven s důrazem na moderní technologie a maximální pohodlí.
V přízemí domu se... nachází prostorný obývací pokoj s kuchyňským koutem, který je díky francouzskému oknu krásně prosvětlený. Dále zde naleznete jeden pokoj, který lze využít jako pracovnu nebo pokoj pro hosty a koupelnu se sprchovým koutem a sociální zařízení WC. V patře jsou k dispozici tři ložnice a druhá koupelna s vanou včetně sociální zařízení WC, což zajišťuje dostatek soukromí pro všechny členy rodiny.
Dům je zděný z izolačních keramických bloků s betonovým stropem. Výplně otvorů jsou v kombinací hliníkových a plastových prvků. Vytápění je plánováno elektrické podlahové, které přináší příjemný tepelný komfort v zimních měsících. Po celý rok oceníte klimatizaci s funkcí tepelného čerpadla. O ochranu před sluncem se postarají předokenní žaluzie. V této klidné části v blízkosti centra obce naleznete i pohodlné parkování.
Ratíškovice je obec vzdálená 10 km od Hodonína a disponuje veškerou občanskou vybaveností a výbornou dostupností do města.
Dům bude dokončen koncem roku 2025 a bude poskytnuta záruka 5 let na stavební část a 2 roky na technologická zařízení. Pokud jste si nevybrali z uveřejněné nabídky, zadejte nám prosím Vaši poptávku a my se pokusíme najít odpovídající nemovitost.
  • Vložení inzerátu:
    4.4.2025
  • Kód:
    HO210069
  • K dispozici od:
    0.0.0
  • Typ nemovitosti:
    Rodinný dům
  • Typ budovy:
    Cihlová
  • Podlahová plocha:
    120 m2
  • Plocha parcely:
    116 m2
  • Terasa:
    9 m2
  • Stav objektu:
    Novostavba
  • Energetická náročnost:
    B - Velmi úsporná
  • Podle vyhlášky:
    c. 78/2013 Sb.
  • Ukazatel náročnosti:
    92.1 kWh/m2
  • Nabídky v okolí:
  • Informace o obci:
    Obec Ratíškovice má 4065 obyvatel, z toho 2961 v produktivním věku.
    V obci se nachází pošta.
    V obci se nachází škola, popř. školka.
    V obci se nachází zdravotní zařízení.
    V obci je rozvod kanalizace.
    V obci je rozvod městské vody.
    V obci je rozvod plynu.

Podobné nabídky v okolí

Lokalita: Ratíškovice , okres Hodonín, Česká republika Ratíškovice , okr. Hodonín, Jihomoravský kraj