• Sledovat cenu
  •  

Zasílání upozornění emailem:

Rodinný dům, 120 m2 - Čížová, okr. Písek (již není v nabídce)

Cena: 2 590 000 Kč
Stav:archiv
120 m2, OV, parcela 990 m2
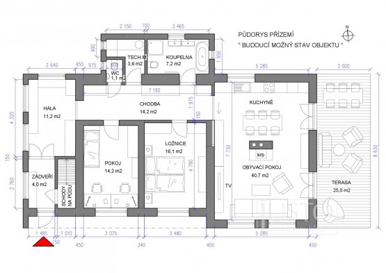
Popis: Nabízíme k prodeji samostatně stojící dům k celoročnímu bydlení či rekreaci v jihočeské obci Bošovice v moc hezkém klidném prostředí v blízkosti královského města Písek s pozemkem o výměře 990 m². Jedná se o přízemní částečn...ě podsklepený dům o dispozici 4+1, podlahové ploše cca 120 m² s prostorným podkrovím, které nabízí další možné rozšíření podlahové plochy. Zahrada obklopující dům bude rozdělena na dva pozemky, ale samozřejmě lze odkoupit zahradu celou. Stav obytné části je v dobrém udržovaném stavu, dům prošel částečnou rekonstrukcí, vytápění je řešeno kotlem na tuhá paliva, plyn přiveden na hranici pozemku, ohřev vody bojlerem, obecní vodovod, studna na pozemku, odpad sveden do septiku, příjezdová cesta s veřejným osvětlením. Celkově má tato nemovitost výjimečnou atmosféru díky okolnímu prostředí s moc hezkým výhledem do krajiny. Pokud tedy hledáte oázu klidu a potřebuje nalézt bydlení v klidném moc hezkém prostředí, tak tato nemovitost čeká na vás. Veškerá občanská vybavenost se nachází v 9 km vzdálené obci Písek. Pro více informací nebo sjednání termínu prohlídky kontaktujte naši realitní kancelář.
  • Vložení inzerátu:
    25.4.2018
  • Kód:
    2692199
  • Typ nemovitosti:
    Rodinný dům
  • Vlastnictví:
    OV
  • Podlaží:
    1
  • Zastavěná plocha:
    150 m2
  • Podlahová plocha:
    120 m2
  • Plocha parcely:
    990 m2
  • Sklep:
    Ano
  • Stav objektu:
    Dobrý
  • Umístění objektu:
    Okraj
  • Bezbariérový přístup:
    Ano
  • Energetická náročnost:
    G - Mimořádne nehospodárná
  • Ukazatel náročnosti:
    785 kWh/m2
  • Nabídky v okolí:
  • Informace o obci:
    Obec Čížová má 1053 obyvatel, z toho 714 v produktivním věku.
    V obci se nachází pošta.
    V obci se nachází zdravotní zařízení.
    V obci je rozvod městské vody.
    V obci je rozvod plynu.

Podobné nabídky v okolí

Lokalita: Čížová, okres Písek, Česká republika Čížová, okr. Písek, Jihočeský kraj